不動産 賃貸 マンション等の住宅情報:埼玉住まい情報


埼玉県草加市旭町6丁目(新田駅)の賃貸:物件詳細

  • 物件詳細
  • 情報の見方
  • 印刷用画面
交通
所在地
駅徒歩 賃料
管理費等
敷金/保証金
礼金
間取り
面積
物件種目
築年月

東武伊勢崎線/新田

埼玉県草加市旭町6丁目

7分

8万円

3,000円

2ヶ月 / なし

なし

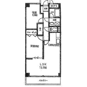
2LDK

58.90m²

賃貸マンション

1988年5月(築37年10ヶ月)

おすすめPOINTフリーレント、最上階、振分、2面採光、前面棟無、隣接建物距離2m以上

おすすめコメント

2駅利用出来ます。インターネット使用料無料です。設備も追焚、温水洗浄便座、TVドアホンあります。フリーレント賃料1ヵ月付いてます。退去時ルームクリーニング代(敷金1ヶ月償却)と畳替代が掛かります。

間取図

間取図

外観

外観

<
その他の画像
  • リビング
  • リビング
  • キッチン
  • キッチン
  • 収納
  • 収納
  • 室内
  • 室内
  • 室内
  • バス/シャワー
  • トイレ
  • 洗面
  • 設備
  • その他
  • 玄関
  • 収納
  • 設備
  • バルコニー
  • 設備
>
    • とりあえず保存
    • お問い合わせ
    交通

    東武伊勢崎線 新田駅 徒歩7分

    その他の交通

    東武伊勢崎線 獨協大学前駅 徒歩15分

    所在地 埼玉県草加市旭町6丁目
    物件種目 賃貸マンション
    賃料 8万円 管理費等 3,000円
    敷金 / 保証金 2ヶ月 / なし 礼金 なし
    敷引 保証金償却
    その他一時金 保険等 要 2年 20,000円 賃貸住宅総合
    維持費等
    間取り 2LDK(洋 6・5.5 LDK 15.5) 専有面積 58.90m²
    築年月 1988年5月(築37年10ヶ月) 階建 / 階 4階建 / 4階
    建物構造 RC 総戸数
    主要採光面 駐車場 有 8,000円/月
    バイク置き場 駐輪場 有 無料
    建物名・部屋番号 プランタン88 405 ペット
    アピールポイント 2駅利用可、通勤通学買物便利です。インターネット使用料無料です。4階建の4階部分1階は店舗です。追焚機能、ウォシュレット、TVインターホン等あります。キッチンセット取替ました。賃料1カ月フリーレント付いてます。退去時ルームクリーニング代(敷金1ヶ月償却)と畳替代が掛かります。
    リフォーム履歴
    リノベーション履歴
    備考
    賃貸保証等:加入要(①初回賃料等の50%年1.2万円もしくは月800円。②初回50%2年後30%③初回30%月1.5%④初回50%月1%。各保証会社とも賃貸保証会社の自動振替利用(振替手数料330円))
    管理形態/管理員の勤務形態:-/-
    フリーレント:1ヶ月(契約開始日より最初の1か月分賃料等サービス)
    短期解約違約金あり。更新時、事務手数料あり。退去時ルームクリーニング代(敷金1ヶ月償却)と畳替代が掛かります。
    エネルギー消費性能
    断熱性能
    目安光熱費
    バス・トイレ バス・トイレ別、オートバス、追焚機能、洗面所独立、洗面台、シャワー、温水洗浄便座、トイレ
    キッチン システムキッチン、独立型キッチン
    セキュリティー モニター付インターホン、火災警報器(報知機)
    収納 収納スペース、クローゼット、シューズボックス
    設備・サービス 室内洗濯機置場、プロパンガス給湯、給湯、全居室フローリング、フローリング、プロパンガス
    TV・通信 インターネット対応、インターネット使用料無料、光ファイバー、ケーブルTV
    その他 バルコニー、駐輪場
    契約期間 2年 現況 居住中
    条件等 入居可能時期 相談
    仲介手数料 0.55ヶ月    
    更新料 新賃料 1ヶ月 物件番号 6989153854
    情報公開日 2026年1月27日 次回更新予定日 2026年2月24日
    ケータイ用バーコード

    QRコード

    スマートフォンでこの物件を見る
    スマートフォンからもこの物件をご覧になれます。
    ※「-」と表示されている項目については、情報提供会社にご確認ください。

    この物件の周辺情報

    周辺施設 イトーヨーカドー新田店
    距離 178m
    周辺施設 東武ストア新田店
    距離 464m
    周辺施設 セブンイレブン新田駅西口店
    距離 403m
    周辺施設 ミヤマ珈琲草加清門町店
    距離 826m
    周辺施設 Can★Do新田店
    距離 287m
    周辺施設 ビッグ・エー草加金明町店
    距離 408m
    周辺施設 私立獨協大学
    距離 1447m
    周辺施設 草加新田駅前郵便局
    距離 600m

    クイックお問い合わせ

    ここから簡単にお問い合わせをすることができます。
    (SSLでの暗号化での送信を希望されるお客さまは こちら よりお問い合わせください)

    お問い合わせ内容(必須)
    お名前(必須) 姓  名 
    メールアドレス(必須)
    ※携帯電話のメールアドレスをご入力される方はこちらをご確認ください
    電話番号(必須)
    - -

    ※入力いただいた電話番号へSMSまたは音声でパスワードをご連絡します。

    携帯電話の番号をご入力の方へ

    携帯電話の番号をご入力の方へ
    確認画面にて送信ボタンをクリックするとSMSが携帯電話に届きます。
    そのSMSに記載のパスワード(認証番号)を入力し、お問い合わせを完了してください。
    尚、SMSの送信者番号は 0005 202 760 となります。
    これはアットホームの固定番号です。

    備考欄 希望条件、物件案内希望日、質問などがございましたらご記入ください。
    お問い合わせを行う前に「個人情報の取り扱いについて」を必ずお読みください。
    「個人情報の取り扱いについて」に同意いただいた場合は「上記にご同意の上 確認画面へ進む」のボタンをクリックしてください。

    個人情報の取り扱いについて

    皆さまが送付された個人情報はアットホーム(株)のサーバを経由し、お問い合わせ先の不動産会社にメールまたはFAXにて転送されるためアットホーム(株)にも保管されます。アットホーム(株)で保管された個人情報の取り扱いについては、【こちら】をご覧ください。
    また、本画面でご記入いただいた個人情報は、お問い合わせ先の不動産会社でも保管します。 お問い合わせ先の不動産会社が保管する個人情報の取り扱いについては、不動産会社に直接お問い合わせください。

    情報提供会社

    情報提供会社

    (有)ケン・ハウスプランニング

    埼玉県知事免許(5)第19604号

    交通:
    東武伊勢崎線/新田駅 徒歩5分
    埼玉県草加市旭町4丁目9-10 シャトーカワノ102
    TEL:
    048-954-9828
    FAX:
    048-954-9827
    所属団体:
    (公社)埼玉県宅地建物取引業協会会員
    (公社)首都圏不動産公正取引協議会加盟

    取引態様:仲介

    • 会社情報
    • 00140766
    スマートフォンで
    この不動産会社を見る
    QRコード
    • とりあえず保存
    • お問い合わせ
    • 提携サイト等より掲載されている物件情報につきましては、不動産会社詳細情報にリンクされていないものがあります。
    • 物件に関するお問合せは、物件詳細ページの「情報提供会社」に表示されている不動産会社へ直接お願いいたします。
    • 間取図は、現況を優先させていただきます。
    • 映像は物件の一部を撮影したものです。物件の契約にあたっての最終判断はご自身の判断に基づいて行ってください。
    • 仲介手数料について仲介手数料

    アットホームは物件情報の適正化に努めております。 内容に誤りがある場合にはこちらへご連絡ください。

    【埼玉住まい情報】では、日本全国の物件から賃貸マンションや賃貸アパート・賃貸一戸建て等の賃貸住宅情報、新築マンション・分譲マンションや中古マンション等の売買マンション情報、新築一戸建てや中古一戸建てなどの戸建住宅、 土地など、総合的な不動産住宅情報検索サービスを提供致します。
    【埼玉住まい情報】から、選りすぐりの不動産物件を探してみましょう。

    【免責事項】
    このコーナーの運営はアットホーム株式会社(https://www.athome.co.jp/)が行っています。
    このコーナーに掲載している物件情報は、「アットホーム不動産情報ネットワーク」に加盟する不動産会社等(情報提供元)から提供されています。信頼性の高い情報提供が行えるよう、最大限の努力をしておりますが、その内容を保証するものではありません。 利用者のみなさまと各情報提供元との取引に起因する損害および情報が掲載されたことに起因する損害等については、株式会社イーシティ埼玉、およびアットホームは一切責任を負いません。
    各物件情報の内容や画像等はすべて現況を優先させていただきます。
    お取引等(お取引の準備、資金調達等を含みます)の際には、内容や契約条件等について、各情報提供元より十分な説明を受け、ご自身でご確認の上、判断してください。
    このコーナーへの物件情報のご掲載、その他不動産業務ソリューション等についての不動産会社様のお問合せはこちらからお願いいたします。

    物件画像: