埼玉県さいたま市緑区原山1丁目(浦和駅)の賃貸:物件詳細
交通 所在地 |
駅徒歩 |
賃料 管理費等 |
敷金/保証金 礼金 |
間取り 面積 |
物件種目 築年月 |
|
JR京浜東北線/浦和
埼玉県さいたま市緑区原山1丁目
|
18分
|
8.8万円
12,000円
|
なし / なし
なし
|
2DK
37.65m²
|
賃貸マンション
1977年3月(築48年11ヶ月)
|
ペット相談、最上階、事務所使用可
|
|
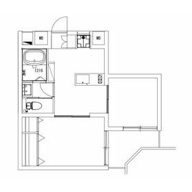
間取図
|
外観
|
その他の画像
|
| 交通 | JR京浜東北線 浦和駅 徒歩18分 |
| 所在地 |
埼玉県さいたま市緑区原山1丁目
|
| 物件種目 |
賃貸マンション |
| 賃料 |
8.8万円 |
管理費等 |
12,000円 |
| 敷金 / 保証金 |
なし / なし |
礼金 |
なし |
| 敷引 |
- |
保証金償却 |
- |
| その他一時金 |
安心サポート:16,500円、室内清掃費用:60,500円、鍵交換代等:33,000円~ |
保険等 |
不要 |
| 維持費等 |
- |
| 間取り |
2DK(洋5、洋5、DK5) |
専有面積 |
37.65m² |
| 築年月 |
1977年3月(築48年11ヶ月)
|
階建 / 階 |
4階建 / 4階 |
| 建物構造 |
RC |
総戸数 |
- |
| 主要採光面 |
|
駐車場 |
無 |
| バイク置き場 |
- |
駐輪場 |
有 |
| 建物名・部屋番号 |
Renarvo Urawa 402 |
ペット |
小型犬可・ 猫可 |
| リフォーム履歴 |
- |
| リノベーション履歴 |
2024年2月 〇ユニットバス新設 〇システムキッチンES新設 〇洗面化粧台 新設 〇室内洗濯機防水パン 新設 〇トイレ本体+シャワートイレ新設 〇クロス全面張替え 〇ダウンライト 新設 〇新規照明新設 〇室内床フロア木目調(白系) ※実施年月は最も古い履歴を表示 |
| 備考 |
賃貸保証等:加入要(いえらぶ安心保証 ■いえらぶ保証(保険付) →初回保証料:月額総賃料の100%/更新保証料20,000円/年 550円/月)
管理形態/管理員の勤務形態:-/-
|
| エネルギー消費性能 |
- |
| 断熱性能 |
- |
| 目安光熱費 |
- |
| バス・トイレ |
バス・トイレ別、洗面所独立、洗面所、洗面台、シャワー、温水洗浄便座、トイレ |
| キッチン |
2口コンロ、ガスコンロ可 |
| セキュリティー |
- |
| 収納 |
収納スペース、クローゼット |
| 設備・サービス |
室内洗濯機置場、洗濯機置場、フローリング、プロパンガス、エアコン、照明器具 |
| TV・通信 |
インターネット対応、光ファイバー |
| その他 |
バルコニー、駐輪場 |
| 契約期間 |
2年 |
現況 |
空家 |
| 条件等 |
- |
入居可能時期 |
相談 |
| 更新料 |
新賃料 1ヶ月 |
物件番号 |
6989206388 |
| 情報公開日 |
2026年1月24日 |
次回更新予定日 |
2026年2月7日 |
| ケータイ用バーコード |
- スマートフォンでこの物件を見る
- スマートフォンからもこの物件をご覧になれます。
|
※「-」と表示されている項目については、情報提供会社にご確認ください。
ここから簡単にお問い合わせをすることができます。
(SSLでの暗号化での送信を希望されるお客さまは
こちら
よりお問い合わせください)
お問い合わせを行う前に
「個人情報の取り扱いについて」を必ずお読みください。
「個人情報の取り扱いについて」に同意いただいた場合は「上記にご同意の上 確認画面へ進む」のボタンをクリックしてください。
個人情報の取り扱いについて
皆さまが送付された個人情報はアットホーム(株)のサーバを経由し、お問い合わせ先の不動産会社にメールまたはFAXにて転送されるためアットホーム(株)にも保管されます。アットホーム(株)で保管された個人情報の取り扱いについては、【こちら】をご覧ください。
また、本画面でご記入いただいた個人情報は、お問い合わせ先の不動産会社でも保管します。 お問い合わせ先の不動産会社が保管する個人情報の取り扱いについては、不動産会社に直接お問い合わせください。
埼玉県知事免許(5)第20211号 |
|---|
- 交通:
- JR京浜東北線/西川口駅 徒歩5分
- 埼玉県川口市並木2丁目7-16
- TEL:
- 048-253-3331
- FAX:
- 048-253-3307
- 所属団体:
- (公社)埼玉県宅地建物取引業協会会員(公社)首都圏不動産公正取引協議会加盟
取引態様:仲介  - 00013436
|
- スマートフォンで
この不動産会社を見る

|
- 提携サイト等より掲載されている物件情報につきましては、不動産会社詳細情報にリンクされていないものがあります。
- 物件に関するお問合せは、物件詳細ページの「情報提供会社」に表示されている不動産会社へ直接お願いいたします。
- 間取図は、現況を優先させていただきます。
- 映像は物件の一部を撮影したものです。物件の契約にあたっての最終判断はご自身の判断に基づいて行ってください。
- 仲介手数料について

アットホームは物件情報の適正化に努めております。
内容に誤りがある場合にはこちらへご連絡ください。