不動産 賃貸 マンション等の住宅情報:埼玉住まい情報


千葉県館山市館山(館山駅)の賃貸:物件詳細

  • 物件詳細
  • 情報の見方
  • 印刷用画面
交通
所在地
駅徒歩 賃料
管理費等
敷金/保証金
礼金
間取り
面積
物件種目
築年月

JR内房線/館山

千葉県館山市館山

14分

8.3万円

1ヶ月 / なし

1ヶ月

ワンルーム

41.81m²

賃貸アパート

2026年1月
新築 

おすすめPOINT角部屋、最上階、南向き、2面採光、IT重説対応物件

おすすめコメント  スタッフ: 加藤

新築!都市ガスでネット無料・追炊き・浴室乾燥・ロスナイ付きです。コンロは3口のガスコンロがつきます。各部屋1台無料駐車場付き。2月末ごろからご入居開始予定です。

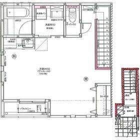
間取図

間取図

階段室と居室

外観

外観

<
その他の画像
  • 間取図
  • キッチン
  • バス/シャワー
  • 洗面
  • トイレ
  • 玄関
  • リビング
  • その他
  • 室内
  • 収納
  • 設備
  • その他
  • その他
  • バルコニー
>
    • とりあえず保存
    • お問い合わせ
    交通

    JR内房線 館山駅 徒歩14分

    所在地 千葉県館山市館山
    物件種目 賃貸アパート
    賃料 8.3万円 管理費等
    敷金 / 保証金 1ヶ月 / なし 礼金 1ヶ月
    敷引 保証金償却
    その他一時金 水道開栓手数料:4,400円 保険等 要 2年 18,000円 借家人賠償特約付家財
    維持費等 町内会費:700円/月
    間取り ワンルーム 専有面積 41.81m²
    築年月 2026年1月 新築  階建 / 階 2階建 / 2階
    建物構造 木造 総戸数
    主要採光面 駐車場 有 無料
    バイク置き場 駐輪場
    建物名・部屋番号 サウステラス ペット
    アピールポイント 家主様のこだわりが詰まった新築アパート。外観・設備ともに細部まで丁寧に造られており、一般的なアパートとは一線を画します。玄関ドアはスマートキーシステムを採用。お客様のスマートフォンで施錠・開錠が可能です。7.5帖の小屋裏収納を備え、空間を有効活用できる点も魅力。新築ならではの清潔感と快適さを、ぜひ現地でご体感ください
    リフォーム履歴
    リノベーション履歴
    備考
    賃貸保証等:加入要(契約時に初回保証委託料として41,850円。月額保証委託料として837円+口座振替手数料として330円。)
    管理形態/管理員の勤務形態:-/-
    バルコニー:2.48m²
    IT重説対応物件
    エネルギー消費性能
    断熱性能
    目安光熱費
    バス・トイレ バス・トイレ別、浴室乾燥機、追焚機能、シャワー付洗面化粧台、洗面所独立、洗面所、洗面台、シャワー、温水洗浄便座、トイレ
    キッチン カウンターキッチン、システムキッチン、3口以上コンロ、ガスコンロ付
    セキュリティー モニター付インターホン、非接触型ICカードキー、防犯カメラ、シャッター雨戸、火災警報器(報知機)
    収納 全居室収納、収納スペース、クローゼット、グルニエ
    設備・サービス 室内洗濯機置場、ロフト、都市ガス給湯、給湯、全居室フローリング、フローリング、室内物干し、都市ガス、エアコン、複層ガラス
    TV・通信 インターネット使用料無料
    その他 宅配BOX、バルコニー
    契約期間 2年 現況 未完成
    条件等 入居可能時期 指定有り2026年2月28日
    仲介手数料 1.1ヶ月    
    更新料 新賃料 1.05ヶ月 物件番号 6989207681
    情報公開日 2026年1月24日 次回更新予定日 2026年2月7日
    ケータイ用バーコード

    QRコード

    スマートフォンでこの物件を見る
    スマートフォンからもこの物件をご覧になれます。
    ※「-」と表示されている項目については、情報提供会社にご確認ください。

    クイックお問い合わせ

    ここから簡単にお問い合わせをすることができます。
    (SSLでの暗号化での送信を希望されるお客さまは こちら よりお問い合わせください)

    お問い合わせ内容(必須)
    お名前(必須) 姓  名 
    メールアドレス(必須)
    ※携帯電話のメールアドレスをご入力される方はこちらをご確認ください
    電話番号(必須)
    - -

    ※入力いただいた電話番号へSMSまたは音声でパスワードをご連絡します。

    携帯電話の番号をご入力の方へ

    携帯電話の番号をご入力の方へ
    確認画面にて送信ボタンをクリックするとSMSが携帯電話に届きます。
    そのSMSに記載のパスワード(認証番号)を入力し、お問い合わせを完了してください。
    尚、SMSの送信者番号は 0005 202 760 となります。
    これはアットホームの固定番号です。

    備考欄 希望条件、物件案内希望日、質問などがございましたらご記入ください。
    お問い合わせを行う前に「個人情報の取り扱いについて」を必ずお読みください。
    「個人情報の取り扱いについて」に同意いただいた場合は「上記にご同意の上 確認画面へ進む」のボタンをクリックしてください。

    個人情報の取り扱いについて

    皆さまが送付された個人情報はアットホーム(株)のサーバを経由し、お問い合わせ先の不動産会社にメールまたはFAXにて転送されるためアットホーム(株)にも保管されます。アットホーム(株)で保管された個人情報の取り扱いについては、【こちら】をご覧ください。
    また、本画面でご記入いただいた個人情報は、お問い合わせ先の不動産会社でも保管します。 お問い合わせ先の不動産会社が保管する個人情報の取り扱いについては、不動産会社に直接お問い合わせください。

    情報提供会社

    情報提供会社

    (株)館山地所

    千葉県知事免許(12)第6335号

    交通:
    JR内房線/館山駅 徒歩4分
    千葉県館山市北条2181 
    TEL:
    0470-23-7722
    FAX:
    0470-23-7725
    所属団体:
    (一社)千葉県宅地建物取引業協会会員
    (公社)首都圏不動産公正取引協議会加盟

    取引態様:仲介

    • 会社情報
    • 00314097
    スマートフォンで
    この不動産会社を見る
    QRコード
    • とりあえず保存
    • お問い合わせ
    • 提携サイト等より掲載されている物件情報につきましては、不動産会社詳細情報にリンクされていないものがあります。
    • 物件に関するお問合せは、物件詳細ページの「情報提供会社」に表示されている不動産会社へ直接お願いいたします。
    • 間取図は、現況を優先させていただきます。
    • 映像は物件の一部を撮影したものです。物件の契約にあたっての最終判断はご自身の判断に基づいて行ってください。
    • 仲介手数料について仲介手数料

    アットホームは物件情報の適正化に努めております。 内容に誤りがある場合にはこちらへご連絡ください。

    【埼玉住まい情報】では、日本全国の物件から賃貸マンションや賃貸アパート・賃貸一戸建て等の賃貸住宅情報、新築マンション・分譲マンションや中古マンション等の売買マンション情報、新築一戸建てや中古一戸建てなどの戸建住宅、 土地など、総合的な不動産住宅情報検索サービスを提供致します。
    【埼玉住まい情報】から、選りすぐりの不動産物件を探してみましょう。

    【免責事項】
    このコーナーの運営はアットホーム株式会社(https://www.athome.co.jp/)が行っています。
    このコーナーに掲載している物件情報は、「アットホーム不動産情報ネットワーク」に加盟する不動産会社等(情報提供元)から提供されています。信頼性の高い情報提供が行えるよう、最大限の努力をしておりますが、その内容を保証するものではありません。 利用者のみなさまと各情報提供元との取引に起因する損害および情報が掲載されたことに起因する損害等については、株式会社イーシティ埼玉、およびアットホームは一切責任を負いません。
    各物件情報の内容や画像等はすべて現況を優先させていただきます。
    お取引等(お取引の準備、資金調達等を含みます)の際には、内容や契約条件等について、各情報提供元より十分な説明を受け、ご自身でご確認の上、判断してください。
    このコーナーへの物件情報のご掲載、その他不動産業務ソリューション等についての不動産会社様のお問合せはこちらからお願いいたします。

    物件画像: