熊本県熊本市中央区保田窪1丁目(東海学園前駅)の賃貸:物件詳細
交通 所在地 |
駅徒歩 |
賃料 管理費等 |
敷金/保証金 礼金 |
間取り 面積 |
物件種目 築年月 |
|
JR豊肥本線/東海学園前
熊本県熊本市中央区保田窪1丁目
|
12分
|
8.2万円
4,000円
|
なし / なし
1ヶ月
|
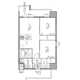
2LDK
50.40m²
|
賃貸マンション
2026年3月
|
角部屋、二人入居可、24時間換気システム
|
|
間取図
2LDK
|
外観
|
<
その他の画像
>
|
| 交通 | JR豊肥本線 東海学園前駅 徒歩12分 |
|---|
| その他の交通 | 【バス】 保田窪入口 停歩1分 |
| 所在地 |
熊本県熊本市中央区保田窪1丁目
|
| 物件種目 |
賃貸マンション |
| 賃料 |
8.2万円 |
管理費等 |
4,000円 |
| 敷金 / 保証金 |
なし / なし |
礼金 |
1ヶ月 |
| 敷引 |
- |
保証金償却 |
- |
| その他一時金 |
消毒代:25,300円 |
保険等 |
要 損害 |
| 維持費等 |
Nサポート(990円/月~1,210円/月):1,210円/月、町内会費:300円/月 |
| 間取り |
2LDK(洋 5・5 LDK 11.6) |
専有面積 |
50.40m² |
| 築年月 |
2026年3月
|
階建 / 階 |
12階建 / 8階 |
| 建物構造 |
RC |
総戸数 |
31戸 |
| 主要採光面 |
西 |
駐車場 |
有 7,700円/月 |
| バイク置き場 |
- |
駐輪場 |
有 |
| 建物名・部屋番号 |
レジエル保田窪 801 |
ペット |
-
|
| アピールポイント |
宅配BOX付で不在時お荷物のお受け取りも便利。コンロ3口以上の仕様なのでお料理も楽々。防犯カメラ完備です。 |
| リフォーム履歴 |
- |
| リノベーション履歴 |
- |
| 備考 |
賃貸保証等:加入要(えるく・全保連・OFI、初回保証料:月額総賃料100%、継続保証料1万円/1年)
管理形態/管理員の勤務形態:-/-
バルコニー:6.2m²
801号室のほか、同タイプ301~1201もございます。
(79,000~84,000円/月)
お気軽にお問合せください。
(法人契約時は礼金2ヶ月となります。)
|
| エネルギー消費性能 |
- |
| 断熱性能 |
- |
| 目安光熱費 |
- |
| バス・トイレ |
バス・トイレ別、浴室乾燥機、追焚機能、シャワー |
| キッチン |
3口以上コンロ、ガスコンロ付 |
| セキュリティー |
オートロック、モニター付インターホン、防犯カメラ |
| 収納 |
クローゼット |
| 設備・サービス |
室内洗濯機置場、給湯、フローリング、プロパンガス、エアコン |
| TV・通信 |
- |
| その他 |
宅配BOX、バルコニー、駐輪場 |
| 契約期間 |
2年 |
現況 |
未完成 |
| 条件等 |
- |
入居可能時期 |
2026年3月下旬予定 |
| 更新料 |
新賃料 0.5ヶ月 |
物件番号 |
6989245160 |
| 情報公開日 |
2026年1月28日 |
次回更新予定日 |
2026年4月6日 |
| ケータイ用バーコード |
- スマートフォンでこの物件を見る
- スマートフォンからもこの物件をご覧になれます。
|
※「-」と表示されている項目については、情報提供会社にご確認ください。
| 周辺施設 |
マルショク保田窪店 |
| 距離 |
124m |
写真を見る |
| 周辺施設 |
ローソン熊本保田窪店 |
| 距離 |
88m |
写真を見る |
| 周辺施設 |
熊本市立帯山中学校 |
| 距離 |
681m |
写真を見る |
| 周辺施設 |
熊本市立帯山西小学校 |
| 距離 |
379m |
写真を見る |
| 周辺施設 |
HIヒロセ渡鹿店 |
| 距離 |
782m |
写真を見る |
| 周辺施設 |
セブンイレブン熊本渡鹿3丁目店 |
| 距離 |
304m |
写真を見る |
| 周辺施設 |
熊本銀行新大江支店 |
| 距離 |
143m |
写真を見る |
| 周辺施設 |
城南コベッツ帯山教室 |
| 距離 |
30m |
写真を見る |
ここから簡単にお問い合わせをすることができます。
(SSLでの暗号化での送信を希望されるお客さまは
こちら
よりお問い合わせください)
お問い合わせを行う前に
「個人情報の取り扱いについて」を必ずお読みください。
「個人情報の取り扱いについて」に同意いただいた場合は「上記にご同意の上 確認画面へ進む」のボタンをクリックしてください。
個人情報の取り扱いについて
皆さまが送付された個人情報はアットホーム(株)のサーバを経由し、お問い合わせ先の不動産会社にメールまたはFAXにて転送されるためアットホーム(株)にも保管されます。アットホーム(株)で保管された個人情報の取り扱いについては、【こちら】をご覧ください。
また、本画面でご記入いただいた個人情報は、お問い合わせ先の不動産会社でも保管します。 お問い合わせ先の不動産会社が保管する個人情報の取り扱いについては、不動産会社に直接お問い合わせください。
熊本県知事免許(1)第5844号 |
|---|
- 交通:
- 【バス】 江津団地 停歩1分
- 熊本県熊本市中央区出水8丁目8-20 203
- TEL:
- 096-221-4982
- FAX:
- 096-295-8163
- 所属団体:
- (公社)全日本不動産協会会員(一社)九州不動産公正取引協議会加盟
取引態様:仲介  - 80509012
|
- スマートフォンで
この不動産会社を見る

|
- 提携サイト等より掲載されている物件情報につきましては、不動産会社詳細情報にリンクされていないものがあります。
- 物件に関するお問合せは、物件詳細ページの「情報提供会社」に表示されている不動産会社へ直接お願いいたします。
- 間取図は、現況を優先させていただきます。
- 映像は物件の一部を撮影したものです。物件の契約にあたっての最終判断はご自身の判断に基づいて行ってください。
- 仲介手数料について

アットホームは物件情報の適正化に努めております。
内容に誤りがある場合にはこちらへご連絡ください。