東京都世田谷区用賀2丁目(用賀駅)の賃貸:物件詳細
交通 所在地 |
駅徒歩 |
賃料 管理費等 |
敷金/保証金 礼金 |
間取り 面積 |
物件種目 築年月 |
|
東急田園都市線/用賀
東京都世田谷区用賀2丁目
|
10分
|
24万円
10,000円
|
なし / なし
なし
|
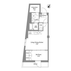
1SLDK
38.42m²
|
賃貸マンション
2025年10月
|
ペット相談、フリーレント、常時ゴミ出し可能、24時間換気システム
|
|
間取図
|
外観
|
<
その他の画像
>
|
| 交通 | 東急田園都市線 用賀駅 徒歩10分 |
| 所在地 |
東京都世田谷区用賀2丁目
|
| 物件種目 |
賃貸マンション |
| 賃料 |
24万円 |
管理費等 |
10,000円 |
| 敷金 / 保証金 |
なし / なし |
礼金 |
なし |
| 敷引 |
- |
保証金償却 |
- |
| その他一時金 |
清掃費:44,000円、エアコン清掃費:22,000円 |
保険等 |
要 2年 16,550円 |
| 維持費等 |
- |
| 間取り |
1SLDK(LDK9.6 洋4.3 S(納戸)1.8) |
専有面積 |
38.42m² |
| 築年月 |
2025年10月
|
階建 / 階 |
地上5階地下1階建 / 3階 |
| 建物構造 |
RC |
総戸数 |
22戸 |
| 主要採光面 |
南東 |
駐車場 |
無 |
| バイク置き場 |
- |
駐輪場 |
- |
| 建物名・部屋番号 |
ザ・レジデンス用賀 405 |
ペット |
小型犬可・ 猫可・ 小・中型犬1匹又は猫1匹迄※敷 |
| リフォーム履歴 |
- |
| リノベーション履歴 |
- |
| 備考 |
賃貸保証等:加入要(エポスカード(RP) 保証料:賃料等の50%(最低2万)、月額保証料:賃料等の1%(更新料無))
管理形態/管理員の勤務形態:-/-
フリーレント:1ヶ月((賃料のみ)※1年未満解約時違約金賃料1ヶ月分有り)
■礼金0ヶ月■フリーレント1ヶ月(賃料のみ)※1年未満解約時違約金賃料1ヶ月分有り
■礼金0カ月■フリーレント1ヶ月(賃料のみ)※1年未満解約時違約金賃料1ヶ月分有り■生体認証型■駐輪場無料(先着10台)■敷地内禁煙(電子・紙たばこ)■指定保証会社利用必須※一部法人契約除く・敷金1ヶ月積み増し■解約時室内及びエアコンクリーニング費用借主負担■禁止事項:楽器演奏・事務所・SOHO利用不可■ペット飼育可(小・中型犬1匹又は猫1匹迄)※敷金1ヶ月積増※使用細則遵守
|
| エネルギー消費性能 |
- |
| 断熱性能 |
- |
| 目安光熱費 |
- |
| バス・トイレ |
バス・トイレ別、浴室乾燥機、追焚機能、洗面所独立、温水洗浄便座 |
| キッチン |
システムキッチン、グリル |
| セキュリティー |
オートロック、モニター付インターホン、ディンプルキー、ダブルロックドア、防犯カメラ |
| 収納 |
シューズボックス |
| 設備・サービス |
エアコン2台以上、室内洗濯機置場、室内物干し |
| TV・通信 |
インターネット対応、インターネット使用料無料、CS、BS端子 |
| その他 |
宅配BOX、エレベーター |
| 契約期間 |
2年 |
現況 |
完成済 |
| 条件等 |
- |
入居可能時期 |
2026年2月上旬予定 |
| 更新料 |
新賃料 1ヶ月 |
物件番号 |
6989329604 |
| 情報公開日 |
2026年2月2日 |
次回更新予定日 |
2026年2月16日 |
| ケータイ用バーコード |
- スマートフォンでこの物件を見る
- スマートフォンからもこの物件をご覧になれます。
|
※「-」と表示されている項目については、情報提供会社にご確認ください。
ここから簡単にお問い合わせをすることができます。
(SSLでの暗号化での送信を希望されるお客さまは
こちら
よりお問い合わせください)
お問い合わせを行う前に
「個人情報の取り扱いについて」を必ずお読みください。
「個人情報の取り扱いについて」に同意いただいた場合は「上記にご同意の上 確認画面へ進む」のボタンをクリックしてください。
個人情報の取り扱いについて
皆さまが送付された個人情報はアットホーム(株)のサーバを経由し、お問い合わせ先の不動産会社にメールまたはFAXにて転送されるためアットホーム(株)にも保管されます。アットホーム(株)で保管された個人情報の取り扱いについては、【こちら】をご覧ください。
また、本画面でご記入いただいた個人情報は、お問い合わせ先の不動産会社でも保管します。 お問い合わせ先の不動産会社が保管する個人情報の取り扱いについては、不動産会社に直接お問い合わせください。
東京都知事免許(1)第111022号 |
|---|
- 交通:
- JR山手線/渋谷駅 徒歩5分
- 東京都渋谷区渋谷1丁目8-13 GSハイム宮益坂
- TEL:
- 03-5464-5011
- FAX:
- 03-5464-5012
- 所属団体:
- (公社)東京都宅地建物取引業協会会員(公社)首都圏不動産公正取引協議会加盟
取引態様:仲介  - 00282072
|
- スマートフォンで
この不動産会社を見る

|
- 提携サイト等より掲載されている物件情報につきましては、不動産会社詳細情報にリンクされていないものがあります。
- 物件に関するお問合せは、物件詳細ページの「情報提供会社」に表示されている不動産会社へ直接お願いいたします。
- 間取図は、現況を優先させていただきます。
- 映像は物件の一部を撮影したものです。物件の契約にあたっての最終判断はご自身の判断に基づいて行ってください。
- 仲介手数料について

アットホームは物件情報の適正化に努めております。
内容に誤りがある場合にはこちらへご連絡ください。