東京都足立区大谷田3丁目(北綾瀬駅)の賃貸:物件詳細
交通 所在地 |
駅徒歩 |
賃料 管理費等 |
敷金/保証金 礼金 |
間取り 面積 |
物件種目 築年月 |
|
東京メトロ千代田線/北綾瀬
東京都足立区大谷田3丁目
|
10分
|
19.5万円
-
|
2ヶ月 / なし
1ヶ月
|
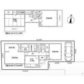
4DK
95.96m²
|
賃貸一戸建て
2007年9月(築18年7ヶ月)
|
閑静な住宅街
|
|
間取図
|
|
<
その他の画像
>
|
| 交通 | 東京メトロ千代田線 北綾瀬駅 徒歩10分 |
| 所在地 |
東京都足立区大谷田3丁目
|
| 物件種目 |
賃貸一戸建て |
| 賃料 |
19.5万円 |
管理費等 |
- |
| 敷金 / 保証金 |
2ヶ月 / なし |
礼金 |
1ヶ月 |
| 敷引 |
1ヶ月 |
保証金償却 |
- |
| その他一時金 |
なし |
保険等 |
要 20,000円 |
| 維持費等 |
- |
| 間取り |
4DK(和 7.5 洋 11・8・6 DK 4.9) |
専有面積 |
95.96m² |
| 築年月 |
2007年9月(築18年7ヶ月)
|
階建 / 階 |
2階建 |
| 建物構造 |
木造 |
総戸数 |
- |
| 主要採光面 |
|
駐車場 |
有 無料 |
| バイク置き場 |
- |
駐輪場 |
- |
| 建物名・部屋番号 |
|
ペット |
-
|
| リフォーム履歴 |
■水回り:2026年1月 トイレ、洗面所 ■内装:2026年1月 床(フローリング等)、壁・天井(クロス・塗装等) ■外装:2026年1月 外壁 ※実施年月は最も古い履歴を表示 |
| リノベーション履歴 |
- |
| 備考 |
賃貸保証等:加入要(50%)
管理形態/管理員の勤務形態:-/-
退去時敷金1ヵ月償却 短期違約金1年以内1ヵ月分
|
| エネルギー消費性能 |
- |
| 断熱性能 |
- |
| 目安光熱費 |
- |
| バス・トイレ |
バス・トイレ別、浴室暖房、浴室乾燥機、追焚機能、洗面所、温水洗浄便座、トイレ2ヶ所 |
| キッチン |
システムキッチン、3口以上コンロ |
| セキュリティー |
ダブルロックドア、シャッター雨戸 |
| 収納 |
全居室収納、収納スペース、シューズボックス |
| 設備・サービス |
エアコン2台以上、室内洗濯機置場、給湯、プロパンガス |
| TV・通信 |
- |
| その他 |
二面バルコニー |
| 契約期間 |
2年 |
現況 |
空家 |
| 条件等 |
- |
入居可能時期 |
即時 |
| 更新料 |
新賃料 1ヶ月 |
物件番号 |
6989334577 |
| 情報公開日 |
2026年2月2日 |
次回更新予定日 |
2026年3月28日 |
| ケータイ用バーコード |
- スマートフォンでこの物件を見る
- スマートフォンからもこの物件をご覧になれます。
|
※「-」と表示されている項目については、情報提供会社にご確認ください。
ここから簡単にお問い合わせをすることができます。
(SSLでの暗号化での送信を希望されるお客さまは
こちら
よりお問い合わせください)
お問い合わせを行う前に
「個人情報の取り扱いについて」を必ずお読みください。
「個人情報の取り扱いについて」に同意いただいた場合は「上記にご同意の上 確認画面へ進む」のボタンをクリックしてください。
個人情報の取り扱いについて
皆さまが送付された個人情報はアットホーム(株)のサーバを経由し、お問い合わせ先の不動産会社にメールまたはFAXにて転送されるためアットホーム(株)にも保管されます。アットホーム(株)で保管された個人情報の取り扱いについては、【こちら】をご覧ください。
また、本画面でご記入いただいた個人情報は、お問い合わせ先の不動産会社でも保管します。 お問い合わせ先の不動産会社が保管する個人情報の取り扱いについては、不動産会社に直接お問い合わせください。
東京都知事免許(10)第44334号 |
|---|
- 交通:
- 東武伊勢崎線/西新井駅 徒歩12分
- 東京都足立区六月3丁目1-16
- TEL:
- 03-3859-2011
- FAX:
- 03-3859-1519
- 所属団体:
- (公社)東京都宅地建物取引業協会会員(公社)首都圏不動産公正取引協議会加盟
取引態様:仲介  - 00020158
|
- スマートフォンで
この不動産会社を見る

|
- 提携サイト等より掲載されている物件情報につきましては、不動産会社詳細情報にリンクされていないものがあります。
- 物件に関するお問合せは、物件詳細ページの「情報提供会社」に表示されている不動産会社へ直接お願いいたします。
- 間取図は、現況を優先させていただきます。
- 映像は物件の一部を撮影したものです。物件の契約にあたっての最終判断はご自身の判断に基づいて行ってください。
- 仲介手数料について

アットホームは物件情報の適正化に努めております。
内容に誤りがある場合にはこちらへご連絡ください。