長崎県佐世保市島瀬町(佐世保中央駅)の賃貸:物件詳細
交通 所在地 |
駅徒歩 |
賃料 管理費等 |
敷金/保証金 礼金 |
間取り 面積 |
物件種目 築年月 |
|
松浦鉄道西九州線/佐世保中央 [バス利用可] バス 島瀬 停歩2分
長崎県佐世保市島瀬町
|
2分
|
16.5万円
なし
|
2ヶ月 / なし
なし
|
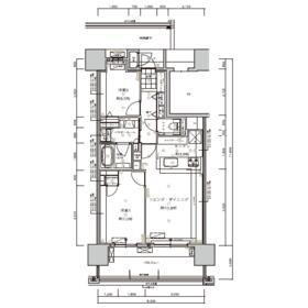
2LDK
60.74m²
|
賃貸マンション
2026年3月
|
分譲タイプ、南向き
|
|
間取図
|
|
その他の画像
|
| 交通 | 松浦鉄道西九州線 佐世保中央駅 徒歩2分 [バス利用可] バス 島瀬 停歩2分 |
| 所在地 |
長崎県佐世保市島瀬町
|
| 物件種目 |
賃貸マンション |
| 賃料 |
16.5万円 |
管理費等 |
なし |
| 敷金 / 保証金 |
2ヶ月 / なし |
礼金 |
なし |
| 敷引 |
1ヶ月 |
保証金償却 |
- |
| その他一時金 |
くらしーど24:16,500円 |
保険等 |
要 2年 15,000円 火災保険 |
| 維持費等 |
- |
| 間取り |
2LDK(洋 7・5 LDK 14.4) |
専有面積 |
60.74m² |
| 築年月 |
2026年3月
|
階建 / 階 |
19階建 / 8階 |
| 建物構造 |
RC |
総戸数 |
220戸 |
| 主要採光面 |
南 |
駐車場 |
有 無料 |
| バイク置き場 |
- |
駐輪場 |
- |
| 建物名・部屋番号 |
ランドアーク島瀬 |
ペット |
-
|
| アピールポイント |
新築のマンションです。バス停、松浦鉄道駅近く!通勤通学にも便利な場所に建つマンションです♪ |
| リフォーム履歴 |
- |
| リノベーション履歴 |
- |
| 備考 |
賃貸保証等:加入要(ジェイリース(家賃保証) 賃料等80%)
管理形態/管理員の勤務形態:-/日勤
バルコニー:12.6m²
管理人日勤
タワー駐車場 サイズ制限あり
D5300・W2050・H1800
|
| エネルギー消費性能 |
- |
| 断熱性能 |
- |
| 目安光熱費 |
- |
| バス・トイレ |
バス・トイレ別、浴室暖房、浴室乾燥機、追焚機能、洗面台、シャワー、温水洗浄便座 |
| キッチン |
システムキッチン、食器洗浄乾燥機、ディスポーザー、ガスコンロ付 |
| セキュリティー |
オートロック、モニター付インターホン |
| 収納 |
ウォークインクローゼット、収納スペース、クローゼット |
| 設備・サービス |
エアコン2台以上、室内洗濯機置場、給湯、都市ガス、エアコン、暖房、冷房、人感センサー付照明、照明器具 |
| TV・通信 |
インターネット対応、CS |
| その他 |
宅配BOX、エレベーター2基以上、バルコニー |
| 契約期間 |
2年 |
現況 |
未完成 |
| 条件等 |
- |
入居可能時期 |
2026年4月中旬予定 |
| 更新料 |
- |
物件番号 |
6989351341 |
| 情報公開日 |
2026年2月6日 |
次回更新予定日 |
2026年4月2日 |
| ケータイ用バーコード |
- スマートフォンでこの物件を見る
- スマートフォンからもこの物件をご覧になれます。
|
※「-」と表示されている項目については、情報提供会社にご確認ください。
| 周辺施設 |
地方独立行政法人佐世保市総合医療センター |
| 距離 |
709m |
| 周辺施設 |
国家公務員共済組合連合会佐世保共済病院 |
| 距離 |
387m |
| 周辺施設 |
十八親和銀行佐世保本店営業部 |
| 距離 |
36m |
ここから簡単にお問い合わせをすることができます。
(SSLでの暗号化での送信を希望されるお客さまは
こちら
よりお問い合わせください)
お問い合わせを行う前に
「個人情報の取り扱いについて」を必ずお読みください。
「個人情報の取り扱いについて」に同意いただいた場合は「上記にご同意の上 確認画面へ進む」のボタンをクリックしてください。
個人情報の取り扱いについて
皆さまが送付された個人情報はアットホーム(株)のサーバを経由し、お問い合わせ先の不動産会社にメールまたはFAXにて転送されるためアットホーム(株)にも保管されます。アットホーム(株)で保管された個人情報の取り扱いについては、【こちら】をご覧ください。
また、本画面でご記入いただいた個人情報は、お問い合わせ先の不動産会社でも保管します。 お問い合わせ先の不動産会社が保管する個人情報の取り扱いについては、不動産会社に直接お問い合わせください。
長崎県知事免許(5)第3404号 |
|---|
- 交通:
- JR佐世保線/佐世保駅 徒歩8分
- 長崎県佐世保市塩浜町8番50 ランドアーク五番街マンション1階
- TEL:
- 0956-42-0667
- FAX:
- 0956-42-0668
- 所属団体:
- (公社)全日本不動産協会会員(一社)九州不動産公正取引協議会加盟
取引態様:仲介  - 80501210
|
- スマートフォンで
この不動産会社を見る

|
- 提携サイト等より掲載されている物件情報につきましては、不動産会社詳細情報にリンクされていないものがあります。
- 物件に関するお問合せは、物件詳細ページの「情報提供会社」に表示されている不動産会社へ直接お願いいたします。
- 間取図は、現況を優先させていただきます。
- 映像は物件の一部を撮影したものです。物件の契約にあたっての最終判断はご自身の判断に基づいて行ってください。
- 仲介手数料について

アットホームは物件情報の適正化に努めております。
内容に誤りがある場合にはこちらへご連絡ください。