神奈川県横浜市戸塚区品濃町(東戸塚駅)の賃貸:物件詳細
交通 所在地 |
駅徒歩 |
賃料 管理費等 |
敷金/保証金 礼金 |
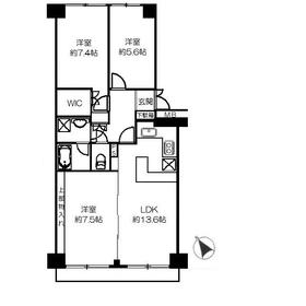
間取り 面積 |
物件種目 築年月 |
|
JR横須賀線/東戸塚
神奈川県横浜市戸塚区品濃町
|
6分
|
17.8万円
10,000円
|
1ヶ月 / なし
1ヶ月
|
3LDK
74.95m²
|
賃貸マンション
1982年10月(築43年5ヶ月)
|
分譲タイプ、南向き、保証人不要
|
|
間取図
|
LDK
|
<
その他の画像
>
|
| 交通 | JR横須賀線 東戸塚駅 徒歩6分 |
|---|
| その他の交通 | 湘南新宿ライン(宇都宮〜逗子) 東戸塚駅 徒歩6分 |
| 所在地 |
神奈川県横浜市戸塚区品濃町
|
| 物件種目 |
賃貸マンション |
| 賃料 |
17.8万円 |
管理費等 |
10,000円 |
| 敷金 / 保証金 |
1ヶ月 / なし |
礼金 |
1ヶ月 |
| 敷引 |
- |
保証金償却 |
- |
| その他一時金 |
事務手数料:11,000円、退去時クリーニング費用:110,000円 |
保険等 |
要 借家人賠償責任付火災 |
| 維持費等 |
- |
| 間取り |
3LDK(洋 7.4・5.6・7.5 LDK 13.6) |
専有面積 |
74.95m² |
| 築年月 |
1982年10月(築43年5ヶ月)
|
階建 / 階 |
10階建 / 3階 |
| 建物構造 |
SRC |
総戸数 |
- |
| 主要採光面 |
南 |
駐車場 |
有 14,000円/月 |
| バイク置き場 |
有 |
駐輪場 |
有 |
| 建物名・部屋番号 |
ニューシティ東戸塚南の街5号館 |
ペット |
-
|
| アピールポイント |
アクセスのいい東戸塚駅徒歩6分だから、日用品の買い出しが楽チン。また拭き掃除のみでお手入れ楽チンなIHクッキングヒーター付で、その上システムキッチンなので、日々のお料理が楽しくはかどります。ちなみに安心も二重なダブルロックドア採用です。自然に団らんが生まれる3LDK。実際の空間をご自身で体感ください。 |
| リフォーム履歴 |
■内装:2019年9月 全室クロス張替え、床(フローリング等)、建具(室内ドア等) クロス全面貼替え、フローリング張替え、建具一部交換、IHコンロ交換、浴室鏡交換 ※実施年月は最も古い履歴を表示 |
| リノベーション履歴 |
- |
| 備考 |
賃貸保証等:加入要(ジェイリース等 初回保証料:賃料総額の50%~、継続保証料:10,000円/年~ 等)
管理形態/管理員の勤務形態:-/日勤
バルコニー:9.2m²
管理人日勤
|
| エネルギー消費性能 |
- |
| 断熱性能 |
- |
| 目安光熱費 |
- |
| バス・トイレ |
バス・トイレ別、洗面所独立、洗面所、洗面台、シャワー、温水洗浄便座、トイレ |
| キッチン |
システムキッチン、IHクッキングヒーター、グリル |
| セキュリティー |
モニター付インターホン、ダブルロックドア |
| 収納 |
ウォークインクローゼット、収納スペース、クローゼット、シューズボックス |
| 設備・サービス |
エアコン2台以上、室内洗濯機置場、洗濯機置場、給湯、全居室フローリング、フローリング、エアコン |
| TV・通信 |
- |
| その他 |
バイク置き場、バルコニー、駐輪場、エレベーター |
| 契約期間 |
2年 |
現況 |
空家 |
| 条件等 |
- |
入居可能時期 |
即時 |
| 仲介手数料 |
1.1ヶ月 |
|
|
| 更新料 |
新賃料 1ヶ月 |
物件番号 |
6989392058 |
| 情報公開日 |
2026年2月6日 |
次回更新予定日 |
2026年2月20日 |
| ケータイ用バーコード |
- スマートフォンでこの物件を見る
- スマートフォンからもこの物件をご覧になれます。
|
※「-」と表示されている項目については、情報提供会社にご確認ください。
| 周辺施設 |
Olympicおりーぶ東戸塚店 |
| 距離 |
269m |
| 周辺施設 |
東急ストアモレラ東戸塚店 |
| 距離 |
640m |
| 周辺施設 |
ファミリーマート東戸塚駅東口店 |
| 距離 |
353m |
ここから簡単にお問い合わせをすることができます。
(SSLでの暗号化での送信を希望されるお客さまは
こちら
よりお問い合わせください)
お問い合わせを行う前に
「個人情報の取り扱いについて」を必ずお読みください。
「個人情報の取り扱いについて」に同意いただいた場合は「上記にご同意の上 確認画面へ進む」のボタンをクリックしてください。
個人情報の取り扱いについて
皆さまが送付された個人情報はアットホーム(株)のサーバを経由し、お問い合わせ先の不動産会社にメールまたはFAXにて転送されるためアットホーム(株)にも保管されます。アットホーム(株)で保管された個人情報の取り扱いについては、【こちら】をご覧ください。
また、本画面でご記入いただいた個人情報は、お問い合わせ先の不動産会社でも保管します。 お問い合わせ先の不動産会社が保管する個人情報の取り扱いについては、不動産会社に直接お問い合わせください。
国土交通大臣免許(3)第8839号 |
|---|
- 交通:
- 小田急小田原線/代々木八幡駅 徒歩4分
- 東京都渋谷区元代々木町52-5 コロムビア代々木公園ビル1F
- TEL:
- 03-5454-7288
- FAX:
- 03-5454-7290
- 所属団体:
- (公社)全日本不動産協会会員(公社)首都圏不動産公正取引協議会加盟
取引態様:仲介  - 00014993
|
- スマートフォンで
この不動産会社を見る

|
- 提携サイト等より掲載されている物件情報につきましては、不動産会社詳細情報にリンクされていないものがあります。
- 物件に関するお問合せは、物件詳細ページの「情報提供会社」に表示されている不動産会社へ直接お願いいたします。
- 間取図は、現況を優先させていただきます。
- 映像は物件の一部を撮影したものです。物件の契約にあたっての最終判断はご自身の判断に基づいて行ってください。
- 仲介手数料について

アットホームは物件情報の適正化に努めております。
内容に誤りがある場合にはこちらへご連絡ください。