東京都江東区越中島2丁目(越中島駅)の賃貸:物件詳細
交通 所在地 |
駅徒歩 |
賃料 管理費等 |
敷金/保証金 礼金 |
間取り 面積 |
物件種目 築年月 |
|
JR京葉線/越中島
東京都江東区越中島2丁目
|
1分
|
7.9万円
10,000円
|
なし / なし
1ヶ月
|
ワンルーム
21.78m²
|
賃貸マンション
1998年10月(築27年5ヶ月)
|
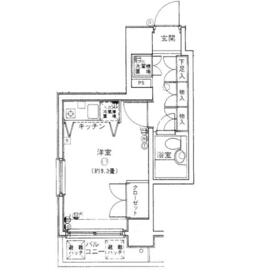
分譲タイプ、角部屋、二人入居可、2面採光、保証人不要
|
|
間取図
|
外観
|
<
その他の画像
>
|
| 交通 | JR京葉線 越中島駅 徒歩1分 |
|---|
| その他の交通 | 東京メトロ東西線 門前仲町駅 徒歩10分 都営大江戸線 門前仲町駅 徒歩10分 |
| 所在地 |
東京都江東区越中島2丁目
|
| 物件種目 |
賃貸マンション |
| 賃料 |
7.9万円 |
管理費等 |
10,000円 |
| 敷金 / 保証金 |
なし / なし |
礼金 |
1ヶ月 |
| 敷引 |
- |
保証金償却 |
- |
| その他一時金 |
事務手数料:11,000円、24H生活サポート:19,800円、ハウスクリーニング:59,400円、鍵交換代等:27,500円~ |
保険等 |
要 2年 20,000円 |
| 維持費等 |
- |
| 間取り |
ワンルーム(洋室9.3) |
専有面積 |
21.78m² |
| 築年月 |
1998年10月(築27年5ヶ月)
|
階建 / 階 |
8階建 / 4階 |
| 建物構造 |
RC |
総戸数 |
28戸 |
| 主要採光面 |
南東 |
駐車場 |
無 |
| バイク置き場 |
無 |
駐輪場 |
無 |
| 建物名・部屋番号 |
ビバリーホームズ越中島 |
ペット |
-
|
| アピールポイント |
コスト感覚の鋭いお客様に嬉しいニュース!敷金(保証金)0円。アクセスのいい越中島駅徒歩1分だから、毎日の通勤通学がラク。また不在時の受け取りも楽々の宅配BOX付で、その上システムキッチン採用なので、食事の準備も片付けもスムーズに取り組めます。ちなみに部屋の換気もしやすい2面採光です。一人暮らしに最適なワンルーム。是非その目でお確かめください。 |
| リフォーム履歴 |
- |
| リノベーション履歴 |
- |
| 備考 |
賃貸保証等:加入要(初回契約時:100%、月額:1.5%)
管理形態/管理員の勤務形態:-/巡回
管理人巡回
・原則契約時にルームクリーニング代59,400円税込、退去時支払い相談可能 ・短期解約違約金有 1年以内の解約で総賃料の2ヶ月分、2年以内の解約で総賃料の1ヶ月分 ・解約予告2カ月前
・原則契約時にルームクリーニング代59,400円税込、退去時支払い相談可能 ・短期解約違約金有 1年以内の解約で総賃料の2ヶ月分、2年以内の解約で総賃料の1ヶ月分 ・解約予告2カ月前
|
| エネルギー消費性能 |
- |
| 断熱性能 |
- |
| 目安光熱費 |
- |
| バス・トイレ |
洗面台、バス・トイレ同室、トイレ |
| キッチン |
システムキッチン、ガスコンロ付 |
| セキュリティー |
オートロック |
| 収納 |
収納スペース、クローゼット、シューズボックス |
| 設備・サービス |
室内洗濯機置場、洗濯機置場、都市ガス、エアコン |
| TV・通信 |
BS端子 |
| その他 |
宅配BOX、バルコニー、エレベーター |
| 契約期間 |
2年 |
現況 |
居住中 |
| 条件等 |
- |
入居可能時期 |
相談 |
| 更新料 |
新賃料 1.5ヶ月 |
物件番号 |
6989402232 |
| 情報公開日 |
2026年2月7日 |
次回更新予定日 |
2026年2月21日 |
| ケータイ用バーコード |
- スマートフォンでこの物件を見る
- スマートフォンからもこの物件をご覧になれます。
|
※「-」と表示されている項目については、情報提供会社にご確認ください。
ここから簡単にお問い合わせをすることができます。
(SSLでの暗号化での送信を希望されるお客さまは
こちら
よりお問い合わせください)
お問い合わせを行う前に
「個人情報の取り扱いについて」を必ずお読みください。
「個人情報の取り扱いについて」に同意いただいた場合は「上記にご同意の上 確認画面へ進む」のボタンをクリックしてください。
個人情報の取り扱いについて
皆さまが送付された個人情報はアットホーム(株)のサーバを経由し、お問い合わせ先の不動産会社にメールまたはFAXにて転送されるためアットホーム(株)にも保管されます。アットホーム(株)で保管された個人情報の取り扱いについては、【こちら】をご覧ください。
また、本画面でご記入いただいた個人情報は、お問い合わせ先の不動産会社でも保管します。 お問い合わせ先の不動産会社が保管する個人情報の取り扱いについては、不動産会社に直接お問い合わせください。
東京都知事免許(1)第112277号 |
|---|
- 交通:
- 都営新宿線/森下駅 徒歩1分
- 東京都墨田区立川1丁目1-4 平和観光ビル3階
- TEL:
- 03-6659-2077
- FAX:
- 03-6659-2079
- 所属団体:
- (公社)全日本不動産協会会員(公社)首都圏不動産公正取引協議会加盟
取引態様:仲介  - 00281954
|
- スマートフォンで
この不動産会社を見る

|
- 提携サイト等より掲載されている物件情報につきましては、不動産会社詳細情報にリンクされていないものがあります。
- 物件に関するお問合せは、物件詳細ページの「情報提供会社」に表示されている不動産会社へ直接お願いいたします。
- 間取図は、現況を優先させていただきます。
- 映像は物件の一部を撮影したものです。物件の契約にあたっての最終判断はご自身の判断に基づいて行ってください。
- 仲介手数料について

アットホームは物件情報の適正化に努めております。
内容に誤りがある場合にはこちらへご連絡ください。