東京都大田区雪谷大塚町(雪が谷大塚駅)の賃貸:物件詳細
交通 所在地 |
駅徒歩 |
賃料 管理費等 |
敷金/保証金 礼金 |
間取り 面積 |
物件種目 築年月 |
|
東急池上線/雪が谷大塚
東京都大田区雪谷大塚町
|
5分
|
35万円
-
|
1ヶ月 / なし
1ヶ月
|
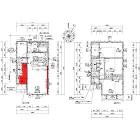
3SLDK
92.74m²
|
賃貸一戸建て
2026年3月
|
ペット相談、振分、制震構造、全室2面採光、24時間換気システム、閑静な住宅街、隣接建物距離2m以上、置き配スペース
|
|
間取図
|
外観
パース
|
<
その他の画像
>
|
| 交通 | 東急池上線 雪が谷大塚駅 徒歩5分 |
|---|
| その他の交通 | 東急東横線 多摩川駅 徒歩10分 東急目黒線 多摩川駅 徒歩10分 |
| 所在地 |
東京都大田区雪谷大塚町
|
| 物件種目 |
賃貸一戸建て |
| 賃料 |
35万円 |
管理費等 |
- |
| 敷金 / 保証金 |
1ヶ月 / なし |
礼金 |
1ヶ月 |
| 敷引 |
- |
保証金償却 |
- |
| その他一時金 |
あんしんコール24/2年間:16,500円 |
保険等 |
要 2年 24,000円 アクア少額短期保険 |
| 維持費等 |
保証会社月額保証料:500円/月、保証会社更新料:10,000円/年 |
クレジットカード決済 |
初期費用可 クレジット可能条件等:カード決済には2.88%のお手数料がかかります。 |
| 間取り |
3SLDK(洋 6.9・5.8・6.4 LDK 16.4 S 3.1) |
専有面積 |
92.74m² |
| 築年月 |
2026年3月
|
階建 / 階 |
2階建 |
| 建物構造 |
木造 |
総戸数 |
1戸 |
| 主要採光面 |
南東 |
駐車場 |
有 無料 |
| バイク置き場 |
- |
駐輪場 |
- |
| 建物名・部屋番号 |
雪谷大塚町戸建 |
ペット |
小型犬可・ 体調50㎝:胸から尻尾の付け根 |
| アピールポイント |
【新築】大型ガレージ×圧倒的収納力!愛犬と暮らす理想の3SLDK
大田区雪谷大塚町の閑静な高台に、暮らしの質を底上げする新築戸建てが登場しました。
■ 目玉は規格外のガレージスペース 間口約6.4m、奥行約3.2mの広大なガレージは、大型SUVやロングセダンも余裕を持って駐車可能。 (例:ランドクルーザー、アルファード、メルセデスSクラス等) 横幅にゆとりがあるため、大型車の横にバイクや自転車を並べてもスムーズに乗降・荷出しができる、車好きにはたまらない設計です。
■ 妥協のない居住空間と収納力 1階には16帖超の開放的なLDK、2階には独立性の高い居室を配置。特筆すべきは1箇所の大型納戸とウォークインクローゼット。荷物が多いご家庭でも、居住空間を常にスッキリと保てます。
■ 大切な家族(ペット)と一緒に 小型犬なら2匹まで相談可能です。50cmサイズ(胸先〜尻尾付け根)まで対応。
新築ならではの最新設備と、計算し尽くされた家事動線をぜひ現地でご体感ください。お問い合わせをお待ちしております。 |
| リフォーム履歴 |
- |
| リノベーション履歴 |
- |
| 備考 |
賃貸保証等:加入要(初回保証料金50%〜:ジェイリース)
管理形態/管理員の勤務形態:-/巡回
バルコニー:3.31m²
外壁サイディング、ノンホルムアルデヒド、管理人巡回
【ペット・駐車場・契約条件に関する詳細】
■ペット飼育について ・小型犬2匹まで相談可 ・サイズ規定:体長(胸先〜尻尾の付け根)50cm以内 ・飼育時:礼金積み増し1ヶ月から相談
■駐車場詳細 ・サイズ:間口 約6,400mm × 奥行 約3,200mm ・大型車、輸入車、駐車可能 ・ハイルーフ車可
■建物仕様・設備 ・IDS-VI型 木造軸組パネル工法(高い耐震・制震性) ・全居室2面採光以上 ・システムキッチン、ユニットバス(1616サイズ)、温水洗浄便座 ・ペアガラス採用(断熱・防音) ・モニター付インターホン、カードキー(ピタットKey)
■契約条件等 ・保証会社利用必須 ・火災保険加入必須 ・退去時クリーニング費用借主負担 ・図面と現況が異なる場合は現況を優先いたします
|
| エネルギー消費性能 |
- |
| 断熱性能 |
- |
| 目安光熱費 |
- |
| バス・トイレ |
バス・トイレ別、浴室暖房、浴室乾燥機、オートバス、追焚機能、洗面所独立、温水洗浄便座、トイレ2ヶ所 |
| キッチン |
カウンターキッチン、システムキッチン、3WAYキッチン、3口以上コンロ |
| セキュリティー |
モニター付インターホン、カードキー、ディンプルキー、ダブルロックドア |
| 収納 |
全居室収納、ウォークインクローゼット、クローゼット、シューズボックス |
| 設備・サービス |
全居室エアコン、室内洗濯機置場、給湯、全居室フローリング、都市ガス、ダウンライト、間接照明、複層ガラス |
| TV・通信 |
- |
| その他 |
専用庭、バルコニー、縁側 |
| 契約期間 |
2年 |
現況 |
未完成 |
| 条件等 |
- |
入居可能時期 |
2026年3月中旬予定 |
| 仲介手数料 |
1ヶ月 |
|
|
| 更新料 |
新賃料 1ヶ月 |
物件番号 |
6989419693 |
| 情報公開日 |
2026年2月9日 |
次回更新予定日 |
2026年3月2日 |
| ケータイ用バーコード |
- スマートフォンでこの物件を見る
- スマートフォンからもこの物件をご覧になれます。
|
※「-」と表示されている項目については、情報提供会社にご確認ください。
| 周辺施設 |
東急ストア雪が谷店 |
| 距離 |
446m |
写真を見る |
| 周辺施設 |
スーパーオオゼキ雪が谷店 |
| 距離 |
582m |
写真を見る |
| 周辺施設 |
オーケー田園調布店 |
| 距離 |
529m |
写真を見る |
| 周辺施設 |
ローソン田園調布1丁目店 |
| 距離 |
111m |
写真を見る |
| 周辺施設 |
ファミリーマート東玉川二丁目店 |
| 距離 |
229m |
写真を見る |
| 周辺施設 |
レクサス雪谷 |
| 距離 |
436m |
写真を見る |
| 周辺施設 |
ココカラファイン南雪谷店 |
| 距離 |
404m |
写真を見る |
| 周辺施設 |
田園調布警察署 |
| 距離 |
366m |
写真を見る |
ここから簡単にお問い合わせをすることができます。
(SSLでの暗号化での送信を希望されるお客さまは
こちら
よりお問い合わせください)
お問い合わせを行う前に
「個人情報の取り扱いについて」を必ずお読みください。
「個人情報の取り扱いについて」に同意いただいた場合は「上記にご同意の上 確認画面へ進む」のボタンをクリックしてください。
個人情報の取り扱いについて
皆さまが送付された個人情報はアットホーム(株)のサーバを経由し、お問い合わせ先の不動産会社にメールまたはFAXにて転送されるためアットホーム(株)にも保管されます。アットホーム(株)で保管された個人情報の取り扱いについては、【こちら】をご覧ください。
また、本画面でご記入いただいた個人情報は、お問い合わせ先の不動産会社でも保管します。 お問い合わせ先の不動産会社が保管する個人情報の取り扱いについては、不動産会社に直接お問い合わせください。
東京都知事免許(2)第99354号 |
|---|
- 交通:
- 湘南新宿ライン(宇都宮〜逗子)/西大井駅 徒歩5分
- 東京都品川区西大井1丁目14-10 403
- TEL:
- 03-6421-7248
- FAX:
- 03-6421-7249
取引態様:仲介  - 00261202
|
- スマートフォンで
この不動産会社を見る

|
- 提携サイト等より掲載されている物件情報につきましては、不動産会社詳細情報にリンクされていないものがあります。
- 物件に関するお問合せは、物件詳細ページの「情報提供会社」に表示されている不動産会社へ直接お願いいたします。
- 間取図は、現況を優先させていただきます。
- 映像は物件の一部を撮影したものです。物件の契約にあたっての最終判断はご自身の判断に基づいて行ってください。
- 仲介手数料について

アットホームは物件情報の適正化に努めております。
内容に誤りがある場合にはこちらへご連絡ください。