不動産 賃貸 マンション等の住宅情報:埼玉住まい情報


静岡県静岡市駿河区高松(静岡駅)の賃貸:物件詳細

  • 物件詳細
  • 情報の見方
  • 印刷用画面
交通
所在地
駅徒歩 賃料
管理費等
敷金/保証金
礼金
間取り
面積
物件種目
築年月

東海道本線/静岡
[バス利用可] バス 高松公民館前 停歩3分

静岡県静岡市駿河区高松

4100m

12万円

なし

2ヶ月 / なし

1ヶ月

2DK

57.54m²

賃貸アパート

2026年5月
新築 

おすすめPOINT角部屋、2面採光、バリアフリー、閑静な住宅街

おすすめコメント

車いすで玄関から室内移動可能です。車いす使用の方に配慮した住宅です。

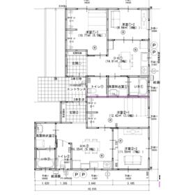
間取図

間取図

バルコニー

バルコニー

その他の画像
  • リビング
    • とりあえず保存
    • お問い合わせ
    交通

    東海道本線 静岡駅 徒歩4100m
    [バス利用可] バス 高松公民館前 停歩3分

    所在地 静岡県静岡市駿河区高松
    物件種目 賃貸アパート
    賃料 12万円 管理費等 なし
    敷金 / 保証金 2ヶ月 / なし 礼金 1ヶ月
    敷引 保証金償却
    その他一時金 保険等 要 2年 20,000円 タイズ少額短期保険
    維持費等
    間取り 2DK(洋 7.5・7 DK 9.9) 専有面積 57.54m²
    築年月 2026年5月 新築  階建 / 階 平屋建
    建物構造 木造 総戸数 2戸
    主要採光面 駐車場 有 無料
    バイク置き場 駐輪場
    建物名・部屋番号   ペット
    アピールポイント 車いすをご利用している方に住みやすい住宅です。設計段階からバリアフリー・安全性・生活同線に配慮した住宅を計画してます。バリアフリー玄関スロープが室内までの段差を解消。車いすでも使いやすいキッチン、洗面化粧台は使用者・介助者が使いやすいカウンター、浴槽各壁には手摺付、車いす対応便器、各部屋へは引き戸車いすでも出入りしやすいサイズです。
    リフォーム履歴
    リノベーション履歴
    備考
    賃貸保証等:加入要(日本セーフティー 初回保証料 賃料の1/2 更新料10,000円/年)
    管理形態/管理員の勤務形態:-/-
    外壁サイディング
    エネルギー消費性能
    断熱性能
    目安光熱費
    バス・トイレ バス・トイレ別、追焚機能、シャワー付洗面化粧台、洗面所、シャワー、温水洗浄便座、トイレ
    キッチン システムキッチン、3口以上コンロ、グリル
    セキュリティー モニター付インターホン
    収納 収納スペース、クローゼット、シューズボックス
    設備・サービス 室内洗濯機置場、給湯、全居室フローリング、フローリング、プロパンガス、エアコン、洗濯乾燥機、照明器具、Low-E ガラス
    TV・通信 BS端子
    その他
    契約期間 2年 現況 未完成
    条件等 入居可能時期 指定有り2026年5月10日
    更新料 なし 物件番号 6989458735
    情報公開日 2026年3月13日 次回更新予定日 2026年5月14日
    ケータイ用バーコード

    QRコード

    スマートフォンでこの物件を見る
    スマートフォンからもこの物件をご覧になれます。
    ※「-」と表示されている項目については、情報提供会社にご確認ください。

    この物件の周辺情報

    周辺施設 フードマーケットMom大谷店
    距離 907m
    周辺施設 セブンイレブン静岡西大谷店
    距離 745m
    周辺施設 ほっともっと静岡宮竹店
    距離 1078m
    周辺施設 静岡市立南中学校
    距離 853m
    周辺施設 静岡市立大里東小学校
    距離 715m
    周辺施設 大谷郵便局
    距離 972m
    周辺施設 静清信用金庫高松支店
    距離 1045m
    周辺施設 高松公園
    距離 1227m

    クイックお問い合わせ

    ここから簡単にお問い合わせをすることができます。
    (SSLでの暗号化での送信を希望されるお客さまは こちら よりお問い合わせください)

    お問い合わせ内容(必須)
    お名前(必須) 姓  名 
    メールアドレス(必須)
    ※携帯電話のメールアドレスをご入力される方はこちらをご確認ください
    電話番号(必須)
    - -

    ※入力いただいた電話番号へSMSまたは音声でパスワードをご連絡します。

    携帯電話の番号をご入力の方へ

    携帯電話の番号をご入力の方へ
    確認画面にて送信ボタンをクリックするとSMSが携帯電話に届きます。
    そのSMSに記載のパスワード(認証番号)を入力し、お問い合わせを完了してください。
    尚、SMSの送信者番号は 0005 202 760 となります。
    これはアットホームの固定番号です。

    備考欄 希望条件、物件案内希望日、質問などがございましたらご記入ください。
    お問い合わせを行う前に「個人情報の取り扱いについて」を必ずお読みください。
    「個人情報の取り扱いについて」に同意いただいた場合は「上記にご同意の上 確認画面へ進む」のボタンをクリックしてください。

    個人情報の取り扱いについて

    皆さまが送付された個人情報はアットホーム(株)のサーバを経由し、お問い合わせ先の不動産会社にメールまたはFAXにて転送されるためアットホーム(株)にも保管されます。アットホーム(株)で保管された個人情報の取り扱いについては、【こちら】をご覧ください。
    また、本画面でご記入いただいた個人情報は、お問い合わせ先の不動産会社でも保管します。 お問い合わせ先の不動産会社が保管する個人情報の取り扱いについては、不動産会社に直接お問い合わせください。

    情報提供会社

    情報提供会社

    (株)アールホーム

    静岡県知事免許(2)第13896号

    交通:
    東海道本線/静岡駅 徒歩25分 【バス】 横内町 停歩1分
    静岡県静岡市葵区横内町5 
    TEL:
    054-294-7560
    FAX:
    054-294-7561
    所属団体:
    (公社)全日本不動産協会会員
    東海不動産公正取引協議会加盟

    取引態様:仲介

    • 会社情報
    • 40406550
    スマートフォンで
    この不動産会社を見る
    QRコード
    • とりあえず保存
    • お問い合わせ
    • 提携サイト等より掲載されている物件情報につきましては、不動産会社詳細情報にリンクされていないものがあります。
    • 物件に関するお問合せは、物件詳細ページの「情報提供会社」に表示されている不動産会社へ直接お願いいたします。
    • 間取図は、現況を優先させていただきます。
    • 映像は物件の一部を撮影したものです。物件の契約にあたっての最終判断はご自身の判断に基づいて行ってください。
    • 仲介手数料について仲介手数料

    アットホームは物件情報の適正化に努めております。 内容に誤りがある場合にはこちらへご連絡ください。

    【埼玉住まい情報】では、日本全国の物件から賃貸マンションや賃貸アパート・賃貸一戸建て等の賃貸住宅情報、新築マンション・分譲マンションや中古マンション等の売買マンション情報、新築一戸建てや中古一戸建てなどの戸建住宅、 土地など、総合的な不動産住宅情報検索サービスを提供致します。
    【埼玉住まい情報】から、選りすぐりの不動産物件を探してみましょう。

    【免責事項】
    このコーナーの運営はアットホーム株式会社(https://www.athome.co.jp/)が行っています。
    このコーナーに掲載している物件情報は、「アットホーム不動産情報ネットワーク」に加盟する不動産会社等(情報提供元)から提供されています。信頼性の高い情報提供が行えるよう、最大限の努力をしておりますが、その内容を保証するものではありません。 利用者のみなさまと各情報提供元との取引に起因する損害および情報が掲載されたことに起因する損害等については、株式会社イーシティ埼玉、およびアットホームは一切責任を負いません。
    各物件情報の内容や画像等はすべて現況を優先させていただきます。
    お取引等(お取引の準備、資金調達等を含みます)の際には、内容や契約条件等について、各情報提供元より十分な説明を受け、ご自身でご確認の上、判断してください。
    このコーナーへの物件情報のご掲載、その他不動産業務ソリューション等についての不動産会社様のお問合せはこちらからお願いいたします。

    物件画像: