不動産 賃貸 マンション等の住宅情報:埼玉住まい情報


熊本県八代市本町3丁目(八代駅)の賃貸:物件詳細

  • 物件詳細
  • 情報の見方
  • 印刷用画面
交通
所在地
駅徒歩 賃料
管理費等
敷金/保証金
礼金
間取り
面積
物件種目
築年月

JR鹿児島本線/八代

熊本県八代市本町3丁目

38分

4.3万円

5,500円

なし / なし

なし

ワンルーム

31.33m²

賃貸マンション

1982年2月(築44年2ヶ月)

おすすめPOINTフリーレント、角部屋、高齢者相談、二人入居可、事務所使用可、バリアフリー

おすすめコメント

※ガス代・水道代・インターネット無料! ベット家電付 物件は市中心街で近隣に24時間営業のマックスバリュー・市役所・郵便局・総合病院あり。 尚、車で5分(夢タウン・トライアル)・10分(イオン)あり。

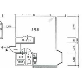
間取図

間取図

<
その他の画像
  • リビング
  • 室内
  • 室内
  • 室内
  • 玄関
  • トイレ
  • バス/シャワー
  • 玄関
  • 玄関
  • 共有部分
  • 共有部分
>
    • とりあえず保存
    • お問い合わせ
    交通

    JR鹿児島本線 八代駅 徒歩38分

    その他の交通

    九州新幹線 新八代駅 徒歩5400m

    【バス】 本町3丁目 停歩160m

    所在地 熊本県八代市本町3丁目
    物件種目 賃貸マンション
    賃料 4.3万円 管理費等 5,500円
    敷金 / 保証金 なし / なし 礼金 なし
    敷引 保証金償却
    その他一時金 清掃費:55,000円、鍵交換代等:16,500円~ 保険等 要 2年 20,500円
    維持費等 くらしーど:880円/月
    間取り ワンルーム(洋 15) 専有面積 31.33m²
    築年月 1982年2月(築44年2ヶ月) 階建 / 階 10階建 / 3階
    建物構造 SRC 総戸数 12戸
    主要採光面 駐車場 有 3,000円/月
    バイク置き場 駐輪場 有 無料
    建物名・部屋番号 リバープラザ 302 ペット
    アピールポイント ※ガス代・水道代・インターネット無料! ベット家電・宅配ボックス・テレビインターホン付き。  ※元ビジネスホテルのリノベーション物件です。 物件は市中心街で近隣に24時間営業のマックスバリュー・市役所・郵便局・総合病院あり。 尚、車で5分(夢タウン・トライアル)・10分(イオン)あり。
    リフォーム履歴 ■水回り:2005年11月
    キッチン、浴室、トイレ、洗面所、給排水管、給湯器
    ■内装:2005年11月
    内装全面(床・壁・天井・建具)
    ■共用部の大規模修繕工事:2005年11月
    共用ホール・廊下など
    ※実施年月は最も古い履歴を表示
    リノベーション履歴
    備考
    賃貸保証等:加入要(利用料金:月額賃料の30%〜)
    管理形態/管理員の勤務形態:-/巡回
    フリーレント:2ヶ月(2年以上入居条件あり。 2年未満の退去時は、2ヶ月分の違約金あり。 フリーレント無しの場合、1年未満の退去時1ヶ月の違約金。)
    管理人巡回
    エネルギー消費性能
    断熱性能
    目安光熱費
    バス・トイレ バス・トイレ別、シャワー付洗面化粧台、洗面所、洗面台、シャワー、温水洗浄便座、トイレ
    キッチン IHクッキングヒーター
    セキュリティー モニター付インターホン
    収納 ウォークインクローゼット
    設備・サービス 室内洗濯機置場、冷蔵庫、洗濯機置場、都市ガス給湯、給湯、全居室フローリング、フローリング、都市ガス、エアコン、家具付き、家電付、照明器具、ベッド
    TV・通信 インターネット使用料無料
    その他 コインランドリー、駐輪場
    契約期間 2年 現況 居住中
    条件等 入居可能時期 指定有り2026年4月1日
    仲介手数料 1ヶ月    
    更新料 なし 物件番号 6989531188
    情報公開日 2026年2月16日 次回更新予定日 2026年3月25日
    ケータイ用バーコード

    QRコード

    スマートフォンでこの物件を見る
    スマートフォンからもこの物件をご覧になれます。
    ※「-」と表示されている項目については、情報提供会社にご確認ください。

    この物件の周辺情報

    周辺施設 マックスバリュ八代店
    距離 450m
    周辺施設 熊本県立八代東高校
    距離 1461m
    周辺施設 熊本県立八代工業高校
    距離 2110m
    周辺施設 熊本県立八代高校
    距離 2181m
    周辺施設 独立行政法人地域医療機能推進機構熊本総合病院
    距離 948m
    周辺施設 桜十字八代病院
    距離 1117m
    周辺施設 八代郵便局
    距離 496m
    周辺施設 八代市役所
    距離 830m

    クイックお問い合わせ

    ここから簡単にお問い合わせをすることができます。
    (SSLでの暗号化での送信を希望されるお客さまは こちら よりお問い合わせください)

    お問い合わせ内容(必須)
    お名前(必須) 姓  名 
    メールアドレス(必須)
    ※携帯電話のメールアドレスをご入力される方はこちらをご確認ください
    電話番号(必須)
    - -

    ※入力いただいた電話番号へSMSまたは音声でパスワードをご連絡します。

    携帯電話の番号をご入力の方へ

    携帯電話の番号をご入力の方へ
    確認画面にて送信ボタンをクリックするとSMSが携帯電話に届きます。
    そのSMSに記載のパスワード(認証番号)を入力し、お問い合わせを完了してください。
    尚、SMSの送信者番号は 0005 202 760 となります。
    これはアットホームの固定番号です。

    備考欄 希望条件、物件案内希望日、質問などがございましたらご記入ください。
    お問い合わせを行う前に「個人情報の取り扱いについて」を必ずお読みください。
    「個人情報の取り扱いについて」に同意いただいた場合は「上記にご同意の上 確認画面へ進む」のボタンをクリックしてください。

    個人情報の取り扱いについて

    皆さまが送付された個人情報はアットホーム(株)のサーバを経由し、お問い合わせ先の不動産会社にメールまたはFAXにて転送されるためアットホーム(株)にも保管されます。アットホーム(株)で保管された個人情報の取り扱いについては、【こちら】をご覧ください。
    また、本画面でご記入いただいた個人情報は、お問い合わせ先の不動産会社でも保管します。 お問い合わせ先の不動産会社が保管する個人情報の取り扱いについては、不動産会社に直接お問い合わせください。

    情報提供会社

    情報提供会社

    宅建オフィス・ナカツ

    熊本県知事免許(1)第5518号

    交通:
    九州新幹線/新八代駅
    熊本県八代市植柳下町1263-2 
    TEL:
    0965-33-6722
    FAX:
    0965-33-5580
    所属団体:
    (公社)熊本県宅地建物取引業協会会員
    (一社)九州不動産公正取引協議会加盟

    取引態様:代理

    • 会社情報
    • 80505710
    スマートフォンで
    この不動産会社を見る
    QRコード
    • とりあえず保存
    • お問い合わせ
    • 提携サイト等より掲載されている物件情報につきましては、不動産会社詳細情報にリンクされていないものがあります。
    • 物件に関するお問合せは、物件詳細ページの「情報提供会社」に表示されている不動産会社へ直接お願いいたします。
    • 間取図は、現況を優先させていただきます。
    • 映像は物件の一部を撮影したものです。物件の契約にあたっての最終判断はご自身の判断に基づいて行ってください。
    • 仲介手数料について仲介手数料

    アットホームは物件情報の適正化に努めております。 内容に誤りがある場合にはこちらへご連絡ください。

    【埼玉住まい情報】では、日本全国の物件から賃貸マンションや賃貸アパート・賃貸一戸建て等の賃貸住宅情報、新築マンション・分譲マンションや中古マンション等の売買マンション情報、新築一戸建てや中古一戸建てなどの戸建住宅、 土地など、総合的な不動産住宅情報検索サービスを提供致します。
    【埼玉住まい情報】から、選りすぐりの不動産物件を探してみましょう。

    【免責事項】
    このコーナーの運営はアットホーム株式会社(https://www.athome.co.jp/)が行っています。
    このコーナーに掲載している物件情報は、「アットホーム不動産情報ネットワーク」に加盟する不動産会社等(情報提供元)から提供されています。信頼性の高い情報提供が行えるよう、最大限の努力をしておりますが、その内容を保証するものではありません。 利用者のみなさまと各情報提供元との取引に起因する損害および情報が掲載されたことに起因する損害等については、株式会社イーシティ埼玉、およびアットホームは一切責任を負いません。
    各物件情報の内容や画像等はすべて現況を優先させていただきます。
    お取引等(お取引の準備、資金調達等を含みます)の際には、内容や契約条件等について、各情報提供元より十分な説明を受け、ご自身でご確認の上、判断してください。
    このコーナーへの物件情報のご掲載、その他不動産業務ソリューション等についての不動産会社様のお問合せはこちらからお願いいたします。

    物件画像: