京都府京都市左京区北白川久保田町(出町柳駅)の賃貸:物件詳細
交通 所在地 |
駅徒歩 |
賃料 管理費等 |
敷金/保証金 礼金 |
間取り 面積 |
物件種目 築年月 |
|
京阪鴨東線/出町柳
京都府京都市左京区北白川久保田町
|
19分
|
8万円
5,000円
|
1ヶ月 / なし
1ヶ月
|
1LDK
39.00m²
|
賃貸アパート
1950年1月(築76年5ヶ月)
|
ペット相談、ルームシェア可、二人入居可、保証人不要
|
|
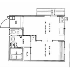
間取図
|
外観
|
その他の画像
|
| 交通 | 京阪鴨東線 出町柳駅 徒歩19分 |
| 所在地 |
京都府京都市左京区北白川久保田町
|
| 物件種目 |
賃貸アパート |
| 賃料 |
8万円 |
管理費等 |
5,000円 |
| 敷金 / 保証金 |
1ヶ月 / なし |
礼金 |
1ヶ月 |
| 敷引 |
- |
保証金償却 |
- |
| その他一時金 |
- |
保険等 |
要 |
| 維持費等 |
- |
| 間取り |
1LDK(洋 6.7 LDK 8.7) |
専有面積 |
39.00m² |
| 築年月 |
1950年1月(築76年5ヶ月)
|
階建 / 階 |
2階建 / 2階 |
| 建物構造 |
木造 |
総戸数 |
- |
| 主要採光面 |
|
駐車場 |
無 |
| バイク置き場 |
無 |
駐輪場 |
無 |
| 建物名・部屋番号 |
ヴェルメゾンプチ北白川 |
ペット |
小型犬可 |
| リフォーム履歴 |
- |
| リノベーション履歴 |
- |
| 備考 |
賃貸保証等:加入要(全保連株式会社)
管理形態/管理員の勤務形態:-/-
|
| エネルギー消費性能 |
- |
| 断熱性能 |
- |
| 目安光熱費 |
- |
| バス・トイレ |
バス・トイレ別、追焚機能、シャワー付洗面化粧台、洗面所独立、温水洗浄便座、浴室に窓あり |
| キッチン |
システムキッチン、3口以上コンロ、ガスコンロ付 |
| セキュリティー |
- |
| 収納 |
収納スペース |
| 設備・サービス |
室内洗濯機置場 |
| TV・通信 |
インターネット使用料無料 |
| その他 |
バルコニー |
| 契約期間 |
2年 |
現況 |
空家 |
| 条件等 |
- |
入居可能時期 |
即時 |
| 更新料 |
新賃料 1ヶ月 |
物件番号 |
6989553949 |
| 情報公開日 |
2026年2月18日 |
次回更新予定日 |
2026年5月28日 |
| ケータイ用バーコード |
- スマートフォンでこの物件を見る
- スマートフォンからもこの物件をご覧になれます。
|
※「-」と表示されている項目については、情報提供会社にご確認ください。
| 周辺施設 |
医療法人清水会脳神経リハビリ北大路病院 |
| 距離 |
1339m |
ここから簡単にお問い合わせをすることができます。
(SSLでの暗号化での送信を希望されるお客さまは
こちら
よりお問い合わせください)
お問い合わせを行う前に
「個人情報の取り扱いについて」を必ずお読みください。
「個人情報の取り扱いについて」に同意いただいた場合は「上記にご同意の上 確認画面へ進む」のボタンをクリックしてください。
個人情報の取り扱いについて
皆さまが送付された個人情報はアットホーム(株)のサーバを経由し、お問い合わせ先の不動産会社にメールまたはFAXにて転送されるためアットホーム(株)にも保管されます。アットホーム(株)で保管された個人情報の取り扱いについては、【こちら】をご覧ください。
また、本画面でご記入いただいた個人情報は、お問い合わせ先の不動産会社でも保管します。 お問い合わせ先の不動産会社が保管する個人情報の取り扱いについては、不動産会社に直接お問い合わせください。
京都府知事免許(1)第14580号 |
|---|
- 交通:
- 地下鉄東西線/京都市役所前駅 徒歩3分
- 京都府京都市中京区三条通御幸町西入弁慶石町48 三条ありもとビル4階2号
- TEL:
- 075-746-4666
- FAX:
- 075-746-4778
- 所属団体:
- (公社)京都府宅地建物取引業協会会員(公社)近畿地区不動産公正取引協議会加盟
取引態様:仲介  - 50107488
|
- スマートフォンで
この不動産会社を見る

|
- 提携サイト等より掲載されている物件情報につきましては、不動産会社詳細情報にリンクされていないものがあります。
- 物件に関するお問合せは、物件詳細ページの「情報提供会社」に表示されている不動産会社へ直接お願いいたします。
- 間取図は、現況を優先させていただきます。
- 映像は物件の一部を撮影したものです。物件の契約にあたっての最終判断はご自身の判断に基づいて行ってください。
- 仲介手数料について

アットホームは物件情報の適正化に努めております。
内容に誤りがある場合にはこちらへご連絡ください。