福島県郡山市富久山町久保田字梅田(郡山駅)の賃貸:物件詳細
交通 所在地 |
駅徒歩 |
賃料 管理費等 |
敷金/保証金 礼金 |
間取り 面積 |
物件種目 築年月 |
|
東北新幹線/郡山
福島県郡山市富久山町久保田字梅田
|
15分
|
3.3万円
3,000円
|
なし / なし
なし
|
ワンルーム
28.98m²
|
賃貸アパート
1989年5月(築36年11ヶ月)
|
ペット相談、フリーレント、南向き、事務所使用可、SOHO向き、2面採光
|
|
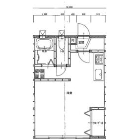
間取図
|
|
その他の画像
|
| 交通 | 東北新幹線 郡山駅 徒歩15分 |
|---|
| その他の交通 | JR東北本線 郡山駅 徒歩15分 |
| 所在地 |
福島県郡山市富久山町久保田字梅田
|
| 物件種目 |
賃貸アパート |
| 賃料 |
3.3万円 |
管理費等 |
3,000円 |
| 敷金 / 保証金 |
なし / なし |
礼金 |
なし |
| 敷引 |
- |
保証金償却 |
- |
| その他一時金 |
退去時ハウスクリーニング代:38,500円 |
保険等 |
要 2年 20,000円 借家人賠償 |
| 維持費等 |
- |
| 間取り |
ワンルーム(洋 8) |
専有面積 |
28.98m² |
| 築年月 |
1989年5月(築36年11ヶ月)
|
階建 / 階 |
2階建 / 1階 |
| 建物構造 |
木造 |
総戸数 |
6戸 |
| 主要採光面 |
南 |
駐車場 |
近有 5,000円/月 |
| バイク置き場 |
- |
駐輪場 |
- |
| 建物名・部屋番号 |
ネオフレンチスH 102 |
ペット |
家賃5000円増額、礼1 |
| アピールポイント |
この浮いたお金でうまくやりくりを!フリーレント有で、更に礼金敷金(保証金)0円。地上1階ならではの専用庭付、更に南向なので、1日を通して日が当たりやすく冬場もあったか。また広々とした延床面積28.98㎡の居室空間で、その上スマホやPCの使用には不可欠なインターネット使用料無料の物件なので、端末あれば繋がります。ちなみに部屋の換気もしやすい2面採光です。お探しの方には嬉しいペット相談可、事務所利用可。気ままな一人暮らしを満喫できるワンルーム。実際の空間をご自身で体感ください。 |
| リフォーム履歴 |
- |
| リノベーション履歴 |
- |
| 備考 |
賃貸保証等:加入要(入居者様の条件によって変動します。ご確認ください(高齢者・学生・社会人))
管理形態/管理員の勤務形態:-/-
フリーレント:2026年4月より賃料発生
|
| エネルギー消費性能 |
- |
| 断熱性能 |
- |
| 目安光熱費 |
- |
| バス・トイレ |
バス・トイレ別、シャワー、温水洗浄便座、トイレ |
| キッチン |
電気コンロ |
| セキュリティー |
モニター付インターホン、火災警報器(報知機) |
| 収納 |
クローゼット |
| 設備・サービス |
室内洗濯機置場、洗濯機置場、プロパンガス給湯、給湯、クッションフロア、プロパンガス、エアコン、照明器具 |
| TV・通信 |
インターネット対応、インターネット使用料無料 |
| その他 |
専用庭 |
| 契約期間 |
2年 |
現況 |
空家 |
| 条件等 |
- |
入居可能時期 |
即時 |
| 仲介手数料 |
1ヶ月 |
|
|
| 更新料 |
なし |
物件番号 |
6989574319 |
| 情報公開日 |
2026年2月19日 |
次回更新予定日 |
2026年3月30日 |
| ケータイ用バーコード |
- スマートフォンでこの物件を見る
- スマートフォンからもこの物件をご覧になれます。
|
※「-」と表示されている項目については、情報提供会社にご確認ください。
| 周辺施設 |
ファッションセンターしまむら若葉店 |
| 距離 |
933m |
| 周辺施設 |
セブンイレブン郡山大町2丁目店 |
| 距離 |
450m |
| 周辺施設 |
ファミリーマート郡山富久山梅田店 |
| 距離 |
683m |
| 周辺施設 |
びっくりドンキー富久山店 |
| 距離 |
796m |
| 周辺施設 |
公益財団法人星総合病院 |
| 距離 |
1013m |
ここから簡単にお問い合わせをすることができます。
(SSLでの暗号化での送信を希望されるお客さまは
こちら
よりお問い合わせください)
お問い合わせを行う前に
「個人情報の取り扱いについて」を必ずお読みください。
「個人情報の取り扱いについて」に同意いただいた場合は「上記にご同意の上 確認画面へ進む」のボタンをクリックしてください。
個人情報の取り扱いについて
皆さまが送付された個人情報はアットホーム(株)のサーバを経由し、お問い合わせ先の不動産会社にメールまたはFAXにて転送されるためアットホーム(株)にも保管されます。アットホーム(株)で保管された個人情報の取り扱いについては、【こちら】をご覧ください。
また、本画面でご記入いただいた個人情報は、お問い合わせ先の不動産会社でも保管します。 お問い合わせ先の不動産会社が保管する個人情報の取り扱いについては、不動産会社に直接お問い合わせください。
福島県知事免許(6)第2285号 |
|---|
- 交通:
- JR東北本線/郡山駅 徒歩30分 【バス】15分 郡山市役所 停歩3分
- 福島県郡山市桑野2丁目22-1
- TEL:
- 024-995-4453
- FAX:
- 024-995-4454
- 所属団体:
- (公社)福島県宅地建物取引業協会会員東北地区不動産公正取引協議会加盟
取引態様:代理  - 20003407
|
- スマートフォンで
この不動産会社を見る

|
- 提携サイト等より掲載されている物件情報につきましては、不動産会社詳細情報にリンクされていないものがあります。
- 物件に関するお問合せは、物件詳細ページの「情報提供会社」に表示されている不動産会社へ直接お願いいたします。
- 間取図は、現況を優先させていただきます。
- 映像は物件の一部を撮影したものです。物件の契約にあたっての最終判断はご自身の判断に基づいて行ってください。
- 仲介手数料について

アットホームは物件情報の適正化に努めております。
内容に誤りがある場合にはこちらへご連絡ください。