不動産 賃貸 マンション等の住宅情報:埼玉住まい情報


岩手県盛岡市盛岡駅西通2丁目の賃貸:物件詳細

  • 物件詳細
  • 情報の見方
  • 印刷用画面
交通
所在地
駅徒歩 賃料
管理費等
敷金/保証金
礼金
間取り
面積
物件種目
築年月

【バス】盛岡駅西口 停歩4分

岩手県盛岡市盛岡駅西通2丁目

12万円

2ヶ月 / なし

1ヶ月

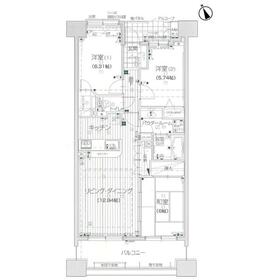
3LDK

76.07m²

賃貸マンション

2005年9月(築20年7ヶ月)

おすすめPOINT分譲タイプ、24時間セキュリティー、24時間換気システム、バリアフリー、外観タイル張り、ロードヒーティング、前面棟無、隣接建物距離2m以上

おすすめコメント

■空室につき随時ご見学可能です。ご見学予約受付中! ■JR「盛岡駅」より徒歩4分 ■南向き9階・3LDK ■エアコン2台付

間取図

間取図

外観

外観

<
その他の画像
  • リビング
  • リビング
  • キッチン
  • 洗面
  • バス/シャワー
  • トイレ
  • 周辺環境
  • 周辺環境
  • 周辺環境
  • 周辺環境
  • 周辺環境
  • 周辺環境
  • 周辺環境
  • 周辺環境
>
    • とりあえず保存
    • お問い合わせ
    交通

    【バス】 盛岡駅西口 停歩4分

    その他の交通

    JR東北本線 盛岡駅 徒歩4分

    【バス】 盛岡駅前 停歩6分

    所在地 岩手県盛岡市盛岡駅西通2丁目
    物件種目 賃貸マンション
    賃料 12万円 管理費等
    敷金 / 保証金 2ヶ月 / なし 礼金 1ヶ月
    敷引 保証金償却
    その他一時金 保険等 要 借家人賠償責任
    維持費等
    間取り 3LDK(和 6 洋 5.7・6.3) 専有面積 76.07m²
    築年月 2005年9月(築20年7ヶ月) 階建 / 階 14階建 / 9階
    建物構造 SRC 総戸数 73戸
    主要採光面 南西 駐車場
    バイク置き場 駐輪場
    建物名・部屋番号 Mシティ西口公園 ペット
    リフォーム履歴
    リノベーション履歴
    備考
    賃貸保証等:利用可(アーク賃貸保証、保証料:月額賃料合計と口座引落手数料の80%、口座引落手数料:月額330円)
    管理形態/管理員の勤務形態:-/日勤
    バルコニー:11.84m²
    外壁コンクリート、区画整理地内、管理人日勤
    ルームクリーニング費用借主負担(退去時)/1年未満での解約の場合、短期解約違約金1ヶ月分(退去時)
    エネルギー消費性能
    断熱性能
    目安光熱費
    バス・トイレ バス・トイレ別、浴室暖房、浴室乾燥機、オートバス、追焚機能、シャワー付洗面化粧台、洗面所独立、洗面所、洗面台、シャワー、温水洗浄便座、トイレ
    キッチン カウンターキッチン、システムキッチン、浄水器、IHクッキングヒーター、グリル
    セキュリティー モニター付オートロック、オートロック、モニター付インターホン、ディンプルキー、ダブルロックドア、防犯カメラ、火災警報器(報知機)
    収納 全居室収納、ウォークインクローゼット、収納スペース、トランクルーム、クローゼット
    設備・サービス エアコン2台以上、床暖房、室内洗濯機置場、洗濯機置場、都市ガス給湯、給湯、出窓、都市ガス、エアコン、暖房、冷房、人感センサー付照明、フットライト、ダウンライト、照明器具
    TV・通信 インターネット対応、ケーブルTV、マルチメディアコンセント
    その他 宅配BOX、バルコニー、エレベーター
    契約期間 2年 現況 空家
    条件等 入居可能時期 即時
    更新料 なし 物件番号 6989581722
    情報公開日 2026年2月20日 次回更新予定日 2026年3月29日
    ケータイ用バーコード

    QRコード

    スマートフォンでこの物件を見る
    スマートフォンからもこの物件をご覧になれます。
    ※「-」と表示されている項目については、情報提供会社にご確認ください。

    この物件の周辺情報

    周辺施設 桜城小学校
    距離 1200m
    周辺施設 城西中学校
    距離 900m
    周辺施設 駅西夕照公園
    距離 76m
    周辺施設 マリオス
    距離 300m
    周辺施設 アイーナ
    距離 400m
    周辺施設 フェザン
    距離 500m
    周辺施設 イオンタウン盛岡駅前
    距離 1000m
    周辺施設 マルイチ城西店
    距離 1100m

    クイックお問い合わせ

    ここから簡単にお問い合わせをすることができます。
    (SSLでの暗号化での送信を希望されるお客さまは こちら よりお問い合わせください)

    お問い合わせ内容(必須)
    お名前(必須) 姓  名 
    メールアドレス(必須)
    ※携帯電話のメールアドレスをご入力される方はこちらをご確認ください
    電話番号(必須)
    - -

    ※入力いただいた電話番号へSMSまたは音声でパスワードをご連絡します。

    携帯電話の番号をご入力の方へ

    携帯電話の番号をご入力の方へ
    確認画面にて送信ボタンをクリックするとSMSが携帯電話に届きます。
    そのSMSに記載のパスワード(認証番号)を入力し、お問い合わせを完了してください。
    尚、SMSの送信者番号は 0005 202 760 となります。
    これはアットホームの固定番号です。

    備考欄 希望条件、物件案内希望日、質問などがございましたらご記入ください。
    お問い合わせを行う前に「個人情報の取り扱いについて」を必ずお読みください。
    「個人情報の取り扱いについて」に同意いただいた場合は「上記にご同意の上 確認画面へ進む」のボタンをクリックしてください。

    個人情報の取り扱いについて

    皆さまが送付された個人情報はアットホーム(株)のサーバを経由し、お問い合わせ先の不動産会社にメールまたはFAXにて転送されるためアットホーム(株)にも保管されます。アットホーム(株)で保管された個人情報の取り扱いについては、【こちら】をご覧ください。
    また、本画面でご記入いただいた個人情報は、お問い合わせ先の不動産会社でも保管します。 お問い合わせ先の不動産会社が保管する個人情報の取り扱いについては、不動産会社に直接お問い合わせください。

    情報提供会社

    情報提供会社

    グレース住宅販売(株)

    国土交通大臣免許(4)第7605号

    交通:
    JR東北本線/盛岡駅 徒歩13分 【バス】 菜園川徳前 停歩1分
    岩手県盛岡市菜園1丁目11-3 カガヤ菜園ビル1階
    TEL:
    019-604-1616
    FAX:
    019-604-1618
    所属団体:
    (一社)岩手県宅地建物取引業協会会員
    不動産公正取引協議会加盟

    取引態様:仲介

    • 会社情報
    • 20001791
    スマートフォンで
    この不動産会社を見る
    QRコード
    • とりあえず保存
    • お問い合わせ
    • 提携サイト等より掲載されている物件情報につきましては、不動産会社詳細情報にリンクされていないものがあります。
    • 物件に関するお問合せは、物件詳細ページの「情報提供会社」に表示されている不動産会社へ直接お願いいたします。
    • 間取図は、現況を優先させていただきます。
    • 映像は物件の一部を撮影したものです。物件の契約にあたっての最終判断はご自身の判断に基づいて行ってください。
    • 仲介手数料について仲介手数料

    アットホームは物件情報の適正化に努めております。 内容に誤りがある場合にはこちらへご連絡ください。

    【埼玉住まい情報】では、日本全国の物件から賃貸マンションや賃貸アパート・賃貸一戸建て等の賃貸住宅情報、新築マンション・分譲マンションや中古マンション等の売買マンション情報、新築一戸建てや中古一戸建てなどの戸建住宅、 土地など、総合的な不動産住宅情報検索サービスを提供致します。
    【埼玉住まい情報】から、選りすぐりの不動産物件を探してみましょう。

    【免責事項】
    このコーナーの運営はアットホーム株式会社(https://www.athome.co.jp/)が行っています。
    このコーナーに掲載している物件情報は、「アットホーム不動産情報ネットワーク」に加盟する不動産会社等(情報提供元)から提供されています。信頼性の高い情報提供が行えるよう、最大限の努力をしておりますが、その内容を保証するものではありません。 利用者のみなさまと各情報提供元との取引に起因する損害および情報が掲載されたことに起因する損害等については、株式会社イーシティ埼玉、およびアットホームは一切責任を負いません。
    各物件情報の内容や画像等はすべて現況を優先させていただきます。
    お取引等(お取引の準備、資金調達等を含みます)の際には、内容や契約条件等について、各情報提供元より十分な説明を受け、ご自身でご確認の上、判断してください。
    このコーナーへの物件情報のご掲載、その他不動産業務ソリューション等についての不動産会社様のお問合せはこちらからお願いいたします。

    物件画像: