福島県田村郡三春町大字下舞木字正神平(舞木駅)の賃貸:物件詳細
交通 所在地 |
駅徒歩 |
賃料 管理費等 |
敷金/保証金 礼金 |
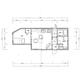
間取り 面積 |
物件種目 築年月 |
|
JR磐越東線/舞木
福島県田村郡三春町大字下舞木字正神平
|
10分
|
5.5万円
-
|
なし / なし
なし
|
1DK
31.38m²
|
賃貸一戸建て
1986年6月(築39年10ヶ月)
|
ペット相談、南向き、高齢者相談、ルームシェア可、二人入居可、事務所使用可、SOHO向き、3面採光、閑静な住宅街、保証人不要
|
|
間取図
|
|
<
その他の画像
>
|
| 交通 | JR磐越東線 舞木駅 徒歩10分 |
| 所在地 |
福島県田村郡三春町大字下舞木字正神平
|
| 物件種目 |
賃貸一戸建て |
| 賃料 |
5.5万円 |
管理費等 |
- |
| 敷金 / 保証金 |
なし / なし |
礼金 |
なし |
| 敷引 |
- |
保証金償却 |
- |
| その他一時金 |
退去時ハウスクリーニング費用:55,000円 |
保険等 |
要 2年 20,000円 借家人賠償 |
| 維持費等 |
- |
| 間取り |
1DK(洋 6) |
専有面積 |
31.38m² |
| 築年月 |
1986年6月(築39年10ヶ月)
|
階建 / 階 |
平屋建 |
| 建物構造 |
木造 |
総戸数 |
1戸 |
| 主要採光面 |
南 |
駐車場 |
有 無料 |
| バイク置き場 |
- |
駐輪場 |
- |
| 建物名・部屋番号 |
正神平戸建 戸建 |
ペット |
相談 |
| アピールポイント |
お財布喜ぶ!礼金敷金(保証金)0円。お探しの方には嬉しいペット相談可、高齢者入居相談可、事務所利用可。閑静な住宅街の住戸、更に暮らしと心に余裕を与える専用庭付なので、誰にも邪魔されないプライベートタイムがつくれます。また広々とした延床面積31.38㎡の居室空間で、その上年に一回しか出番のないシーズン物などを寄せておけるトランクルーム利用可なので、災害用グッズや備蓄アイテムの保管に役立ちます。ちなみに火力の微妙な調整も簡単なIHクッキングヒーター付です。カップルにもゆとりの独身生活にもぴったりの1DK。是非見学にお越しください。 |
| リフォーム履歴 |
■水回り:2022年6月 キッチン、浴室、トイレ、洗面所、給排水管、給湯器 ■内装:2022年6月 内装全面(床・壁・天井・建具) ■外装:2022年6月 外壁、屋根 ※実施年月は最も古い履歴を表示 |
| リノベーション履歴 |
- |
| 備考 |
賃貸保証等:加入要(お客様のプランにより変動)
管理形態/管理員の勤務形態:-/-
非喫煙者限定
|
| エネルギー消費性能 |
- |
| 断熱性能 |
- |
| 目安光熱費 |
- |
| バス・トイレ |
バス・トイレ別、追焚機能、シャワー付洗面化粧台、洗面所独立、洗面所、洗面台、シャワー、温水洗浄便座、トイレ |
| キッチン |
IHクッキングヒーター、3口以上コンロ |
| セキュリティー |
ディンプルキー、ダブルロックドア、火災警報器(報知機) |
| 収納 |
収納スペース、トランクルーム、クローゼット、シューズボックス |
| 設備・サービス |
室内洗濯機置場、洗濯機置場、灯油給湯、給湯、クッションフロア、エアコン、灯油、照明器具、複層ガラス |
| TV・通信 |
- |
| その他 |
専用庭、ウッドデッキ |
| 契約期間 |
2年 |
現況 |
空家 |
| 条件等 |
- |
入居可能時期 |
即時 |
| 仲介手数料 |
1ヶ月 |
|
|
| 更新料 |
- |
物件番号 |
6989602062 |
| 情報公開日 |
2026年2月21日 |
次回更新予定日 |
2026年3月30日 |
| ケータイ用バーコード |
- スマートフォンでこの物件を見る
- スマートフォンからもこの物件をご覧になれます。
|
※「-」と表示されている項目については、情報提供会社にご確認ください。
| 周辺施設 |
ミニストップ三春上舞木店 |
| 距離 |
831m |
| 周辺施設 |
セブンイレブン三春下舞木店 |
| 距離 |
1819m |
| 周辺施設 |
ローソン郡山富久山町福原店 |
| 距離 |
2942m |
| 周辺施設 |
セブンイレブン郡山富久山福原店 |
| 距離 |
3131m |
ここから簡単にお問い合わせをすることができます。
(SSLでの暗号化での送信を希望されるお客さまは
こちら
よりお問い合わせください)
お問い合わせを行う前に
「個人情報の取り扱いについて」を必ずお読みください。
「個人情報の取り扱いについて」に同意いただいた場合は「上記にご同意の上 確認画面へ進む」のボタンをクリックしてください。
個人情報の取り扱いについて
皆さまが送付された個人情報はアットホーム(株)のサーバを経由し、お問い合わせ先の不動産会社にメールまたはFAXにて転送されるためアットホーム(株)にも保管されます。アットホーム(株)で保管された個人情報の取り扱いについては、【こちら】をご覧ください。
また、本画面でご記入いただいた個人情報は、お問い合わせ先の不動産会社でも保管します。 お問い合わせ先の不動産会社が保管する個人情報の取り扱いについては、不動産会社に直接お問い合わせください。
福島県知事免許(6)第2285号 |
|---|
- 交通:
- JR東北本線/郡山駅 徒歩30分 【バス】15分 郡山市役所 停歩3分
- 福島県郡山市桑野2丁目22-1
- TEL:
- 024-995-4453
- FAX:
- 024-995-4454
- 所属団体:
- (公社)福島県宅地建物取引業協会会員東北地区不動産公正取引協議会加盟
取引態様:代理  - 20003407
|
- スマートフォンで
この不動産会社を見る

|
- 提携サイト等より掲載されている物件情報につきましては、不動産会社詳細情報にリンクされていないものがあります。
- 物件に関するお問合せは、物件詳細ページの「情報提供会社」に表示されている不動産会社へ直接お願いいたします。
- 間取図は、現況を優先させていただきます。
- 映像は物件の一部を撮影したものです。物件の契約にあたっての最終判断はご自身の判断に基づいて行ってください。
- 仲介手数料について

アットホームは物件情報の適正化に努めております。
内容に誤りがある場合にはこちらへご連絡ください。