不動産 賃貸 マンション等の住宅情報:埼玉住まい情報


岡山県倉敷市粒浦(茶屋町駅)の賃貸:物件詳細

  • 物件詳細
  • 情報の見方
  • 印刷用画面
交通
所在地
駅徒歩 賃料
管理費等
敷金/保証金
礼金
間取り
面積
物件種目
築年月

本四備讃線/茶屋町

岡山県倉敷市粒浦

44分

5.2万円

5,000円

なし / なし

1ヶ月

2DK

45.00m²

賃貸アパート

2002年11月(築23年7ヶ月)

おすすめPOINTペット相談、駐車場2台分、南向き

おすすめコメント

インターネット使用料無料(Wi-Fi付)、敷金0円!駐車場縦列2台付無料!庭有。スーパーへも徒歩5分!敷地内に防犯カメラあり。

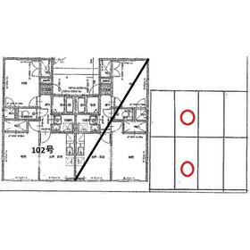
間取図

間取図

外観

外観

<
その他の画像
  • トイレ
  • バス/シャワー
  • 洗面
  • リビング
  • キッチン
  • 収納
  • その他
  • 室内
  • 設備
  • 収納
  • 収納
  • 設備
  • 駐車場
  • その他
>
    • とりあえず保存
    • お問い合わせ
    交通

    本四備讃線 茶屋町駅 徒歩44分

    所在地 岡山県倉敷市粒浦
    物件種目 賃貸アパート
    賃料 5.2万円 管理費等 5,000円
    敷金 / 保証金 なし / なし 礼金 1ヶ月
    敷引 保証金償却
    その他一時金 鍵交換代等:15,000円~ 保険等 要 2年 18,000円 宅建ファミリー
    維持費等
    間取り 2DK 専有面積 45.00m²
    築年月 2002年11月(築23年7ヶ月) 階建 / 階 2階建 / 2階
    建物構造 木造 総戸数 4戸
    主要採光面 駐車場 有 無料
    バイク置き場 駐輪場 有 無料
    建物名・部屋番号 レジデンシャル粒浦 102 ペット 小型犬可・ 条件等変更致します
    アピールポイント インターネット使用料無料(Wi-Fi付)、敷金0円!駐車場縦列2台付無料!庭有。スーパーへも徒歩5分!敷地内に防犯カメラあり。
    リフォーム履歴
    リノベーション履歴
    備考
    賃貸保証等:加入要(日本セーフティーへ加入要(初回に賃料×40%と1年毎更新料10,000円又は、月額保証料800円必要)口座振替手数料毎月400+消費税要す。)
    管理形態/管理員の勤務形態:-/-
    ◆インターネット使用料無料(Wi-Fi付)
    ◆ゴミステーション(当番なし)
    ◆町内会費3,000円/年(貸主負担とする)
    ◆モニター付インターホン
    ◆追い炊き機能付き
    ◆エアコン2基あり
    ◆温水洗浄便座
    ◆庭あり
    ◆敷金0円物件
    ◆契約時にハウスクリーニング代、鍵交換代、エアコン美装代要す
    エネルギー消費性能
    断熱性能
    目安光熱費
    バス・トイレ バス・トイレ別、追焚機能、温水洗浄便座
    キッチン ガスコンロ可
    セキュリティー モニター付インターホン
    収納 全居室収納、シューズボックス
    設備・サービス エアコン2台以上、室内洗濯機置場、給湯、プロパンガス
    TV・通信 インターネット使用料無料、光ファイバー
    その他 庭、駐輪場
    契約期間 2年 現況 空家
    条件等 入居可能時期 指定有り2026年4月10日
    更新料 なし 物件番号 6989678151
    情報公開日 2026年2月27日 次回更新予定日 2026年5月18日
    ケータイ用バーコード

    QRコード

    スマートフォンでこの物件を見る
    スマートフォンからもこの物件をご覧になれます。
    ※「-」と表示されている項目については、情報提供会社にご確認ください。

    この物件の周辺情報

    周辺施設 山陽マルナカ天城店
    距離 289m
    周辺施設 チョッパーズ天城店
    距離 948m
    周辺施設 セブンイレブン倉敷有城店
    距離 823m
    周辺施設 ザグザグ天城店
    距離 1180m
    周辺施設 倉敷市立新田中学校
    距離 2826m
    周辺施設 倉敷市立粒江小学校
    距離 1070m
    周辺施設 倉敷有城郵便局
    距離 281m
    周辺施設 水島信用金庫藤戸支店
    距離 917m

    クイックお問い合わせ

    ここから簡単にお問い合わせをすることができます。
    (SSLでの暗号化での送信を希望されるお客さまは こちら よりお問い合わせください)

    お問い合わせ内容(必須)
    お名前(必須) 姓  名 
    メールアドレス(必須)
    ※携帯電話のメールアドレスをご入力される方はこちらをご確認ください
    電話番号(必須)
    - -

    ※入力いただいた電話番号へSMSまたは音声でパスワードをご連絡します。

    携帯電話の番号をご入力の方へ

    携帯電話の番号をご入力の方へ
    確認画面にて送信ボタンをクリックするとSMSが携帯電話に届きます。
    そのSMSに記載のパスワード(認証番号)を入力し、お問い合わせを完了してください。
    尚、SMSの送信者番号は 0005 202 760 となります。
    これはアットホームの固定番号です。

    備考欄 希望条件、物件案内希望日、質問などがございましたらご記入ください。
    お問い合わせを行う前に「個人情報の取り扱いについて」を必ずお読みください。
    「個人情報の取り扱いについて」に同意いただいた場合は「上記にご同意の上 確認画面へ進む」のボタンをクリックしてください。

    個人情報の取り扱いについて

    皆さまが送付された個人情報はアットホーム(株)のサーバを経由し、お問い合わせ先の不動産会社にメールまたはFAXにて転送されるためアットホーム(株)にも保管されます。アットホーム(株)で保管された個人情報の取り扱いについては、【こちら】をご覧ください。
    また、本画面でご記入いただいた個人情報は、お問い合わせ先の不動産会社でも保管します。 お問い合わせ先の不動産会社が保管する個人情報の取り扱いについては、不動産会社に直接お問い合わせください。

    情報提供会社

    情報提供会社

    (有)代全

    岡山県知事免許(10)第2996号

    交通:
    JR山陽本線/倉敷駅 徒歩15分
    岡山県倉敷市日吉町475-19 1階 
    TEL:
    086-434-0033
    FAX:
    086-434-0036
    所属団体:
    (公社)岡山県宅地建物取引業協会会員
    中国地区不動産公正取引協議会加盟

    取引態様:仲介

    • 会社情報
    • 50023796
    スマートフォンで
    この不動産会社を見る
    QRコード
    • とりあえず保存
    • お問い合わせ
    • 提携サイト等より掲載されている物件情報につきましては、不動産会社詳細情報にリンクされていないものがあります。
    • 物件に関するお問合せは、物件詳細ページの「情報提供会社」に表示されている不動産会社へ直接お願いいたします。
    • 間取図は、現況を優先させていただきます。
    • 映像は物件の一部を撮影したものです。物件の契約にあたっての最終判断はご自身の判断に基づいて行ってください。
    • 仲介手数料について仲介手数料

    アットホームは物件情報の適正化に努めております。 内容に誤りがある場合にはこちらへご連絡ください。

    【埼玉住まい情報】では、日本全国の物件から賃貸マンションや賃貸アパート・賃貸一戸建て等の賃貸住宅情報、新築マンション・分譲マンションや中古マンション等の売買マンション情報、新築一戸建てや中古一戸建てなどの戸建住宅、 土地など、総合的な不動産住宅情報検索サービスを提供致します。
    【埼玉住まい情報】から、選りすぐりの不動産物件を探してみましょう。

    【免責事項】
    このコーナーの運営はアットホーム株式会社(https://www.athome.co.jp/)が行っています。
    このコーナーに掲載している物件情報は、「アットホーム不動産情報ネットワーク」に加盟する不動産会社等(情報提供元)から提供されています。信頼性の高い情報提供が行えるよう、最大限の努力をしておりますが、その内容を保証するものではありません。 利用者のみなさまと各情報提供元との取引に起因する損害および情報が掲載されたことに起因する損害等については、株式会社イーシティ埼玉、およびアットホームは一切責任を負いません。
    各物件情報の内容や画像等はすべて現況を優先させていただきます。
    お取引等(お取引の準備、資金調達等を含みます)の際には、内容や契約条件等について、各情報提供元より十分な説明を受け、ご自身でご確認の上、判断してください。
    このコーナーへの物件情報のご掲載、その他不動産業務ソリューション等についての不動産会社様のお問合せはこちらからお願いいたします。

    物件画像: