東京都品川区上大崎2丁目(目黒駅)の賃貸:物件詳細
交通 所在地 |
駅徒歩 |
賃料 管理費等 |
敷金/保証金 礼金 |
間取り 面積 |
物件種目 築年月 |
|
JR山手線/目黒
東京都品川区上大崎2丁目
|
8分
|
16.9万円
10,000円
|
1ヶ月 / なし
なし
|
ワンルーム
34.37m²
|
賃貸マンション
2005年3月(築21年1ヶ月)
|
ペット相談、常時ゴミ出し可能、24時間換気システム、外観タイル張り、保証人不要
|
|
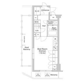
間取図
|
外観
|
<
その他の画像
>
|
| 交通 | JR山手線 目黒駅 徒歩8分 |
|---|
| その他の交通 | JR山手線 恵比寿駅 徒歩13分 東京メトロ南北線 目黒駅 徒歩8分 |
| 所在地 |
東京都品川区上大崎2丁目
|
| 物件種目 |
賃貸マンション |
| 賃料 |
16.9万円 |
管理費等 |
10,000円 |
| 敷金 / 保証金 |
1ヶ月 / なし |
礼金 |
なし |
| 敷引 |
- |
保証金償却 |
- |
| その他一時金 |
鍵交換代等:33,000円~ |
保険等 |
要 1年 16,550円 |
| 維持費等 |
- |
クレジットカード決済 |
初期費用可 |
| 間取り |
ワンルーム(洋 10.2) |
専有面積 |
34.37m² |
| 築年月 |
2005年3月(築21年1ヶ月)
|
階建 / 階 |
地上3階地下2階建 / 2階 |
| 建物構造 |
RC |
総戸数 |
71戸 |
| 主要採光面 |
西 |
駐車場 |
- |
| バイク置き場 |
- |
駐輪場 |
有 無料 |
| 建物名・部屋番号 |
|
ペット |
小型犬可・ 猫可 |
| リフォーム履歴 |
- |
| リノベーション履歴 |
- |
| 備考 |
賃貸保証等:加入要(証料:賃料等の50%、月次保証料:賃料等の1%(更新料無))
管理形態/管理員の勤務形態:-/巡回
管理人巡回
★弊社キャンペーン物件
・ペットは小型犬1匹か猫2匹まで(飼育時は敷金1ヶ月追加)
|
| エネルギー消費性能 |
- |
| 断熱性能 |
- |
| 目安光熱費 |
- |
| バス・トイレ |
バス・トイレ別、浴室暖房、浴室乾燥機、オートバス、追焚機能、シャワー付洗面化粧台、洗面所独立、洗面所、洗面台、シャワー、温水洗浄便座、トイレ |
| キッチン |
システムキッチン、2口コンロ、ガスコンロ付、グリル |
| セキュリティー |
モニター付オートロック、オートロック、モニター付インターホン、防犯カメラ |
| 収納 |
収納スペース、クローゼット、シューズボックス |
| 設備・サービス |
室内洗濯機置場、洗濯機置場、給湯、フローリング、都市ガス、エアコン |
| TV・通信 |
光ファイバー、ケーブルTV、BS端子 |
| その他 |
宅配BOX、ルーフバルコニー、バルコニー、駐輪場、エレベーター |
| 契約期間 |
2年 |
現況 |
空家 |
| 条件等 |
- |
入居可能時期 |
2026年3月下旬予定 |
| 仲介手数料 |
不要 |
|
|
| 更新料 |
新賃料 1ヶ月 |
物件番号 |
6989738025 |
| 情報公開日 |
2026年3月3日 |
次回更新予定日 |
2026年3月17日 |
| ケータイ用バーコード |
- スマートフォンでこの物件を見る
- スマートフォンからもこの物件をご覧になれます。
|
※「-」と表示されている項目については、情報提供会社にご確認ください。
| 周辺施設 |
恵比寿ガーデンプレイス |
| 距離 |
609m |
写真を見る |
| 周辺施設 |
まいばすけっと上大崎2丁目店 |
| 距離 |
178m |
写真を見る |
| 周辺施設 |
目黒東急ストア |
| 距離 |
453m |
写真を見る |
| 周辺施設 |
ファミリーマート目黒三田通り店 |
| 距離 |
334m |
写真を見る |
| 周辺施設 |
トモズ恵比寿ガーデンプレイス店 |
| 距離 |
608m |
写真を見る |
| 周辺施設 |
総合病院厚生中央病院 |
| 距離 |
477m |
写真を見る |
| 周辺施設 |
目黒三田郵便局 |
| 距離 |
504m |
写真を見る |
| 周辺施設 |
東京都写真美術館 |
| 距離 |
509m |
写真を見る |
ここから簡単にお問い合わせをすることができます。
(SSLでの暗号化での送信を希望されるお客さまは
こちら
よりお問い合わせください)
お問い合わせを行う前に
「個人情報の取り扱いについて」を必ずお読みください。
「個人情報の取り扱いについて」に同意いただいた場合は「上記にご同意の上 確認画面へ進む」のボタンをクリックしてください。
個人情報の取り扱いについて
皆さまが送付された個人情報はアットホーム(株)のサーバを経由し、お問い合わせ先の不動産会社にメールまたはFAXにて転送されるためアットホーム(株)にも保管されます。アットホーム(株)で保管された個人情報の取り扱いについては、【こちら】をご覧ください。
また、本画面でご記入いただいた個人情報は、お問い合わせ先の不動産会社でも保管します。 お問い合わせ先の不動産会社が保管する個人情報の取り扱いについては、不動産会社に直接お問い合わせください。
東京都知事免許(4)第92596号 |
|---|
- 交通:
- JR山手線/恵比寿駅
- 東京都渋谷区広尾1丁目1-30 小笠原ビル
- TEL:
- 03-5468-7731
- FAX:
- 03-5468-7732
- 所属団体:
- (公社)東京都宅地建物取引業協会会員(公社)首都圏不動産公正取引協議会加盟
取引態様:仲介  - 00104246
|
- スマートフォンで
この不動産会社を見る

|
- 提携サイト等より掲載されている物件情報につきましては、不動産会社詳細情報にリンクされていないものがあります。
- 物件に関するお問合せは、物件詳細ページの「情報提供会社」に表示されている不動産会社へ直接お願いいたします。
- 間取図は、現況を優先させていただきます。
- 映像は物件の一部を撮影したものです。物件の契約にあたっての最終判断はご自身の判断に基づいて行ってください。
- 仲介手数料について

アットホームは物件情報の適正化に努めております。
内容に誤りがある場合にはこちらへご連絡ください。