東京都新宿区早稲田南町(早稲田駅)の賃貸:物件詳細
交通 所在地 |
駅徒歩 |
賃料 管理費等 |
敷金/保証金 礼金 |
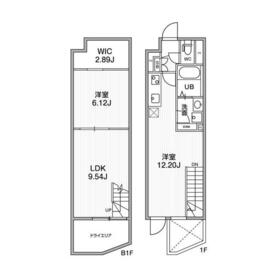
間取り 面積 |
物件種目 築年月 |
|
東京メトロ東西線/早稲田
東京都新宿区早稲田南町
|
6分
|
23.4万円
15,000円
|
なし / なし
なし
|
2LDK
60.04m²
|
賃貸マンション
2022年12月(築3年4ヶ月)
|
24時間換気システム、吹抜、外観タイル張り
|
|
間取図
間取り図
|
外観
外観
|
その他の画像
|
| 交通 | 東京メトロ東西線 早稲田駅 徒歩6分 |
|---|
| その他の交通 | 都営大江戸線 牛込柳町駅 徒歩7分 |
| 所在地 |
東京都新宿区早稲田南町
|
| 物件種目 |
賃貸マンション |
| 賃料 |
23.4万円 |
管理費等 |
15,000円 |
| 敷金 / 保証金 |
なし / なし |
礼金 |
なし |
| 敷引 |
- |
保証金償却 |
- |
| その他一時金 |
Goodプレミアムα(24Hサポートのみ):16,500円、住宅総合保険(フレックス):28,000円、Goodプレミアムα登録料:3,300円、鍵交換代等:24,200円~ |
保険等 |
不要 |
| 維持費等 |
- |
| 間取り |
2LDK |
専有面積 |
60.04m² |
| 築年月 |
2022年12月(築3年4ヶ月)
|
階建 / 階 |
5階建 / 1階 |
| 建物構造 |
RC |
総戸数 |
28戸 |
| 主要採光面 |
南東 |
駐車場 |
- |
| バイク置き場 |
無 |
駐輪場 |
無 |
| 建物名・部屋番号 |
ALTERNA早稲田 |
ペット |
-
|
| リフォーム履歴 |
- |
| リノベーション履歴 |
- |
| 備考 |
管理形態/管理員の勤務形態:-/-
|
| エネルギー消費性能 |
- |
| 断熱性能 |
- |
| 目安光熱費 |
- |
| バス・トイレ |
バス・トイレ別、浴室乾燥機、追焚機能、洗面所独立、洗面所、シャワー、温水洗浄便座、トイレ |
| キッチン |
システムキッチン、2口コンロ、ガスコンロ付、グリル |
| セキュリティー |
オートロック、モニター付インターホン、ダブルロックドア、防犯カメラ、火災警報器(報知機) |
| 収納 |
シューズボックス |
| 設備・サービス |
エアコン2台以上、室内洗濯機置場、洗濯機置場、給湯、フローリング、都市ガス、エアコン、人感センサー付照明、照明器具 |
| TV・通信 |
インターネット使用料無料、光ファイバー、CS、BS端子 |
| その他 |
宅配BOX、エレベーター |
| 契約期間 |
2年 |
現況 |
空家 |
| 条件等 |
- |
入居可能時期 |
即時 |
| 更新料 |
234,000円 |
物件番号 |
6989758018 |
| 情報公開日 |
2026年3月4日 |
次回更新予定日 |
2026年3月18日 |
| ケータイ用バーコード |
- スマートフォンでこの物件を見る
- スマートフォンからもこの物件をご覧になれます。
|
※「-」と表示されている項目については、情報提供会社にご確認ください。
ここから簡単にお問い合わせをすることができます。
(SSLでの暗号化での送信を希望されるお客さまは
こちら
よりお問い合わせください)
お問い合わせを行う前に
「個人情報の取り扱いについて」を必ずお読みください。
「個人情報の取り扱いについて」に同意いただいた場合は「上記にご同意の上 確認画面へ進む」のボタンをクリックしてください。
個人情報の取り扱いについて
皆さまが送付された個人情報はアットホーム(株)のサーバを経由し、お問い合わせ先の不動産会社にメールまたはFAXにて転送されるためアットホーム(株)にも保管されます。アットホーム(株)で保管された個人情報の取り扱いについては、【こちら】をご覧ください。
また、本画面でご記入いただいた個人情報は、お問い合わせ先の不動産会社でも保管します。 お問い合わせ先の不動産会社が保管する個人情報の取り扱いについては、不動産会社に直接お問い合わせください。
東京都知事免許(2)第100350号 |
|---|
- 交通:
- JR山手線/新宿駅 徒歩5分
- 東京都新宿区歌舞伎町1丁目8-3 良川ビルⅤ2F
- TEL:
- 03-6205-5732
- 所属団体:
- (公社)全日本不動産協会会員(公社)首都圏不動産公正取引協議会加盟
取引態様:仲介  - 00282069
|
- スマートフォンで
この不動産会社を見る

|
- 提携サイト等より掲載されている物件情報につきましては、不動産会社詳細情報にリンクされていないものがあります。
- 物件に関するお問合せは、物件詳細ページの「情報提供会社」に表示されている不動産会社へ直接お願いいたします。
- 間取図は、現況を優先させていただきます。
- 映像は物件の一部を撮影したものです。物件の契約にあたっての最終判断はご自身の判断に基づいて行ってください。
- 仲介手数料について

アットホームは物件情報の適正化に努めております。
内容に誤りがある場合にはこちらへご連絡ください。