埼玉県草加市新里町(見沼代親水公園駅)の賃貸:物件詳細
交通 所在地 |
駅徒歩 |
賃料 管理費等 |
敷金/保証金 礼金 |
間取り 面積 |
物件種目 築年月 |
|
日暮里舎人ライナー/見沼代親水公園
埼玉県草加市新里町
|
18分
|
12万円
6,600円
|
1ヶ月 / なし
1ヶ月
|
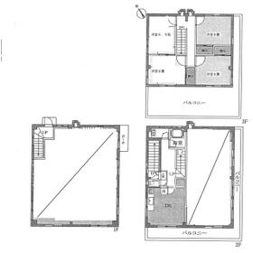
4DK
60.00m²
|
賃貸一戸建て
1983年5月(築43年1ヶ月)
|
|
間取図
|
|
<
その他の画像
>
|
| 交通 | 日暮里舎人ライナー 見沼代親水公園駅 徒歩18分 |
|---|
| その他の交通 | 日暮里舎人ライナー 舎人駅 徒歩22分 東武伊勢崎線 竹ノ塚駅 徒歩26分 |
| 所在地 |
埼玉県草加市新里町
|
| 物件種目 |
賃貸一戸建て |
| 賃料 |
12万円 |
管理費等 |
6,600円 |
| 敷金 / 保証金 |
1ヶ月 / なし |
礼金 |
1ヶ月 |
| 敷引 |
- |
保証金償却 |
- |
| その他一時金 |
- |
保険等 |
要 火災 |
| 維持費等 |
- |
| 間取り |
4DK(洋 6・6・4.5・6) |
専有面積 |
60.00m² |
| 築年月 |
1983年5月(築43年1ヶ月)
|
階建 / 階 |
3階建 |
| 建物構造 |
鉄骨造 |
総戸数 |
- |
| 主要採光面 |
|
駐車場 |
無 |
| バイク置き場 |
- |
駐輪場 |
- |
| 建物名・部屋番号 |
|
ペット |
-
|
| アピールポイント |
部屋をスッキリみせられるクローゼット付、更にアウトドアや趣味のグッズを置くのにもってこいの収納スペース有なので、片付けめんどくさい!という方の強い味方に。またシステムキッチン付で、その上一度に複数のおかず作りを同時進行できるコンロ3口以上の仕様なので、晩ごはんの支度と翌日の弁当準備ができます。ちなみに主室のみならず他の居室も含めエアコン2台以上設置済です。自然に団らんが生まれる3DK。ご案内いたしますのでお気軽にご連絡ください。 |
| リフォーム履歴 |
■水回り:2026年2月 キッチン、浴室、トイレ、洗面所 ■その他:2026年2月 フルリフォーム ※実施年月は最も古い履歴を表示 |
| リノベーション履歴 |
- |
| 備考 |
賃貸保証等:加入要(条件により50%~)
管理形態/管理員の勤務形態:-/-
≪学区≫
新里小学校
両新田中学校
|
| エネルギー消費性能 |
- |
| 断熱性能 |
- |
| 目安光熱費 |
- |
| バス・トイレ |
バス・トイレ別、追焚機能、シャワー、温水洗浄便座、浴室に窓あり |
| キッチン |
システムキッチン、3口以上コンロ、グリル |
| セキュリティー |
- |
| 収納 |
収納スペース、クローゼット |
| 設備・サービス |
エアコン2台以上 |
| TV・通信 |
- |
| その他 |
- |
| 契約期間 |
2年 |
現況 |
空家 |
| 条件等 |
- |
入居可能時期 |
相談 |
| 更新料 |
- |
物件番号 |
6989793922 |
| 情報公開日 |
2026年4月21日 |
次回更新予定日 |
2026年5月23日 |
| ケータイ用バーコード |
- スマートフォンでこの物件を見る
- スマートフォンからもこの物件をご覧になれます。
|
※「-」と表示されている項目については、情報提供会社にご確認ください。
| 周辺施設 |
セブンイレブン草加新里下町店 |
| 距離 |
45m |
ここから簡単にお問い合わせをすることができます。
(SSLでの暗号化での送信を希望されるお客さまは
こちら
よりお問い合わせください)
お問い合わせを行う前に
「個人情報の取り扱いについて」を必ずお読みください。
「個人情報の取り扱いについて」に同意いただいた場合は「上記にご同意の上 確認画面へ進む」のボタンをクリックしてください。
個人情報の取り扱いについて
皆さまが送付された個人情報はアットホーム(株)のサーバを経由し、お問い合わせ先の不動産会社にメールまたはFAXにて転送されるためアットホーム(株)にも保管されます。アットホーム(株)で保管された個人情報の取り扱いについては、【こちら】をご覧ください。
また、本画面でご記入いただいた個人情報は、お問い合わせ先の不動産会社でも保管します。 お問い合わせ先の不動産会社が保管する個人情報の取り扱いについては、不動産会社に直接お問い合わせください。
埼玉県知事免許(8)第15115号 |
|---|
- 交通:
- 東武伊勢崎線/獨協大学前駅 徒歩10分
- 埼玉県草加市草加4丁目2-5
- TEL:
- 048-946-0070
- FAX:
- 048-946-0071
- 所属団体:
- (公社)全日本不動産協会会員(公社)首都圏不動産公正取引協議会加盟
取引態様:仲介  - 00004214
|
- スマートフォンで
この不動産会社を見る

|
- 提携サイト等より掲載されている物件情報につきましては、不動産会社詳細情報にリンクされていないものがあります。
- 物件に関するお問合せは、物件詳細ページの「情報提供会社」に表示されている不動産会社へ直接お願いいたします。
- 間取図は、現況を優先させていただきます。
- 映像は物件の一部を撮影したものです。物件の契約にあたっての最終判断はご自身の判断に基づいて行ってください。
- 仲介手数料について

アットホームは物件情報の適正化に努めております。
内容に誤りがある場合にはこちらへご連絡ください。