神奈川県横浜市港北区日吉5丁目(日吉駅)の賃貸:物件詳細
交通 所在地 |
駅徒歩 |
賃料 管理費等 |
敷金/保証金 礼金 |
間取り 面積 |
物件種目 築年月 |
|
東急東横線/日吉
神奈川県横浜市港北区日吉5丁目
|
17分
|
9.8万円
なし
|
1ヶ月 / なし
1ヶ月
|
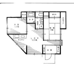
2LDK
50.89m²
|
賃貸一戸建て
1991年5月(築34年11ヶ月)
|
ペット相談、SOHO向き、閑静な住宅街
|
|
間取図
|
外観
|
<
その他の画像
>
|
| 交通 | 東急東横線 日吉駅 徒歩17分 |
|---|
| その他の交通 | グリーンライン 日吉駅 徒歩17分 |
| 所在地 |
神奈川県横浜市港北区日吉5丁目
|
| 物件種目 |
賃貸一戸建て |
| 賃料 |
9.8万円 |
管理費等 |
なし |
| 敷金 / 保証金 |
1ヶ月 / なし |
礼金 |
1ヶ月 |
| 敷引 |
- |
保証金償却 |
- |
| その他一時金 |
- |
保険等 |
要 2年 30,000円 火災保険・借家人賠償 |
| 維持費等 |
- |
| 間取り |
2LDK(和 6 洋 5.2 LDK 13.5) |
専有面積 |
50.89m² |
| 築年月 |
1991年5月(築34年11ヶ月)
|
階建 / 階 |
2階建 |
| 建物構造 |
木造 |
総戸数 |
- |
| 主要採光面 |
|
駐車場 |
無 |
| バイク置き場 |
- |
駐輪場 |
- |
| 建物名・部屋番号 |
日吉戸建 |
ペット |
敷金2ヶ月。退去時償却2ヶ月。 |
| アピールポイント |
ペット飼育に関しては、担当者にお尋ね下さい。小型犬または猫。 |
| リフォーム履歴 |
- |
| リノベーション履歴 |
- |
| 備考 |
賃貸保証等:加入要(連帯保証人有りの場合、賃料の50パーセント・連帯保証人無し、緊急連絡先の場合、賃料の60パーセント。)
管理形態/管理員の勤務形態:-/-
|
| エネルギー消費性能 |
- |
| 断熱性能 |
- |
| 目安光熱費 |
- |
| バス・トイレ |
温水洗浄便座 |
| キッチン |
3口以上コンロ、ガスコンロ付 |
| セキュリティー |
モニター付インターホン |
| 収納 |
全居室収納、収納スペース |
| 設備・サービス |
室内洗濯機置場、プロパンガス給湯、フローリング、エアコン |
| TV・通信 |
インターネット対応 |
| その他 |
- |
| 契約期間 |
2年 |
現況 |
空家 |
| 条件等 |
- |
入居可能時期 |
相談 |
| 更新料 |
新賃料 1ヶ月 |
物件番号 |
6989811473 |
| 情報公開日 |
2026年3月7日 |
次回更新予定日 |
2026年3月21日 |
| ケータイ用バーコード |
- スマートフォンでこの物件を見る
- スマートフォンからもこの物件をご覧になれます。
|
※「-」と表示されている項目については、情報提供会社にご確認ください。
ここから簡単にお問い合わせをすることができます。
(SSLでの暗号化での送信を希望されるお客さまは
こちら
よりお問い合わせください)
お問い合わせを行う前に
「個人情報の取り扱いについて」を必ずお読みください。
「個人情報の取り扱いについて」に同意いただいた場合は「上記にご同意の上 確認画面へ進む」のボタンをクリックしてください。
個人情報の取り扱いについて
皆さまが送付された個人情報はアットホーム(株)のサーバを経由し、お問い合わせ先の不動産会社にメールまたはFAXにて転送されるためアットホーム(株)にも保管されます。アットホーム(株)で保管された個人情報の取り扱いについては、【こちら】をご覧ください。
また、本画面でご記入いただいた個人情報は、お問い合わせ先の不動産会社でも保管します。 お問い合わせ先の不動産会社が保管する個人情報の取り扱いについては、不動産会社に直接お問い合わせください。
東京都知事免許(5)第81731号 |
|---|
- 交通:
- JR山手線/渋谷駅 徒歩8分
- 東京都渋谷区渋谷2丁目8-7 青山宮野ビル3F
- TEL:
- 03-5485-7811
- FAX:
- 03-5485-7419
- 所属団体:
- (一社)全国不動産協会会員
取引態様:仲介  - 00820444
|
- スマートフォンで
この不動産会社を見る

|
- 提携サイト等より掲載されている物件情報につきましては、不動産会社詳細情報にリンクされていないものがあります。
- 物件に関するお問合せは、物件詳細ページの「情報提供会社」に表示されている不動産会社へ直接お願いいたします。
- 間取図は、現況を優先させていただきます。
- 映像は物件の一部を撮影したものです。物件の契約にあたっての最終判断はご自身の判断に基づいて行ってください。
- 仲介手数料について

アットホームは物件情報の適正化に努めております。
内容に誤りがある場合にはこちらへご連絡ください。