東京都目黒区青葉台4丁目(神泉駅)の賃貸:物件詳細
交通 所在地 |
駅徒歩 |
賃料 管理費等 |
敷金/保証金 礼金 |
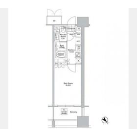
間取り 面積 |
物件種目 築年月 |
|
京王井の頭線/神泉
東京都目黒区青葉台4丁目
|
5分
|
15.9万円
10,000円
|
1ヶ月 / なし
なし
|
1K
55.47m²
|
賃貸マンション
2015年10月(築10年6ヶ月)
|
ペット相談、常時ゴミ出し可能
|
|
間取図
|
|
その他の画像
|
| 交通 | 京王井の頭線 神泉駅 徒歩5分 |
|---|
| その他の交通 | JR山手線 渋谷駅 徒歩11分 京王井の頭線 渋谷駅 徒歩11分 |
| 所在地 |
東京都目黒区青葉台4丁目
|
| 物件種目 |
賃貸マンション |
| 賃料 |
15.9万円 |
管理費等 |
10,000円 |
| 敷金 / 保証金 |
1ヶ月 / なし |
礼金 |
なし |
| 敷引 |
- |
保証金償却 |
- |
| その他一時金 |
鍵交換代等:33,000円~ |
保険等 |
要 2年 16,550円 |
| 維持費等 |
- |
クレジットカード決済 |
初期費用可 |
| 間取り |
1K(K 9.7) |
専有面積 |
55.47m² |
| 築年月 |
2015年10月(築10年6ヶ月)
|
階建 / 階 |
地上14階地下1階建 / 8階 |
| 建物構造 |
RC |
総戸数 |
123戸 |
| 主要採光面 |
北 |
駐車場 |
- |
| バイク置き場 |
有 |
駐輪場 |
有 |
| 建物名・部屋番号 |
コンフォリア渋谷WEST(シブヤウェスト) |
ペット |
相談 |
| アピールポイント |
私たちPEEPSは「People(人々)」というスラングから生まれた不動産会社です。
不動産業界にありがちな不透明な費用や分かりにくい取引をなくし、
お客様に正直で誠実なサービスを提供したいという代表の想いから設立しました。
PEEPSでは不要な費用を徹底的に見直し、仲介手数料をなくすなど初期費用を可能な限り抑える仕組みを取り入れています。
ただ安いから契約していただくのではなく、お客様の新生活をより良いものにすることが私たちの目的です。
浮いた費用を家具や新生活の準備に使っていただくことで、引っ越しの満足度はきっと高まるはずです。
お部屋探しの検討段階から入居後、そして次の引っ越しまで、長く信頼していただける関係を築きたいと考えています。※すべての物件が無料対象ではございません。 |
| リフォーム履歴 |
- |
| リノベーション履歴 |
- |
| 備考 |
賃貸保証等:加入要(保証料:賃料等の50%(最低2万)、月額保証料:賃料等の1%(更新料無))
管理形態/管理員の勤務形態:-/日勤
管理人日勤
|
| エネルギー消費性能 |
- |
| 断熱性能 |
- |
| 目安光熱費 |
- |
| バス・トイレ |
バス・トイレ別、洗面所独立、洗面所、シャワー、トイレ |
| キッチン |
2口コンロ、ガスコンロ付 |
| セキュリティー |
モニター付オートロック、オートロック、モニター付インターホン、防犯カメラ |
| 収納 |
収納スペース、クローゼット、シューズボックス |
| 設備・サービス |
室内洗濯機置場、洗濯機置場、フローリング、都市ガス、エアコン |
| TV・通信 |
インターネット対応、インターネット使用料無料、光ファイバー、ケーブルTV、CS |
| その他 |
宅配BOX、バイク置き場、バルコニー、駐輪場、エレベーター |
| 契約期間 |
2年 |
現況 |
空家 |
| 条件等 |
- |
入居可能時期 |
2026年4月下旬予定 |
| 仲介手数料 |
不要 |
|
|
| 更新料 |
新賃料 1ヶ月 |
物件番号 |
6989871424 |
| 情報公開日 |
2026年3月11日 |
次回更新予定日 |
2026年3月25日 |
| ケータイ用バーコード |
- スマートフォンでこの物件を見る
- スマートフォンからもこの物件をご覧になれます。
|
※「-」と表示されている項目については、情報提供会社にご確認ください。
| 周辺施設 |
セブンイレブン目黒青葉台3丁目店 |
| 距離 |
121m |
| 周辺施設 |
ファミリーマート目黒青葉台四丁目店 |
| 距離 |
142m |
| 周辺施設 |
ナチュラルローソン渋谷神泉町店 |
| 距離 |
90m |
| 周辺施設 |
トヨタモビリティ東京渋谷神泉店 |
| 距離 |
156m |
ここから簡単にお問い合わせをすることができます。
(SSLでの暗号化での送信を希望されるお客さまは
こちら
よりお問い合わせください)
お問い合わせを行う前に
「個人情報の取り扱いについて」を必ずお読みください。
「個人情報の取り扱いについて」に同意いただいた場合は「上記にご同意の上 確認画面へ進む」のボタンをクリックしてください。
個人情報の取り扱いについて
皆さまが送付された個人情報はアットホーム(株)のサーバを経由し、お問い合わせ先の不動産会社にメールまたはFAXにて転送されるためアットホーム(株)にも保管されます。アットホーム(株)で保管された個人情報の取り扱いについては、【こちら】をご覧ください。
また、本画面でご記入いただいた個人情報は、お問い合わせ先の不動産会社でも保管します。 お問い合わせ先の不動産会社が保管する個人情報の取り扱いについては、不動産会社に直接お問い合わせください。
東京都知事免許(1)第110283号 |
|---|
- 交通:
- 東急東横線/代官山駅 徒歩1分
- 東京都渋谷区代官山町20-23 フォレストゲート代官山メイン棟3階
- TEL:
- 03-4567-6530
- 所属団体:
- (公社)全日本不動産協会会員(公社)首都圏不動産公正取引協議会加盟
取引態様:仲介  - 00276743
|
- スマートフォンで
この不動産会社を見る

|
- 提携サイト等より掲載されている物件情報につきましては、不動産会社詳細情報にリンクされていないものがあります。
- 物件に関するお問合せは、物件詳細ページの「情報提供会社」に表示されている不動産会社へ直接お願いいたします。
- 間取図は、現況を優先させていただきます。
- 映像は物件の一部を撮影したものです。物件の契約にあたっての最終判断はご自身の判断に基づいて行ってください。
- 仲介手数料について

アットホームは物件情報の適正化に努めております。
内容に誤りがある場合にはこちらへご連絡ください。