北海道札幌市北区北六条西8丁目(札幌駅)の賃貸:物件詳細
交通 所在地 |
駅徒歩 |
賃料 管理費等 |
敷金/保証金 礼金 |
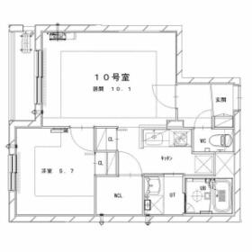
間取り 面積 |
物件種目 築年月 |
|
JR函館本線/札幌
北海道札幌市北区北六条西8丁目
|
7分
|
11.2万円
7,000円
|
1ヶ月 / なし
なし
|
2LDK
55.14m²
|
賃貸マンション
2024年7月(築1年9ヶ月)
|
デザイナーズ、角部屋、24時間換気システム、閑静な住宅街、ロードヒーティング、前面棟無
|
|
間取図
間取図
|
外観
スタイリッシュな外観
|
<
その他の画像
>
|
| 交通 | JR函館本線 札幌駅 徒歩7分 |
|---|
| その他の交通 | 札幌市南北線 さっぽろ駅 徒歩11分 札幌市東豊線 さっぽろ駅 徒歩14分 |
| 所在地 |
北海道札幌市北区北六条西8丁目
|
| 物件種目 |
賃貸マンション |
| 賃料 |
11.2万円 |
管理費等 |
7,000円 |
| 敷金 / 保証金 |
1ヶ月 / なし |
礼金 |
なし |
| 敷引 |
- |
保証金償却 |
- |
| その他一時金 |
ハウスクリーニング料(税込/契約時):30,800円、分解清掃料(税込/契約時):22,000円 |
保険等 |
要 2年 21,630円 火災 |
| 維持費等 |
トランクルーム(税込/希望者のみ):3,300円/月 |
| 間取り |
2LDK(洋 6・4.6 LDK 8.7) |
専有面積 |
55.14m² |
| 築年月 |
2024年7月(築1年9ヶ月)
|
階建 / 階 |
5階建 / 1階 |
| 建物構造 |
RC |
総戸数 |
38戸 |
| 主要採光面 |
東 |
駐車場 |
有 22,000円/月 |
| バイク置き場 |
無 |
駐輪場 |
有 440円/月 |
| 建物名・部屋番号 |
Mesig Green 106 |
ペット |
-
|
| アピールポイント |
JR『札幌駅』徒歩7分
☆都市ガス物件
☆エアコン完備
☆システムキッチン
☆温水洗浄便座
☆洗髪洗面化粧台
☆光ファイバー
☆オートロック完備
☆防犯カメラ完備
☆宅配ボックス完備
☆モニター付インターホン完備
☆バルコニー有り
☆トランクルーム有り
☆駐輪場有り
☆駐車場空有り
☆専用ゴミ置き場有り
当社では只今キャンペーン中につき『Mesig Green』の賃貸仲介手数料が、今ならなんと【無料】でご紹介可能となっております。
札幌市内のお部屋、基本賃貸仲介手数料【無料】でご紹介可能となっております。
当社担当者がお客様のご要望に沿ったお部屋をご紹介いたします。
内覧希望・詳細等はお気軽にお問い合わせください。
TEL:011-222-4600 |
| リフォーム履歴 |
- |
| リノベーション履歴 |
- |
| 備考 |
管理形態/管理員の勤務形態:-/-
【キッチン】 給湯器(都市ガス)・IHクッキングヒーター(2口)・システムキッチン
【水廻り】 風呂・トイレ(水洗)・洗面台(独立)・シャワートイレ・追い焚き・洗髪洗面化粧台・バス・トイレ別・洗濯機置場(室内)
【冷暖房】 エアコン(冷暖房)・暖房(都市ガス)
【収納】 シューズボックス
【放送・通信】 BS・光ファイバー・ケーブルTV・インターネット対応(回線工事不要・契約不要)
【セキュリティ】 オートロック・宅配BOX・防犯カメラ・インターホン(カメラ付き)
【その他】 専用ごみ置場・エレベーター(1基)・自転車置場・電気・ガス(都市ガス)・水道・排水・バルコニー/ベランダ・複層ガラス・ペアガラス・24時間換気システム・室内物干
|
| エネルギー消費性能 |
- |
| 断熱性能 |
- |
| 目安光熱費 |
- |
| バス・トイレ |
バス・トイレ別、追焚機能、シャワー付洗面化粧台、洗面所独立、洗面所、洗面台、シャワー、温水洗浄便座、トイレ |
| キッチン |
システムキッチン、IHクッキングヒーター、2口コンロ、グリル |
| セキュリティー |
モニター付オートロック、オートロック、モニター付インターホン、防犯カメラ、火災警報器(報知機) |
| 収納 |
全居室収納、収納スペース、トランクルーム、クローゼット、シューズボックス |
| 設備・サービス |
室内洗濯機置場、洗濯機置場、都市ガス給湯、給湯、全居室フローリング、フローリング、室内物干し、都市ガス、エアコン、FF暖房、都市ガス暖房、暖房、冷房、ボイラー、複層ガラス |
| TV・通信 |
インターネット対応、光ファイバー、ケーブルTV、CS、BS端子 |
| その他 |
宅配BOX、バルコニー、駐輪場、エレベーター |
| 契約期間 |
2年 |
現況 |
居住中 |
| 条件等 |
- |
入居可能時期 |
相談 |
| 仲介手数料 |
不要 |
|
|
| 更新料 |
- |
物件番号 |
6989911752 |
| 情報公開日 |
2026年3月13日 |
次回更新予定日 |
2026年3月27日 |
| ケータイ用バーコード |
- スマートフォンでこの物件を見る
- スマートフォンからもこの物件をご覧になれます。
|
※「-」と表示されている項目については、情報提供会社にご確認ください。
| 周辺施設 |
まいばすけっと北5条西10丁目店 |
| 距離 |
544m |
| 周辺施設 |
セブンイレブン札幌北5条西6店 |
| 距離 |
258m |
| 周辺施設 |
国家公務員共済組合連合会斗南病院 |
| 距離 |
505m |
ここから簡単にお問い合わせをすることができます。
(SSLでの暗号化での送信を希望されるお客さまは
こちら
よりお問い合わせください)
お問い合わせを行う前に
「個人情報の取り扱いについて」を必ずお読みください。
「個人情報の取り扱いについて」に同意いただいた場合は「上記にご同意の上 確認画面へ進む」のボタンをクリックしてください。
個人情報の取り扱いについて
皆さまが送付された個人情報はアットホーム(株)のサーバを経由し、お問い合わせ先の不動産会社にメールまたはFAXにて転送されるためアットホーム(株)にも保管されます。アットホーム(株)で保管された個人情報の取り扱いについては、【こちら】をご覧ください。
また、本画面でご記入いただいた個人情報は、お問い合わせ先の不動産会社でも保管します。 お問い合わせ先の不動産会社が保管する個人情報の取り扱いについては、不動産会社に直接お問い合わせください。
北海道知事免許 石狩(2)第8879号 |
|---|
- 交通:
- 札幌市東西線/西11丁目駅 徒歩8分
- 北海道札幌市中央区南四条西9丁目1006番地8 パワービル南4条 6F
- TEL:
- 011-222-4600
- FAX:
- 011-222-4601
- 所属団体:
- (公社)全日本不動産協会会員(一社)北海道不動産公正取引協議会加盟
取引態様:仲介  - 10005680
|
- スマートフォンで
この不動産会社を見る

|
- 提携サイト等より掲載されている物件情報につきましては、不動産会社詳細情報にリンクされていないものがあります。
- 物件に関するお問合せは、物件詳細ページの「情報提供会社」に表示されている不動産会社へ直接お願いいたします。
- 間取図は、現況を優先させていただきます。
- 映像は物件の一部を撮影したものです。物件の契約にあたっての最終判断はご自身の判断に基づいて行ってください。
- 仲介手数料について

アットホームは物件情報の適正化に努めております。
内容に誤りがある場合にはこちらへご連絡ください。