不動産 賃貸 マンション等の住宅情報:埼玉住まい情報


埼玉県川口市芝中田1丁目(蕨駅)の賃貸:物件詳細

  • 物件詳細
  • 情報の見方
  • 印刷用画面
交通
所在地
駅徒歩 賃料
管理費等
敷金/保証金
礼金
間取り
面積
物件種目
築年月

JR京浜東北線/ 新着

埼玉県川口市芝中田1丁目

9分

8.4万円

10,000円

なし / なし

なし

1K

23.27m²

賃貸マンション

2025年2月(築1年2ヶ月)

おすすめPOINTペット相談、分譲タイプ、常時ゴミ出し可能、最上階、南向き、二人入居可、24時間換気システム

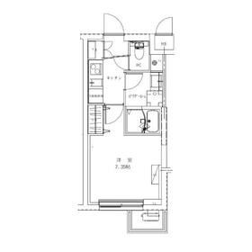
間取図

間取図

外観

外観

その他の画像
  • 室内
  • キッチン
  • 洗面
  • バス/シャワー
  • トイレ
  • 収納
  • 室内
  • 共有部分
    • とりあえず保存
    • お問い合わせ
    交通

    JR京浜東北線 蕨駅 徒歩9分

    その他の交通

    JR京浜東北線 西川口駅 徒歩25分

    JR埼京線 戸田駅 徒歩40分

    所在地 埼玉県川口市芝中田1丁目
    物件種目 賃貸マンション
    賃料 8.4万円 管理費等 10,000円
    敷金 / 保証金 なし / なし 礼金 なし
    敷引 保証金償却
    その他一時金 契約事務手数料:11,000円、退去時ハウスクリーニング:38,500円 保険等
    維持費等
    間取り 1K(洋室7.35) 専有面積 23.27m²
    築年月 2025年2月(築1年2ヶ月) 階建 / 階 4階建 / 4階
    建物構造 RC 総戸数
    主要採光面 駐車場
    バイク置き場 駐輪場
    建物名・部屋番号 ジェノヴィア蕨 ペット 小型犬可・ 大型犬可・ 猫可
    リフォーム履歴
    リノベーション履歴
    備考
    賃貸保証等:加入要(初回契約時:50%、月額:2,700円、※月額保証に保険、駆けつけ費用含む ※外国籍の場合、初回保証料100% 年毎10,800円)
    管理形態/管理員の勤務形態:-/-
    ・1年未満の解約は短期解約違約金有⇒賃料、管理費総額1ヶ月分 ・解約予告2ヶ月前 ・鍵交換希望の場合は27,500円税込~ ・水商売の方 保証会社+保証人+契約時ルームクリーニング代必須 ・ペット飼育の場合、初回保証料100%(外国籍120%)で原則敷金積増無し。大 型犬、多頭飼の場合は敷金積増の可能性有 ・大手法人でペット飼育の場合は敷金1ヶ月積増/解約時償却(償却に原状回復費用費用含みません) ・外国籍学生、ワーホリでの申込の場合、契約時に敷金1ヶ月増額+ルームクリーニング代必須
    ・1年未満の解約は短期解約違約金有⇒賃料、管理費総額1ヶ月分 ・解約予告2ヶ月前 ・鍵交換希望の場合は27,500円税込~ ・水商売の方 保証会社+保証人+契約時ルームクリーニング代必須 ・ペット飼育の場合、初回保証料100%(外国籍120%)で原則敷金積増無し。大 型犬、多頭飼の場合は敷金積増の可能性有 ・大手法人でペット飼育の場合は敷金1ヶ月積増/解約時償却(償却に原状回復費用費用含みません) ・外国籍学生、ワーホリでの申込の場合、契約時に敷金1ヶ月増額+ルームクリーニング代必須
    エネルギー消費性能
    断熱性能
    目安光熱費
    バス・トイレ バス・トイレ別、浴室乾燥機、洗面所独立、洗面所、温水洗浄便座、トイレ
    キッチン システムキッチン、IHクッキングヒーター、2口コンロ
    セキュリティー モニター付オートロック、オートロック、モニター付インターホン、ダブルロックドア、防犯カメラ
    収納 全居室収納、収納スペース、クローゼット、シューズボックス
    設備・サービス 室内洗濯機置場、洗濯機置場、フローリング、都市ガス、エアコン
    TV・通信 インターネット使用料無料、CS、BS端子
    その他 宅配BOX、バルコニー、駐輪場、エレベーター
    契約期間 2年 現況 居住中
    条件等 入居可能時期 相談
    更新料 新賃料 1ヶ月 物件番号 6989920662
    情報公開日 2026年3月14日 次回更新予定日 2026年3月28日
    ケータイ用バーコード

    QRコード

    スマートフォンでこの物件を見る
    スマートフォンからもこの物件をご覧になれます。
    ※「-」と表示されている項目については、情報提供会社にご確認ください。

    クイックお問い合わせ

    ここから簡単にお問い合わせをすることができます。
    (SSLでの暗号化での送信を希望されるお客さまは こちら よりお問い合わせください)

    お問い合わせ内容(必須)
    お名前(必須) 姓  名 
    メールアドレス(必須)
    ※携帯電話のメールアドレスをご入力される方はこちらをご確認ください
    電話番号(必須)
    - -

    ※入力いただいた電話番号へSMSまたは音声でパスワードをご連絡します。

    携帯電話の番号をご入力の方へ

    携帯電話の番号をご入力の方へ
    確認画面にて送信ボタンをクリックするとSMSが携帯電話に届きます。
    そのSMSに記載のパスワード(認証番号)を入力し、お問い合わせを完了してください。
    尚、SMSの送信者番号は 0005 202 760 となります。
    これはアットホームの固定番号です。

    備考欄 希望条件、物件案内希望日、質問などがございましたらご記入ください。
    お問い合わせを行う前に「個人情報の取り扱いについて」を必ずお読みください。
    「個人情報の取り扱いについて」に同意いただいた場合は「上記にご同意の上 確認画面へ進む」のボタンをクリックしてください。

    個人情報の取り扱いについて

    皆さまが送付された個人情報はアットホーム(株)のサーバを経由し、お問い合わせ先の不動産会社にメールまたはFAXにて転送されるためアットホーム(株)にも保管されます。アットホーム(株)で保管された個人情報の取り扱いについては、【こちら】をご覧ください。
    また、本画面でご記入いただいた個人情報は、お問い合わせ先の不動産会社でも保管します。 お問い合わせ先の不動産会社が保管する個人情報の取り扱いについては、不動産会社に直接お問い合わせください。

    情報提供会社

    情報提供会社

    (株)サニーハウス

    埼玉県知事免許(5)第20203号

    交通:
    JR京浜東北線/西川口駅 徒歩5分
    埼玉県川口市西青木1丁目26-11 
    TEL:
    048-258-4548
    FAX:
    048-258-4528
    所属団体:
    (公社)埼玉県宅地建物取引業協会会員
    (公社)首都圏不動産公正取引協議会加盟

    取引態様:仲介

    • 会社情報
    • 00111659
    スマートフォンで
    この不動産会社を見る
    QRコード
    • とりあえず保存
    • お問い合わせ
    • 提携サイト等より掲載されている物件情報につきましては、不動産会社詳細情報にリンクされていないものがあります。
    • 物件に関するお問合せは、物件詳細ページの「情報提供会社」に表示されている不動産会社へ直接お願いいたします。
    • 間取図は、現況を優先させていただきます。
    • 映像は物件の一部を撮影したものです。物件の契約にあたっての最終判断はご自身の判断に基づいて行ってください。
    • 仲介手数料について仲介手数料

    アットホームは物件情報の適正化に努めております。 内容に誤りがある場合にはこちらへご連絡ください。

    【埼玉住まい情報】では、日本全国の物件から賃貸マンションや賃貸アパート・賃貸一戸建て等の賃貸住宅情報、新築マンション・分譲マンションや中古マンション等の売買マンション情報、新築一戸建てや中古一戸建てなどの戸建住宅、 土地など、総合的な不動産住宅情報検索サービスを提供致します。
    【埼玉住まい情報】から、選りすぐりの不動産物件を探してみましょう。

    【免責事項】
    このコーナーの運営はアットホーム株式会社(https://www.athome.co.jp/)が行っています。
    このコーナーに掲載している物件情報は、「アットホーム不動産情報ネットワーク」に加盟する不動産会社等(情報提供元)から提供されています。信頼性の高い情報提供が行えるよう、最大限の努力をしておりますが、その内容を保証するものではありません。 利用者のみなさまと各情報提供元との取引に起因する損害および情報が掲載されたことに起因する損害等については、株式会社イーシティ埼玉、およびアットホームは一切責任を負いません。
    各物件情報の内容や画像等はすべて現況を優先させていただきます。
    お取引等(お取引の準備、資金調達等を含みます)の際には、内容や契約条件等について、各情報提供元より十分な説明を受け、ご自身でご確認の上、判断してください。
    このコーナーへの物件情報のご掲載、その他不動産業務ソリューション等についての不動産会社様のお問合せはこちらからお願いいたします。

    物件画像: