不動産 賃貸 マンション等の住宅情報:埼玉住まい情報


埼玉県川越市田町(川越市駅)の賃貸:物件詳細

  • 物件詳細
  • 情報の見方
  • 印刷用画面
交通
所在地
駅徒歩 賃料
管理費等
敷金/保証金
礼金
間取り
面積
物件種目
築年月

東武東上線/川越市

埼玉県川越市田町

2分

17.5万円

5,000円

1ヶ月 / なし

1ヶ月

3SLDK

85.39m²

賃貸マンション

2008年10月(築17年6ヶ月)

おすすめPOINT分譲タイプ、常時ゴミ出し可能、南向き、外観タイル張り、前面棟無、隣接建物距離2m以上

おすすめコメント

広々とした延床面積85.39㎡の居室空間、更に視界が開ける前面に棟が無い住居なので、前の家からの視線などの圧迫感がありません。

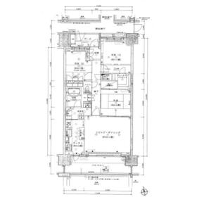
間取図

間取図

<
その他の画像
  • リビング
  • キッチン
  • 洗面
  • トイレ
  • バス/シャワー
  • 洗面
  • 収納
  • 室内
  • 収納
  • 室内
  • バルコニー
  • キッチン
  • 玄関
  • 玄関
>
    • とりあえず保存
    • お問い合わせ
    交通

    東武東上線 川越市駅 徒歩2分

    その他の交通

    西武新宿線 本川越駅 徒歩6分

    東武東上線 川越駅 徒歩16分

    所在地 埼玉県川越市田町
    物件種目 賃貸マンション
    賃料 17.5万円 管理費等 5,000円
    敷金 / 保証金 1ヶ月 / なし 礼金 1ヶ月
    敷引 保証金償却
    その他一時金 24時間サポート:16,500円 保険等
    維持費等 賃貸保証料:800円/月、口座振替手数料:440円/月
    間取り 3SLDK(和 6 洋 7.7・5.7 LDK 17.6 S 0.5) 専有面積 85.39m²
    築年月 2008年10月(築17年6ヶ月) 階建 / 階 15階建 / 9階
    建物構造 SRC 総戸数
    主要採光面 駐車場 有 8,000円/月
    バイク置き場 駐輪場
    建物名・部屋番号 ヴィスタガーデン川越 ペット
    アピールポイント 南向の住居、更にお手入れ楽ちんなシステムキッチンはトータルで設計されているのでバランスの良さが魅力です。またアクセスのいい川越市駅徒歩2分立地の物件で、その上受け取りに心配なしの宅配BOX付だから、再配達のひと手間を省けます。ちなみに早起き苦手な方にはおすすめの常時ゴミ出し可の住戸です。家族の安心拠点になる3SLDK。是非見学にお越しください。
    リフォーム履歴
    リノベーション履歴
    備考
    賃貸保証等:加入要(賃料総額の60% 法人契約相談可)
    管理形態/管理員の勤務形態:-/-
    バルコニー:14.2m²
    更新事務手数料 新賃料の0.5ヶ月分+消費税
    エネルギー消費性能
    断熱性能
    目安光熱費
    バス・トイレ バス・トイレ別、浴室暖房、浴室乾燥機、オートバス、追焚機能、洗面所独立、洗面所、洗面台、シャワー、温水洗浄便座、トイレ
    キッチン システムキッチン、食器洗浄乾燥機、浄水器、ディスポーザー、3口以上コンロ、ガスコンロ付
    セキュリティー モニター付オートロック、オートロック、モニター付インターホン、防犯カメラ、火災警報器(報知機)
    収納 全居室収納、ウォークインクローゼット、収納スペース、トランクルーム、クローゼット、シューズボックス
    設備・サービス エアコン2台以上、室内洗濯機置場、都市ガス給湯、給湯、全居室フローリング、フローリング、都市ガス、エアコン、照明器具
    TV・通信
    その他 宅配BOX、エレベーター2基以上、バルコニー、駐輪場、エレベーター
    契約期間 2年 現況 空家
    条件等 入居可能時期 即時
    更新料 新賃料 1ヶ月 物件番号 6989989965
    情報公開日 2026年3月19日 次回更新予定日 2026年4月2日
    ケータイ用バーコード

    QRコード

    スマートフォンでこの物件を見る
    スマートフォンからもこの物件をご覧になれます。
    ※「-」と表示されている項目については、情報提供会社にご確認ください。

    この物件の周辺情報

    周辺施設 ベルク川越東田町店
    距離 591m
    周辺施設 ローソン川越市駅前店
    距離 155m
    周辺施設 ファミリーマート川越田町店
    距離 158m
    周辺施設 セブンイレブン川越六軒町店
    距離 469m
    周辺施設 マツモトキヨシ東武川越市駅店
    距離 224m
    周辺施設 川越市立富士見中学校
    距離 354m
    周辺施設 川越市立泉小学校
    距離 1305m
    周辺施設 川越六軒町郵便局
    距離 230m

    クイックお問い合わせ

    ここから簡単にお問い合わせをすることができます。
    (SSLでの暗号化での送信を希望されるお客さまは こちら よりお問い合わせください)

    お問い合わせ内容(必須)
    お名前(必須) 姓  名 
    メールアドレス(必須)
    ※携帯電話のメールアドレスをご入力される方はこちらをご確認ください
    電話番号(必須)
    - -

    ※入力いただいた電話番号へSMSまたは音声でパスワードをご連絡します。

    携帯電話の番号をご入力の方へ

    携帯電話の番号をご入力の方へ
    確認画面にて送信ボタンをクリックするとSMSが携帯電話に届きます。
    そのSMSに記載のパスワード(認証番号)を入力し、お問い合わせを完了してください。
    尚、SMSの送信者番号は 0005 202 760 となります。
    これはアットホームの固定番号です。

    備考欄 希望条件、物件案内希望日、質問などがございましたらご記入ください。
    お問い合わせを行う前に「個人情報の取り扱いについて」を必ずお読みください。
    「個人情報の取り扱いについて」に同意いただいた場合は「上記にご同意の上 確認画面へ進む」のボタンをクリックしてください。

    個人情報の取り扱いについて

    皆さまが送付された個人情報はアットホーム(株)のサーバを経由し、お問い合わせ先の不動産会社にメールまたはFAXにて転送されるためアットホーム(株)にも保管されます。アットホーム(株)で保管された個人情報の取り扱いについては、【こちら】をご覧ください。
    また、本画面でご記入いただいた個人情報は、お問い合わせ先の不動産会社でも保管します。 お問い合わせ先の不動産会社が保管する個人情報の取り扱いについては、不動産会社に直接お問い合わせください。

    情報提供会社

    情報提供会社

    シンカエン不動産 (株)新香園

    埼玉県知事免許(13)第7037号

    交通:
    東武東上線/川越駅 徒歩2分
    埼玉県川越市脇田本町15-17 シンカエンビル1F
    TEL:
    049-243-9492
    FAX:
    049-244-6582
    所属団体:
    (公社)埼玉県宅地建物取引業協会会員
    (公社)首都圏不動産公正取引協議会加盟

    取引態様:仲介

    • 会社情報
    • 00015359
    スマートフォンで
    この不動産会社を見る
    QRコード
    • とりあえず保存
    • お問い合わせ
    • 提携サイト等より掲載されている物件情報につきましては、不動産会社詳細情報にリンクされていないものがあります。
    • 物件に関するお問合せは、物件詳細ページの「情報提供会社」に表示されている不動産会社へ直接お願いいたします。
    • 間取図は、現況を優先させていただきます。
    • 映像は物件の一部を撮影したものです。物件の契約にあたっての最終判断はご自身の判断に基づいて行ってください。
    • 仲介手数料について仲介手数料

    アットホームは物件情報の適正化に努めております。 内容に誤りがある場合にはこちらへご連絡ください。

    【埼玉住まい情報】では、日本全国の物件から賃貸マンションや賃貸アパート・賃貸一戸建て等の賃貸住宅情報、新築マンション・分譲マンションや中古マンション等の売買マンション情報、新築一戸建てや中古一戸建てなどの戸建住宅、 土地など、総合的な不動産住宅情報検索サービスを提供致します。
    【埼玉住まい情報】から、選りすぐりの不動産物件を探してみましょう。

    【免責事項】
    このコーナーの運営はアットホーム株式会社(https://www.athome.co.jp/)が行っています。
    このコーナーに掲載している物件情報は、「アットホーム不動産情報ネットワーク」に加盟する不動産会社等(情報提供元)から提供されています。信頼性の高い情報提供が行えるよう、最大限の努力をしておりますが、その内容を保証するものではありません。 利用者のみなさまと各情報提供元との取引に起因する損害および情報が掲載されたことに起因する損害等については、株式会社イーシティ埼玉、およびアットホームは一切責任を負いません。
    各物件情報の内容や画像等はすべて現況を優先させていただきます。
    お取引等(お取引の準備、資金調達等を含みます)の際には、内容や契約条件等について、各情報提供元より十分な説明を受け、ご自身でご確認の上、判断してください。
    このコーナーへの物件情報のご掲載、その他不動産業務ソリューション等についての不動産会社様のお問合せはこちらからお願いいたします。

    物件画像: