大阪府東大阪市花園東町3丁目(東花園駅)の賃貸:物件詳細
交通 所在地 |
駅徒歩 |
賃料 管理費等 |
敷金/保証金 礼金 |
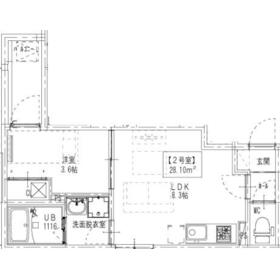
間取り 面積 |
物件種目 築年月 |
|
近鉄奈良線/東花園
大阪府東大阪市花園東町3丁目
|
12分
|
5.8万円
4,000円
|
なし / なし
なし
|
1LDK
28.10m²
|
賃貸アパート
2026年2月(築1年未満)
|
角部屋、二人入居可
|
|
間取図
|
外観
|
<
その他の画像
>
|
| 交通 | 近鉄奈良線 東花園駅 徒歩12分 |
|---|
| その他の交通 | 近鉄奈良線 河内花園駅 徒歩13分 近鉄奈良線 若江岩田駅 徒歩24分 |
| 所在地 |
大阪府東大阪市花園東町3丁目
|
| 物件種目 |
賃貸アパート |
| 賃料 |
5.8万円 |
管理費等 |
4,000円 |
| 敷金 / 保証金 |
なし / なし |
礼金 |
なし |
| 敷引 |
- |
保証金償却 |
- |
| その他一時金 |
- |
保険等 |
要 2年 17,000円 火災 |
| 維持費等 |
- |
| 間取り |
1LDK(洋 3.6 LDK 8.3) |
専有面積 |
28.10m² |
| 築年月 |
2026年2月(築1年未満)
|
階建 / 階 |
3階建 / 1階 |
| 建物構造 |
木造 |
総戸数 |
- |
| 主要採光面 |
|
駐車場 |
- |
| バイク置き場 |
- |
駐輪場 |
- |
| 建物名・部屋番号 |
|
ペット |
-
|
| アピールポイント |
探されていたのはこういう耳寄りなお話では?礼金敷金(保証金)0円。初々しさが残る築1年以内の建物、更に進化を続けるIHクッキングヒーター付なので、スマートなキッチンの印象を作っています。また受け取りに心配なしの宅配BOX付で、その上転居後のネット接続がスムーズに行えるインターネット使用料無料の物件だから、スマホやPCのヘビーユーザーは特にうってつけです。ちなみに底冷えのない浴室暖房採用です。一人暮らしやカップルにお勧めの1LDK。是非その目でお確かめください。 |
| リフォーム履歴 |
- |
| リノベーション履歴 |
- |
| 備考 |
賃貸保証等:加入要(管理会社指定)
管理形態/管理員の勤務形態:-/-
|
| エネルギー消費性能 |
- |
| 断熱性能 |
- |
| 目安光熱費 |
- |
| バス・トイレ |
バス・トイレ別、浴室暖房、洗面所独立、温水洗浄便座、トイレ |
| キッチン |
IHクッキングヒーター、2口コンロ |
| セキュリティー |
オートロック、モニター付インターホン |
| 収納 |
クローゼット、シューズボックス |
| 設備・サービス |
室内洗濯機置場、全居室フローリング、フローリング、都市ガス、エアコン |
| TV・通信 |
インターネット対応、インターネット使用料無料、光ファイバー |
| その他 |
宅配BOX、バルコニー |
| 契約期間 |
2年 |
現況 |
空家 |
| 条件等 |
- |
入居可能時期 |
即時 |
| 更新料 |
- |
物件番号 |
6990004062 |
| 情報公開日 |
2026年3月20日 |
次回更新予定日 |
2026年4月3日 |
| ケータイ用バーコード |
- スマートフォンでこの物件を見る
- スマートフォンからもこの物件をご覧になれます。
|
※「-」と表示されている項目については、情報提供会社にご確認ください。
| 周辺施設 |
ライフ玉串店 |
| 距離 |
270m |
写真を見る |
| 周辺施設 |
スーパーマーケットKINSHO近商ストア東花園店 |
| 距離 |
791m |
| 周辺施設 |
ローソン東大阪玉串町東店 |
| 距離 |
345m |
| 周辺施設 |
ローソン東大阪花園東町店 |
| 距離 |
549m |
| 周辺施設 |
ココカラファイン東花園店 |
| 距離 |
608m |
| 周辺施設 |
社会医療法人若弘会若草第一病院 |
| 距離 |
1687m |
ここから簡単にお問い合わせをすることができます。
(SSLでの暗号化での送信を希望されるお客さまは
こちら
よりお問い合わせください)
お問い合わせを行う前に
「個人情報の取り扱いについて」を必ずお読みください。
「個人情報の取り扱いについて」に同意いただいた場合は「上記にご同意の上 確認画面へ進む」のボタンをクリックしてください。
個人情報の取り扱いについて
皆さまが送付された個人情報はアットホーム(株)のサーバを経由し、お問い合わせ先の不動産会社にメールまたはFAXにて転送されるためアットホーム(株)にも保管されます。アットホーム(株)で保管された個人情報の取り扱いについては、【こちら】をご覧ください。
また、本画面でご記入いただいた個人情報は、お問い合わせ先の不動産会社でも保管します。 お問い合わせ先の不動産会社が保管する個人情報の取り扱いについては、不動産会社に直接お問い合わせください。
大阪府知事免許(1)第65798号 |
|---|
- 交通:
- 近鉄けいはんな線/荒本駅 徒歩2分
- 大阪府東大阪市荒本新町2-26 中野ビル201
- TEL:
- 06-4309-7181
- 所属団体:
- (一社)大阪府宅地建物取引業協会会員(公社)近畿地区不動産公正取引協議会加盟
取引態様:仲介  - 50111745
|
- スマートフォンで
この不動産会社を見る

|
- 提携サイト等より掲載されている物件情報につきましては、不動産会社詳細情報にリンクされていないものがあります。
- 物件に関するお問合せは、物件詳細ページの「情報提供会社」に表示されている不動産会社へ直接お願いいたします。
- 間取図は、現況を優先させていただきます。
- 映像は物件の一部を撮影したものです。物件の契約にあたっての最終判断はご自身の判断に基づいて行ってください。
- 仲介手数料について

アットホームは物件情報の適正化に努めております。
内容に誤りがある場合にはこちらへご連絡ください。