東京都江戸川区中葛西5丁目(葛西駅)の賃貸:物件詳細
交通 所在地 |
駅徒歩 |
賃料 管理費等 |
敷金/保証金 礼金 |
間取り 面積 |
物件種目 築年月 |
|
東京メトロ東西線/葛西
東京都江戸川区中葛西5丁目
|
4分
|
35万円
30,000円
|
35万円 / なし
なし
|
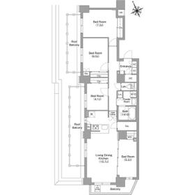
4LDK
91.97m²
|
賃貸マンション
2026年1月
|
ペット相談、常時ゴミ出し可能、24時間換気システム
|
|
間取図
|
外観
|
その他の画像
|
| 交通 | 東京メトロ東西線 葛西駅 徒歩4分 |
| 所在地 |
東京都江戸川区中葛西5丁目
|
| 物件種目 |
賃貸マンション |
| 賃料 |
35万円 |
管理費等 |
30,000円 |
| 敷金 / 保証金 |
35万円 / なし |
礼金 |
なし |
| 敷引 |
- |
保証金償却 |
- |
| その他一時金 |
清掃費:94,490円、エアコン清掃費:55,000円 |
保険等 |
要 2年 16,550円 |
| 維持費等 |
- |
| 間取り |
4LDK(LDK15.7 洋7.3 洋6 洋4.1 洋5.2) |
専有面積 |
91.97m² |
| 築年月 |
2026年1月
|
階建 / 階 |
7階建 / 6階 |
| 建物構造 |
RC |
総戸数 |
27戸 |
| 主要採光面 |
南西 |
駐車場 |
無 |
| バイク置き場 |
- |
駐輪場 |
- |
| 建物名・部屋番号 |
コンフォリア中葛西 603 |
ペット |
小型犬可・ 猫可 |
| リフォーム履歴 |
- |
| リノベーション履歴 |
- |
| 備考 |
賃貸保証等:加入要(エポスカード(RP) 保証料:賃料等の50%(最低2万)、月額保証料:賃料等の1%(更新料無))
管理形態/管理員の勤務形態:-/-
★新築★礼金0ヶ月♪
◆指定引越会社有◆指定保証会社利用必須※一部法人契約除く・敷金積増1ヶ月◆礼金0ヶ月(1年以内解約時賃料1ヶ月分違約金有)◆退居時、エアコン清掃費・室内清掃費かかります◆禁止事項(楽器演奏、SOHO利用不可)◆ペット飼育時敷金1ヶ月積増・退去時に別途消臭・消毒費16,500円(税込)・使用細則遵守・小型犬1匹もしくは猫2匹まで◆駐輪場・駐車場・バイク置場の空き確認は管理組合へお問い合わせください。
|
| エネルギー消費性能 |
- |
| 断熱性能 |
- |
| 目安光熱費 |
- |
| バス・トイレ |
バス・トイレ別、浴室乾燥機、追焚機能、洗面所独立、温水洗浄便座 |
| キッチン |
システムキッチン、食器洗浄乾燥機、グリル |
| セキュリティー |
オートロック、モニター付インターホン、ディンプルキー、ダブルロックドア、防犯カメラ |
| 収納 |
シューズボックス |
| 設備・サービス |
EV車充電設備、エアコン2台以上、床暖房、室内洗濯機置場、照明器具 |
| TV・通信 |
インターネット使用料無料、CS、BS端子 |
| その他 |
宅配BOX、ルーフバルコニー、エレベーター |
| 契約期間 |
2年 |
現況 |
完成済 |
| 条件等 |
- |
入居可能時期 |
即時 |
| 更新料 |
新賃料 1ヶ月 |
物件番号 |
6990229063 |
| 情報公開日 |
2026年4月8日 |
次回更新予定日 |
2026年4月22日 |
| ケータイ用バーコード |
- スマートフォンでこの物件を見る
- スマートフォンからもこの物件をご覧になれます。
|
※「-」と表示されている項目については、情報提供会社にご確認ください。
ここから簡単にお問い合わせをすることができます。
(SSLでの暗号化での送信を希望されるお客さまは
こちら
よりお問い合わせください)
お問い合わせを行う前に
「個人情報の取り扱いについて」を必ずお読みください。
「個人情報の取り扱いについて」に同意いただいた場合は「上記にご同意の上 確認画面へ進む」のボタンをクリックしてください。
個人情報の取り扱いについて
皆さまが送付された個人情報はアットホーム(株)のサーバを経由し、お問い合わせ先の不動産会社にメールまたはFAXにて転送されるためアットホーム(株)にも保管されます。アットホーム(株)で保管された個人情報の取り扱いについては、【こちら】をご覧ください。
また、本画面でご記入いただいた個人情報は、お問い合わせ先の不動産会社でも保管します。 お問い合わせ先の不動産会社が保管する個人情報の取り扱いについては、不動産会社に直接お問い合わせください。
東京都知事免許(1)第113460号 |
|---|
- 交通:
- JR京浜東北線/日暮里駅 徒歩1分
- 東京都荒川区東日暮里5丁目52番5-901号
- TEL:
- 03-6820-6497
- FAX:
- 03-6820-6498
- 所属団体:
- (公社)東京都宅地建物取引業協会会員(公社)首都圏不動産公正取引協議会加盟
取引態様:仲介  - 00283935
|
- スマートフォンで
この不動産会社を見る

|
- 提携サイト等より掲載されている物件情報につきましては、不動産会社詳細情報にリンクされていないものがあります。
- 物件に関するお問合せは、物件詳細ページの「情報提供会社」に表示されている不動産会社へ直接お願いいたします。
- 間取図は、現況を優先させていただきます。
- 映像は物件の一部を撮影したものです。物件の契約にあたっての最終判断はご自身の判断に基づいて行ってください。
- 仲介手数料について

アットホームは物件情報の適正化に努めております。
内容に誤りがある場合にはこちらへご連絡ください。