東京都新宿区下落合1丁目(高田馬場駅)の中古マンション・新築マンション・分譲マンション:物件詳細
交通 所在地 |
駅徒歩 |
価格 |
構造 階建/階 |
間取り 専有面積 |
物件種目 築年月 |
|
西武新宿線/高田馬場
東京都新宿区下落合1丁目
|
3分
|
5,780万円
|
SRC
14階建 / 12階
|
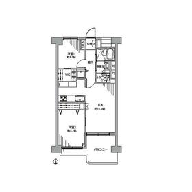
2LDK
50.49m²
|
中古マンション
1974年3月(築52年2ヶ月)
|
|
南向き、管理人日勤
|
|
間取図
間取
|
|
その他の画像
|
| 交通 | 西武新宿線 高田馬場駅 徒歩3分 |
|---|
| その他の交通 | JR山手線 高田馬場駅 徒歩3分 東京メトロ東西線 高田馬場駅 徒歩3分 |
| 所在地 |
東京都新宿区下落合1丁目
|
| 物件種目 |
中古マンション |
| 価格 |
5,780万円 |
平米単価 |
114.48万円 |
| 管理費等 |
8,020円 |
修繕積立金 |
17,040円 |
| 借地期間・地代(月額) |
- |
権利金 |
- |
| 敷金または保証金 |
- / - |
維持費等 |
- |
| その他一時金 |
- |
|
|
| 間取り |
2LDK |
専有面積 |
50.49m²(壁芯) |
| 階建 / 階 |
14階建 / 12階 |
バルコニー |
6.56m² |
| 築年月 |
1974年3月(築52年2ヶ月)
|
建物構造 |
SRC |
| 駐車場 |
空無 |
総戸数 |
185戸 |
| 駐輪場 |
- |
バイク置き場 |
- |
| ペット |
-
|
|
|
| 土地権利 |
所有権 |
敷地面積 |
- |
| 管理形態/管理員の勤務形態 |
全部委託/日勤 |
国土法届出 |
- |
| アピールポイント |
3つの安心サポート ■営業車にて安全にご案内。お住まい探しに集中して頂けます ■マイホーム購入の資金計画・購入から老後までの人生設計を実施、暮らしに安心を提案します ■どんなに信用のある建築会社でもご自分の目で確認することは重要ですよね。特殊機材を使用し物件状態を調査致します ご来店特典 ■FP相談キャッシュフローの作成無料でできます ■未公開の物件情報をご紹介 ■弊社仲介にてご契約頂くと1万円から最大10万円のご紹介料をお支払い!詳しくはスタッフ迄 都内有数の1棟ビル大型店舗開店! ■西武新宿線『田無駅』徒歩3分の好立地! それでもちょっとな?という方はご自宅へ『無料送迎サービス』実施しております! ■チャイルドスペース、ベビーベッド、ミルク用浄水サーバー、紙おむつ、アメニティ、大型個室ブース4部屋、各ブースモニター等完備しております! |
| 建物名・部屋番号 |
トキワパレス |
| リフォーム履歴 |
■水回り:2026年4月 キッチン、浴室、トイレ、洗面所 ■内装:2026年4月 床(フローリング等)、壁・天井(クロス・塗装等)、建具(室内ドア等) ※実施年月は最も古い履歴を表示 |
| リノベーション履歴 |
- |
| 瑕疵保証 |
- |
| 瑕疵保険 |
- |
| 評価・証明書 |
- |
| 備考 |
主要採光面:南向き
施工会社:白石建設(株)・(株)トキワ
用途地域:準工業
|
| エネルギー消費性能 |
- |
| 断熱性能 |
- |
| 目安光熱費 |
- |
| バス・トイレ |
- |
| キッチン |
システムキッチン |
| 設備・サービス |
全居室収納、ウォークインクローゼット、収納スペース、クローゼット、全居室フローリング、都市ガス |
| その他 |
宅配BOX、エレベーター |
| 条件等 |
- |
現況 |
空家 |
| 引渡可能時期 |
即時 |
物件番号 |
1003212887 |
| 情報公開日 |
2026年4月28日 |
次回更新予定日 |
2026年5月12日 |
| ケータイ用バーコード |
- スマートフォンでこの物件を見る
- スマートフォンからもこの物件をご覧になれます。
|
※「-」と表示されている項目については、情報提供会社にご確認ください。
| 周辺施設 |
西武新宿線高田馬場駅 |
| 距離 |
240m |
写真を見る |
| 周辺施設 |
新宿区立落合第四小学校 |
| 距離 |
662m |
写真を見る |
| 周辺施設 |
新宿区立落合中学校 |
| 距離 |
730m |
写真を見る |
| 周辺施設 |
戸塚第三幼稚園 |
| 距離 |
650m |
写真を見る |
| 周辺施設 |
高田馬場病院 |
| 距離 |
500m |
写真を見る |
ここから簡単にお問い合わせをすることができます。
(SSLでの暗号化での送信を希望されるお客さまは
こちら
よりお問い合わせください)
お問い合わせを行う前に
「個人情報の取り扱いについて」を必ずお読みください。
「個人情報の取り扱いについて」に同意いただいた場合は「上記にご同意の上 確認画面へ進む」のボタンをクリックしてください。
個人情報の取り扱いについて
皆さまが送付された個人情報はアットホーム(株)のサーバを経由し、お問い合わせ先の不動産会社にメールまたはFAXにて転送されるためアットホーム(株)にも保管されます。アットホーム(株)で保管された個人情報の取り扱いについては、【こちら】をご覧ください。
また、本画面でご記入いただいた個人情報は、お問い合わせ先の不動産会社でも保管します。 お問い合わせ先の不動産会社が保管する個人情報の取り扱いについては、不動産会社に直接お問い合わせください。
東京都知事免許(1)第107558号 |
|---|
- 交通:
- 西武新宿線/田無駅 徒歩3分
- 東京都西東京市田無町5丁目1-1 田無北口ビル
- TEL:
- 042-497-5777
- FAX:
- 042-497-5778
- 所属団体:
- (公社)全日本不動産協会会員(公社)首都圏不動産公正取引協議会加盟
取引態様:媒介  - 00986320
|
- スマートフォンで
この不動産会社を見る

|
- 提携サイト等より掲載されている物件情報につきましては、不動産会社詳細情報にリンクされていないものがあります。
- 物件に関するお問合せは、物件詳細ページの「情報提供会社」に表示されている不動産会社へ直接お願いいたします。
- 間取図は、現況を優先させていただきます。
- 映像は物件の一部を撮影したものです。物件の契約にあたっての最終判断はご自身の判断に基づいて行ってください。
- 仲介手数料について

アットホームは物件情報の適正化に努めております。
内容に誤りがある場合にはこちらへご連絡ください。