大阪府大阪市西区南堀江3丁目(西長堀駅)の中古マンション・新築マンション・分譲マンション:物件詳細
交通 所在地 |
駅徒歩 |
価格 |
構造 階建/階 |
間取り 専有面積 |
物件種目 築年月 |
|
地下鉄長堀鶴見緑地線/西長堀
大阪府大阪市西区南堀江3丁目
|
4分
|
28,050万円
|
RC
46階建 / 46階
|
3LDK
101.48m²
|
中古マンション
オーナーチェンジ
2024年8月(築1年10ヶ月)
|
|
ペット相談、常時ゴミ出し可能、角部屋、最上階、制震構造、2面採光、24時間換気システム、閑静な住宅街、オール電化、設計住宅性能評価書あり、建設住宅性能評価書あり、管理人日勤
|
|
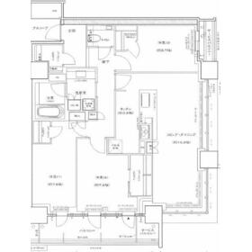
間取図
【間取り】3LDK最上階・南東角住戸!眺望・採光・通風◎
|
外観
【外観】2024年8月新築!地上46階建て、総戸数500戸の超高層タワーマンション!!
|
<
その他の画像
>
|
| 交通 | 地下鉄長堀鶴見緑地線 西長堀駅 徒歩4分 |
|---|
| その他の交通 | 地下鉄千日前線 西長堀駅 徒歩4分 南海汐見橋線 汐見橋駅 徒歩4分 |
| 所在地 |
大阪府大阪市西区南堀江3丁目
|
| 物件種目 |
中古マンション |
| 価格 |
28,050万円 |
平米単価 |
276.41万円 |
| 管理費等 |
24,800円 |
修繕積立金 |
10,200円 |
| 借地期間・地代(月額) |
- |
権利金 |
- |
| 敷金または保証金 |
- / - |
維持費等 |
- |
| その他一時金 |
なし |
|
|
| 間取り |
3LDK(LDK19.6、洋7.6、7.2、6.7) |
専有面積 |
101.48m²(壁芯) |
| 階建 / 階 |
46階建 / 46階 |
バルコニー |
8.21m² |
| 築年月 |
2024年8月(築1年10ヶ月)
|
建物構造 |
RC |
| 駐車場 |
- |
総戸数 |
500戸 |
| 駐輪場 |
有 |
バイク置き場 |
有 |
| ペット |
小型犬可・ 猫可 |
|
|
| 土地権利 |
所有権 |
敷地面積 |
- |
| 管理形態/管理員の勤務形態 |
全部委託/日勤 |
国土法届出 |
- |
| アピールポイント |
◇最上階・南東角住戸につき眺望・採光・通風◎
◇天井高2750mm!最上階のみのスカイスイートフロア☆
☆お部屋POINT――――
〇リビングダイニング
約15.8帖リビングダイニング☆
〇キッチン
ディスポーザー・食洗機付きで家事軽減!
〇浴室
浴室暖房乾燥機付き☆
〇収納
WIC・SIC付きで収納充実◎
☆共用施設――――
1階
〇オーナーズラウンジ
〇コンシェルジュ
〇ペット足洗い場
4階
〇ワーク&スタディルーム
〇ゲストルーム×2
31階
〇パーティーラウンジ
〇スカイラウンジ
☆周辺施設――――
〇関西スーパー 南堀江店 徒歩2分
〇大野記念病院 徒歩8分 |
| 建物名・部屋番号 |
シエリアタワー大阪堀江 46F |
| リフォーム履歴 |
- |
| リノベーション履歴 |
- |
| 瑕疵保証 |
- |
| 瑕疵保険 |
- |
| 評価・証明書 |
- |
| 備考 |
主要採光面:南東向き
施工会社:(株)大林組
用途地域:商業地域
利回り:2.56%
年間予定賃料収入:718.08万円
建築確認番号:R05確更建築GBRC00015
|
| エネルギー消費性能 |
- |
| 断熱性能 |
- |
| 目安光熱費 |
- |
| バス・トイレ |
浴室乾燥機、オートバス、追焚機能、シャワー付洗面化粧台、温水洗浄便座 |
| キッチン |
オープンキッチン、システムキッチン、食器洗浄乾燥機、浄水器、ディスポーザー、IHクッキングヒーター、3口以上コンロ、2口コンロ、グリル |
| 設備・サービス |
モニター付オートロック、ウォークインクローゼット、バイク置き場、収納スペース、室内洗濯機置場、クローゼット、オートロック、モニター付インターホン、洗濯機置場、省エネ給湯器、給湯、全居室フローリング、アルコーブ、エアコン、冷房、駐輪場、人感センサー付照明、ダウンライト、マルチメディアコンセント |
| その他 |
宅配BOX、ペット用施設、エレベーター2基以上、共用ゲストルーム、共用パーティルーム、車寄せスペース、エレベーター |
| 条件等 |
オーナーチェンジ |
現況 |
賃貸中 |
| 引渡可能時期 |
相談 |
物件番号 |
1004718398 |
| 情報公開日 |
2024年12月25日 |
次回更新予定日 |
2026年5月19日 |
| ケータイ用バーコード |
- スマートフォンでこの物件を見る
- スマートフォンからもこの物件をご覧になれます。
|
※「-」と表示されている項目については、情報提供会社にご確認ください。
| 周辺施設 |
ローソン 南堀江四丁目店 |
| 距離 |
171m |
写真を見る |
| 周辺施設 |
ファミリーマート南堀江四丁目店 |
| 距離 |
295m |
写真を見る |
| 周辺施設 |
大阪日吉郵便局 |
| 距離 |
447m |
写真を見る |
ここから簡単にお問い合わせをすることができます。
(SSLでの暗号化での送信を希望されるお客さまは
こちら
よりお問い合わせください)
お問い合わせを行う前に
「個人情報の取り扱いについて」を必ずお読みください。
「個人情報の取り扱いについて」に同意いただいた場合は「上記にご同意の上 確認画面へ進む」のボタンをクリックしてください。
個人情報の取り扱いについて
皆さまが送付された個人情報はアットホーム(株)のサーバを経由し、お問い合わせ先の不動産会社にメールまたはFAXにて転送されるためアットホーム(株)にも保管されます。アットホーム(株)で保管された個人情報の取り扱いについては、【こちら】をご覧ください。
また、本画面でご記入いただいた個人情報は、お問い合わせ先の不動産会社でも保管します。 お問い合わせ先の不動産会社が保管する個人情報の取り扱いについては、不動産会社に直接お問い合わせください。
国土交通大臣免許(1)第10312号 |
|---|
- 交通:
- 地下鉄御堂筋線/本町駅 徒歩3分
- 大阪府大阪市中央区淡路町3丁目6-3 御堂筋MTRビル1階
- TEL:
- 06-6684-9636
- FAX:
- 06-6684-9637
- 所属団体:
- (公社)全日本不動産協会会員(公社)近畿地区不動産公正取引協議会加盟
取引態様:専任媒介  - 50102588
|
- スマートフォンで
この不動産会社を見る

|
- 提携サイト等より掲載されている物件情報につきましては、不動産会社詳細情報にリンクされていないものがあります。
- 物件に関するお問合せは、物件詳細ページの「情報提供会社」に表示されている不動産会社へ直接お願いいたします。
- 間取図は、現況を優先させていただきます。
- 映像は物件の一部を撮影したものです。物件の契約にあたっての最終判断はご自身の判断に基づいて行ってください。
- 仲介手数料について

アットホームは物件情報の適正化に努めております。
内容に誤りがある場合にはこちらへご連絡ください。