福島県郡山市本町1丁目(郡山駅)の中古マンション・新築マンション・分譲マンション:物件詳細
交通 所在地 |
駅徒歩 |
価格 |
構造 階建/階 |
間取り 専有面積 |
物件種目 築年月 |
|
東北新幹線/郡山
福島県郡山市本町1丁目
|
10分
|
1,250万円
|
SRC
地上14階地下1階建 / 9階
|
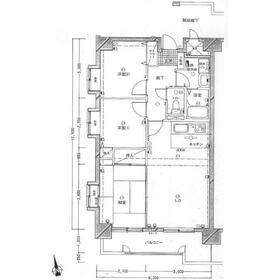
3LDK
59.78m²
|
中古マンション
1996年2月(築29年11ヶ月)
|
|
南向き、管理人日勤
|
|
間取図
|
エントランス
|
<
その他の画像
>
|
| 交通 | 東北新幹線 郡山駅 徒歩10分 |
| 所在地 |
福島県郡山市本町1丁目
|
| 物件種目 |
中古マンション |
| 価格 |
1,250万円 |
平米単価 |
20.92万円 |
| 管理費等 |
8,190円 |
修繕積立金 |
10,160円 |
| 借地期間・地代(月額) |
- |
権利金 |
- |
| 敷金または保証金 |
- / - |
維持費等 |
- |
| その他一時金 |
- |
|
|
| 間取り |
3LDK(LDK,和室,洋室2) |
専有面積 |
59.78m²(壁芯) |
| 階建 / 階 |
地上14階地下1階建 / 9階 |
バルコニー |
- |
| 築年月 |
1996年2月(築29年11ヶ月)
|
建物構造 |
SRC |
| 駐車場 |
空無 |
総戸数 |
78戸 |
| 駐輪場 |
有 |
バイク置き場 |
- |
| ペット |
-
|
|
|
| 土地権利 |
所有権 |
敷地面積 |
- |
| 管理形態/管理員の勤務形態 |
全部委託/日勤 |
国土法届出 |
- |
| アピールポイント |
郡中丸木は、不動産売買部門・建築部門・賃貸部門・リフォームなどがあり、不動産の様々な事に対応できます。まずはお気軽にご相談下さい!! |
| 建物名・部屋番号 |
サンロードステーション郡山 |
| リフォーム履歴 |
- |
| リノベーション履歴 |
- |
| 瑕疵保証 |
- |
| 瑕疵保険 |
- |
| 評価・証明書 |
- |
| 備考 |
主要採光面:南向き
施工会社:株式会社松村組 東北支店
用途地域:工業地域
年間賃料収入:1,008,000円 表面利回り:8.06% 郡山駅徒歩10分・イオンタウン郡山徒歩11分・小学校徒歩10分 と便利な立地・賃貸法人契約にも需要が多い物件です。
|
| エネルギー消費性能 |
- |
| 断熱性能 |
- |
| 目安光熱費 |
- |
| バス・トイレ |
オートバス、追焚機能、シャワー付洗面化粧台、温水洗浄便座 |
| キッチン |
システムキッチン |
| 設備・サービス |
室内洗濯機置場、ディンプルキー、都市ガス、駐輪場、火災警報器(報知機) |
| その他 |
エレベーター |
| 条件等 |
- |
現況 |
所有者居住中 |
| 引渡可能時期 |
相談 |
物件番号 |
1006550497 |
| 仲介手数料 |
売買代金の3%+6万円 |
|
|
| 情報公開日 |
2025年3月17日 |
次回更新予定日 |
2025年12月18日 |
| ケータイ用バーコード |
- スマートフォンでこの物件を見る
- スマートフォンからもこの物件をご覧になれます。
|
※「-」と表示されている項目については、情報提供会社にご確認ください。
| 周辺施設 |
郡山市立郡山第三中学校 |
| 距離 |
1811m |
| 周辺施設 |
イオンタウン郡山 |
| 距離 |
1100m |
写真を見る |
| 周辺施設 |
セブン‐イレブン 郡山本町2丁目店 |
| 距離 |
174m |
| 周辺施設 |
すみこしこどもクリニック |
| 距離 |
331m |
ここから簡単にお問い合わせをすることができます。
(SSLでの暗号化での送信を希望されるお客さまは
こちら
よりお問い合わせください)
お問い合わせを行う前に
「個人情報の取り扱いについて」を必ずお読みください。
「個人情報の取り扱いについて」に同意いただいた場合は「上記にご同意の上 確認画面へ進む」のボタンをクリックしてください。
個人情報の取り扱いについて
皆さまが送付された個人情報はアットホーム(株)のサーバを経由し、お問い合わせ先の不動産会社にメールまたはFAXにて転送されるためアットホーム(株)にも保管されます。アットホーム(株)で保管された個人情報の取り扱いについては、【こちら】をご覧ください。
また、本画面でご記入いただいた個人情報は、お問い合わせ先の不動産会社でも保管します。 お問い合わせ先の不動産会社が保管する個人情報の取り扱いについては、不動産会社に直接お問い合わせください。
福島県知事免許(4)第2774号 |
|---|
- 交通:
- JR東北本線/本宮駅 徒歩3分
- 福島県本宮市本宮字九縄27-3 NTTビル1F
- TEL:
- 0243-33-1746
- FAX:
- 0243-63-2007
- 所属団体:
- 東北地区不動産公正取引協議会加盟
取引態様:媒介  - 20005318
|
- スマートフォンで
この不動産会社を見る

|
- 提携サイト等より掲載されている物件情報につきましては、不動産会社詳細情報にリンクされていないものがあります。
- 物件に関するお問合せは、物件詳細ページの「情報提供会社」に表示されている不動産会社へ直接お願いいたします。
- 間取図は、現況を優先させていただきます。
- 映像は物件の一部を撮影したものです。物件の契約にあたっての最終判断はご自身の判断に基づいて行ってください。
- 仲介手数料について

アットホームは物件情報の適正化に努めております。
内容に誤りがある場合にはこちらへご連絡ください。