東京都渋谷区鉢山町(代官山駅)の中古マンション・新築マンション・分譲マンション:物件詳細
交通 所在地 |
駅徒歩 |
価格 |
構造 階建/階 |
間取り 専有面積 |
物件種目 築年月 |
|
東急東横線/代官山
東京都渋谷区鉢山町
|
10分
|
148,000万円
|
RC
地上6階地下1階建 / 4階
|
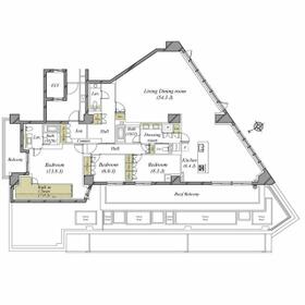
3LDK
214.98m²
|
中古マンション
2024年3月(築1年8ヶ月)
|
|
ペット相談、角部屋、3面採光、管理人日勤
|
|
間取図
|
外観
|
<
その他の画像
>
|
| 交通 | 東急東横線 代官山駅 徒歩10分 |
|---|
| その他の交通 | 京王井の頭線 神泉駅 徒歩11分 東京メトロ日比谷線 中目黒駅 徒歩13分 |
| 所在地 |
東京都渋谷区鉢山町
|
| 物件種目 |
中古マンション |
| 価格 |
148,000万円 |
平米単価 |
688.44万円 |
| 管理費等 |
162,500円 |
修繕積立金 |
60,200円 |
| 借地期間・地代(月額) |
- |
権利金 |
- |
| 敷金または保証金 |
- / - |
維持費等 |
インターネット利用料:2,805円/月、付設駐車場使用料:60,000円/月、町内会費(任意):200円/月 |
| その他一時金 |
なし |
|
|
| 間取り |
3LDK |
専有面積 |
214.98m²(壁芯) |
| 階建 / 階 |
地上6階地下1階建 / 4階 |
バルコニー |
10.82m² |
| 築年月 |
2024年3月(築1年8ヶ月)
|
建物構造 |
RC |
| 駐車場 |
- |
総戸数 |
14戸 |
| 駐輪場 |
- |
バイク置き場 |
- |
| ペット |
相談 |
|
|
| 土地権利 |
所有権 |
敷地面積 |
- |
| 管理形態/管理員の勤務形態 |
全部委託/日勤 |
国土法届出 |
- |
| アピールポイント |
■ 交通アクセス━━━━━━━━━━━━━━━・・・・・
〇 東急東横線「代官山」駅 徒歩9分
〇 東急東横線・東京メトロ日比谷線「中目黒」駅 徒歩13分
〇 JR山手線「渋谷」駅 徒歩14分
■ おすすめポイント━━━━━━━━━━━━━━━・・・・・
〇 2024年3月 築後未入居
〇 専有面積214.98平米、3LDKの間取り
〇 積水ハウス旧分譲の「グランドメゾン」シリーズ
〇 北西×北東×南の3方向角住戸により陽当り・通風良好
〇 西郷山公園の緑を望むリビングダイニング
〇 1フロア2部屋のみのプライベート性の高いお部屋位置
〇 ハイルーフ機械式駐車場専用使用権付(月額60,000円、規制有)
〇 約60.7帖の広々としたLDK
〇 各居室約6帖以上
〇 29.37平米のルーフバルコニー付
〇 WIC等、豊富な収納スペース
〇 キッチンには食洗機・ディスポーザー・浄水器付き
〇 バス2か所、トイレ3か所有
〇 2ボウル洗面
〇 ペット飼育可能(細則有) |
| 建物名・部屋番号 |
グランドメゾン代官山THE PARK |
| リフォーム履歴 |
- |
| リノベーション履歴 |
- |
| 瑕疵保証 |
- |
| 瑕疵保険 |
- |
| 評価・証明書 |
- |
| 備考 |
主要採光面:北西向き
施工会社:(株)鴻池組
用途地域:2種中高
|
| エネルギー消費性能 |
- |
| 断熱性能 |
- |
| 目安光熱費 |
- |
| バス・トイレ |
浴室乾燥機、トイレ2ヶ所 |
| キッチン |
アイランドキッチン、カウンターキッチン、システムキッチン、食器洗浄乾燥機、浄水器、ディスポーザー、3口以上コンロ |
| 設備・サービス |
全居室収納、ウォークインクローゼット、給湯、都市ガス、ルーフバルコニー、二面バルコニー |
| その他 |
エレベーター |
| 条件等 |
- |
現況 |
空家 |
| 引渡可能時期 |
相談 |
物件番号 |
1014231491 |
| 情報公開日 |
2025年9月4日 |
次回更新予定日 |
2025年11月2日 |
| ケータイ用バーコード |
- スマートフォンでこの物件を見る
- スマートフォンからもこの物件をご覧になれます。
|
※「-」と表示されている項目については、情報提供会社にご確認ください。
| 周辺施設 |
サミットストア代官山鉢山町店 |
| 距離 |
140m |
写真を見る |
| 周辺施設 |
ドン・キホーテ中目黒本店 |
| 距離 |
560m |
| 周辺施設 |
目黒東山一郵便局 |
| 距離 |
640m |
写真を見る |
ここから簡単にお問い合わせをすることができます。
(SSLでの暗号化での送信を希望されるお客さまは
こちら
よりお問い合わせください)
お問い合わせを行う前に
「個人情報の取り扱いについて」を必ずお読みください。
「個人情報の取り扱いについて」に同意いただいた場合は「上記にご同意の上 確認画面へ進む」のボタンをクリックしてください。
個人情報の取り扱いについて
皆さまが送付された個人情報はアットホーム(株)のサーバを経由し、お問い合わせ先の不動産会社にメールまたはFAXにて転送されるためアットホーム(株)にも保管されます。アットホーム(株)で保管された個人情報の取り扱いについては、【こちら】をご覧ください。
また、本画面でご記入いただいた個人情報は、お問い合わせ先の不動産会社でも保管します。 お問い合わせ先の不動産会社が保管する個人情報の取り扱いについては、不動産会社に直接お問い合わせください。
国土交通大臣免許(15)第777号 |
|---|
- 交通:
- JR山手線/渋谷駅 徒歩2分
- 東京都渋谷区桜丘町3-4 渋谷サクラステージ SAKURAサイド 4F
- TEL:
- 0120-923-731
- FAX:
- 03-6332-7811
- 所属団体:
- (一社)不動産流通経営協会会員(公社)首都圏不動産公正取引協議会加盟
取引態様:一般媒介  - 00783824
|
- スマートフォンで
この不動産会社を見る

|
- 提携サイト等より掲載されている物件情報につきましては、不動産会社詳細情報にリンクされていないものがあります。
- 物件に関するお問合せは、物件詳細ページの「情報提供会社」に表示されている不動産会社へ直接お願いいたします。
- 間取図は、現況を優先させていただきます。
- 映像は物件の一部を撮影したものです。物件の契約にあたっての最終判断はご自身の判断に基づいて行ってください。
- 仲介手数料について

アットホームは物件情報の適正化に努めております。
内容に誤りがある場合にはこちらへご連絡ください。