東京都渋谷区宇田川町(渋谷駅)の中古マンション・新築マンション・分譲マンション:物件詳細
交通 所在地 |
駅徒歩 |
価格 |
構造 階建/階 |
間取り 専有面積 |
物件種目 築年月 |
|
東急東横線/渋谷
東京都渋谷区宇田川町
|
8分
|
49,800万円
|
RC
地上39階地下4階建 / 20階
|
2LDK
120.66m²
|
中古マンション
2020年7月(築5年11ヶ月)
|
|
ペット相談、常時ゴミ出し可能、角部屋、24時間セキュリティー、制震構造、バス1坪以上、2面採光、24時間換気システム、管理人日勤
|
|
≪オープンルーム/モデルルーム≫【開催期間】2026年5月9日~8月9日 【時間】10:00~17:00 毎週土日開催 事前に必ず予約してください
|
|
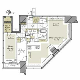
間取図
洋室約6.6帖はLDKからもお出入り可能です
|
眺望
リビングから明治神宮方向をみます。遠くに新宿副都心の高層ビル群を見ます
|
<
その他の画像
>
|
| 交通 | 東急東横線 渋谷駅 徒歩8分 |
|---|
| その他の交通 | JR山手線 原宿駅 徒歩12分 東京メトロ千代田線 明治神宮前駅 徒歩11分 |
| 所在地 |
東京都渋谷区宇田川町
|
| 物件種目 |
中古マンション |
| 価格 |
49,800万円 |
平米単価 |
412.73万円 |
| 管理費等 |
59,610円 |
修繕積立金 |
28,960円 |
| 借地期間・地代(月額) |
2093年9月30日まで |
権利金 |
- |
| 敷金または保証金 |
- / - |
維持費等 |
トランクルーム:5,160円/月、解体積立金:28,720円/月、インターネット等使用料:2,420円/月、バレーパーキング(専用使用権):68,000円/月 |
| その他一時金 |
なし |
|
|
| 間取り |
2LDK |
専有面積 |
120.66m²(壁芯) |
| 階建 / 階 |
地上39階地下4階建 / 20階 |
バルコニー |
5.01m² |
| 築年月 |
2020年7月(築5年11ヶ月)
|
建物構造 |
RC |
| 駐車場 |
有 68,000円/月 |
総戸数 |
503戸 |
| 駐輪場 |
- |
バイク置き場 |
- |
| ペット |
相談 |
|
|
| 土地権利 |
定期借地権(賃借権) |
敷地面積 |
- |
| 管理形態/管理員の勤務形態 |
全部委託/日勤 |
国土法届出 |
- |
| アピールポイント |
■パークコート渋谷ザタワー
○ 令和2年7月築
○ 渋谷の街並み、代々木公園・明治神宮の自然を両方ともに享受できる立地
○ 渋谷区新庁舎、新公会堂との複合再開発
○ 三井不動産レジデンシャル(株)旧分譲
○ 東急建設(株)施工
○ 三井不動産レジデンシャルサービス(株)による管理
○ セキュリティ充実
○ ペット飼育可(細則有)
■お部屋について
○ 専有面積120.66平米の2LDKタイプ
○ 北東角住戸
○ LDK約37帖
○ 浴室1620イズ
○ SIC・WIC・ストレージ等収納充実
※本マンションは新築購入時に前払い賃料(地代)を借地残存期間分(2093年9月30日まで)一括支払い済みにつき、月々の地代のお支払いはございません。物件価格には上記前払い賃料の清算金相当額が含まれております。 |
| 建物名・部屋番号 |
パークコート渋谷ザタワー |
| リフォーム履歴 |
- |
| リノベーション履歴 |
- |
| 瑕疵保証 |
- |
| 瑕疵保険 |
- |
| 評価・証明書 |
- |
| 備考 |
主要採光面:北向き
施工会社:東急建設(株)
用途地域:商業地域
【修繕積立金改定済】
2026年2月分より(2026年 1月引落分)より(月額)28,960円に改定されました。
※借地期間満了時に更地返還要、建物の買取り請求・契約更新及び改築等による期間延長不可
※物件価格は前払い賃料の清算金相当額を含む
|
| エネルギー消費性能 |
- |
| 断熱性能 |
- |
| 目安光熱費 |
- |
| バス・トイレ |
浴室暖房、浴室乾燥機、オートバス、温水洗浄便座 |
| キッチン |
カウンターキッチン、システムキッチン、食器洗浄乾燥機、ディスポーザー、2WAYキッチン、IHクッキングヒーター |
| 設備・サービス |
モニター付オートロック、ウォークインクローゼット、床暖房、トランクルーム、シューズインクローゼット、ダブルロックドア、給湯、全居室フローリング、都市ガス、ビルトインエアコン、インターネット対応、光ファイバー、複層ガラス |
| その他 |
宅配BOX、ペット用施設、フィットネス施設、共用シアタールーム、エレベーター2基以上、共用ゲストルーム、共用パーティルーム、車寄せスペース、内廊下、エレベーター、各フロアゴミ捨て場所あり |
| 条件等 |
- |
現況 |
空家 |
| 引渡可能時期 |
即時 |
物件番号 |
1014268691 |
| 情報公開日 |
2025年9月5日 |
次回更新予定日 |
2026年5月10日 |
| ケータイ用バーコード |
- スマートフォンでこの物件を見る
- スマートフォンからもこの物件をご覧になれます。
|
※「-」と表示されている項目については、情報提供会社にご確認ください。
| 周辺施設 |
東急ストアフードステーション渋谷キャスト店 |
| 距離 |
740m |
写真を見る |
| 周辺施設 |
まいばすけっと渋谷神山町店 |
| 距離 |
280m |
| 周辺施設 |
マツモトキヨシ渋谷スペイン坂店 |
| 距離 |
540m |
| 周辺施設 |
デイリーヤマザキ渋谷区神南店 |
| 距離 |
160m |
| 周辺施設 |
渋谷区立神南小学校 |
| 距離 |
190m |
写真を見る |
ここから簡単にお問い合わせをすることができます。
(SSLでの暗号化での送信を希望されるお客さまは
こちら
よりお問い合わせください)
お問い合わせを行う前に
「個人情報の取り扱いについて」を必ずお読みください。
「個人情報の取り扱いについて」に同意いただいた場合は「上記にご同意の上 確認画面へ進む」のボタンをクリックしてください。
個人情報の取り扱いについて
皆さまが送付された個人情報はアットホーム(株)のサーバを経由し、お問い合わせ先の不動産会社にメールまたはFAXにて転送されるためアットホーム(株)にも保管されます。アットホーム(株)で保管された個人情報の取り扱いについては、【こちら】をご覧ください。
また、本画面でご記入いただいた個人情報は、お問い合わせ先の不動産会社でも保管します。 お問い合わせ先の不動産会社が保管する個人情報の取り扱いについては、不動産会社に直接お問い合わせください。
国土交通大臣免許(15)第777号 |
|---|
- 交通:
- JR山手線/渋谷駅 徒歩2分
- 東京都渋谷区桜丘町3-4 渋谷サクラステージ SAKURAサイド 4F
- TEL:
- 0120-923-731
- FAX:
- 03-6332-7811
- 所属団体:
- (一社)不動産流通経営協会会員(公社)首都圏不動産公正取引協議会加盟
取引態様:一般媒介  - 00783824
|
- スマートフォンで
この不動産会社を見る

|
- 提携サイト等より掲載されている物件情報につきましては、不動産会社詳細情報にリンクされていないものがあります。
- 物件に関するお問合せは、物件詳細ページの「情報提供会社」に表示されている不動産会社へ直接お願いいたします。
- 間取図は、現況を優先させていただきます。
- 映像は物件の一部を撮影したものです。物件の契約にあたっての最終判断はご自身の判断に基づいて行ってください。
- 仲介手数料について

アットホームは物件情報の適正化に努めております。
内容に誤りがある場合にはこちらへご連絡ください。