神奈川県川崎市多摩区中野島4丁目(中野島駅)の中古マンション・新築マンション・分譲マンション:物件詳細
交通 所在地 |
駅徒歩 |
価格 |
構造 階建/階 |
間取り 専有面積 |
物件種目 築年月 |
JR南武線/中野島
神奈川県川崎市多摩区中野島4丁目
|
10分
|
3,480万円
|
RC
7階建 / 1階
|
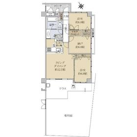
2SLDK
75.68m²
|
中古マンション
2001年5月(築24年6ヶ月)
|
角部屋、南向き、2面採光、24時間換気システム、管理人日勤
|
間取図
|
外観
外観
|
その他の画像
|
交通 | JR南武線 中野島駅 徒歩10分 |
---|
その他の交通 | 小田急小田原線 登戸駅 徒歩19分 小田急小田原線 登戸駅 【バス】 4分 カリタス学園 停歩2分 |
所在地 |
神奈川県川崎市多摩区中野島4丁目
|
物件種目 |
中古マンション |
価格 |
3,480万円 |
平米単価 |
45.99万円 |
管理費等 |
13,100円 |
修繕積立金 |
15,138円 |
借地期間・地代(月額) |
- |
権利金 |
- |
敷金または保証金 |
- / - |
維持費等 |
専用庭使用料:900円/月 |
その他一時金 |
- |
|
|
間取り |
2SLDK |
専有面積 |
75.68m²(壁芯) |
階建 / 階 |
7階建 / 1階 |
バルコニー |
15.60m² |
築年月 |
2001年5月(築24年6ヶ月)
|
建物構造 |
RC |
駐車場 |
有 10,500円/月 |
総戸数 |
48戸 |
駐輪場 |
- |
バイク置き場 |
- |
ペット |
-
|
|
|
土地権利 |
所有権 |
敷地面積 |
- |
管理形態/管理員の勤務形態 |
全部委託/日勤 |
国土法届出 |
- |
アピールポイント |
╋┓ おすすめポイント
┗╋━━━━━━━━━
■平成13年5月築
■専有面積75.68㎡
■テラス面積15.60㎡
■専用庭面積43.76㎡
■7階建の1階部分
■南東角住戸につき、陽当たり良好
■玄関ポーチでプライバシーも配慮
■収納豊富(床下収納・マルチクローゼット・物入等)
■LDにはTES式床暖房有り
■トランクルーム付き
■室内は大変丁寧にお使いです
〇小田急線「登戸」駅徒歩19分、
小田急線「登戸」駅バス4分「カリタス学園」バス停徒歩2分も利用可
|
建物名・部屋番号 |
レリアコート中野島 |
リフォーム履歴 |
- |
リノベーション履歴 |
- |
瑕疵保証 |
- |
瑕疵保険 |
- |
評価・証明書 |
- |
備考 |
主要採光面:南向き
施工会社:(株)森本組
用途地域:1種住居
|
エネルギー消費性能 |
- |
断熱性能 |
- |
目安光熱費 |
- |
バス・トイレ |
浴室乾燥機、追焚機能、温水洗浄便座 |
キッチン |
カウンターキッチン、システムキッチン、3口以上コンロ |
設備・サービス |
モニター付オートロック、全居室収納、床暖房、クローゼット、床下収納、給湯、全居室フローリング、都市ガス |
その他 |
エレベーター |
条件等 |
- |
現況 |
所有者居住中 |
引渡可能時期 |
相談 |
物件番号 |
1014700387 |
情報公開日 |
2025年6月20日 |
次回更新予定日 |
2025年11月5日 |
ケータイ用バーコード |
- スマートフォンでこの物件を見る
- スマートフォンからもこの物件をご覧になれます。
|
※「-」と表示されている項目については、情報提供会社にご確認ください。
ここから簡単にお問い合わせをすることができます。
(SSLでの暗号化での送信を希望されるお客さまは
こちら
よりお問い合わせください)
お問い合わせを行う前に
「個人情報の取り扱いについて」を必ずお読みください。
「個人情報の取り扱いについて」に同意いただいた場合は「上記にご同意の上 確認画面へ進む」のボタンをクリックしてください。
個人情報の取り扱いについて
皆さまが送付された個人情報はアットホーム(株)のサーバを経由し、お問い合わせ先の不動産会社にメールまたはFAXにて転送されるためアットホーム(株)にも保管されます。アットホーム(株)で保管された個人情報の取り扱いについては、【こちら】をご覧ください。
また、本画面でご記入いただいた個人情報は、お問い合わせ先の不動産会社でも保管します。 お問い合わせ先の不動産会社が保管する個人情報の取り扱いについては、不動産会社に直接お問い合わせください。
住友不動産ステップ(株) 新百合ヶ丘営業センター国土交通大臣免許(13)第2077号 |
---|
- 交通:
- 小田急小田原線/新百合ヶ丘駅 徒歩2分
- 神奈川県川崎市麻生区上麻生1丁目5-1 りそな新百合ヶ丘ビル3F
- TEL:
- 0120-161-737
- FAX:
- 044-951-1310
- 所属団体:
- (一社)不動産流通経営協会会員(公社)首都圏不動産公正取引協議会加盟
取引態様:専属専任媒介 |
- 提携サイト等より掲載されている物件情報につきましては、不動産会社詳細情報にリンクされていないものがあります。
- 物件に関するお問合せは、物件詳細ページの「情報提供会社」に表示されている不動産会社へ直接お願いいたします。
- 間取図は、現況を優先させていただきます。
- 映像は物件の一部を撮影したものです。物件の契約にあたっての最終判断はご自身の判断に基づいて行ってください。
- 仲介手数料について

アットホームは物件情報の適正化に努めております。
内容に誤りがある場合にはこちらへご連絡ください。