東京都町田市玉川学園7丁目(玉川学園前駅)の中古マンション・新築マンション・分譲マンション:物件詳細
交通 所在地 |
駅徒歩 |
価格 |
構造 階建/階 |
間取り 専有面積 |
物件種目 築年月 |
|
小田急小田原線/玉川学園前
東京都町田市玉川学園7丁目
|
7分
|
3,980万円
|
RC
10階建 / 6階
|
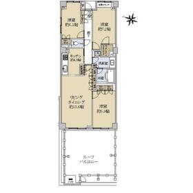
3LDK
85.34m²
|
中古マンション
2006年4月(築19年11ヶ月)
|
|
24時間換気システム、管理人日勤
|
|
間取図
|
外観
外観
|
<
その他の画像
>
|
| 交通 | 小田急小田原線 玉川学園前駅 徒歩7分 |
| 所在地 |
東京都町田市玉川学園7丁目
|
| 物件種目 |
中古マンション |
| 価格 |
3,980万円 |
平米単価 |
46.64万円 |
| 管理費等 |
18,810円 |
修繕積立金 |
14,680円 |
| 借地期間・地代(月額) |
- |
権利金 |
- |
| 敷金または保証金 |
- / - |
維持費等 |
ルーフバルコニー使用料:700円/月 |
| その他一時金 |
- |
|
|
| 間取り |
3LDK |
専有面積 |
85.34m²(壁芯) |
| 階建 / 階 |
10階建 / 6階 |
バルコニー |
31.41m² |
| 築年月 |
2006年4月(築19年11ヶ月)
|
建物構造 |
RC |
| 駐車場 |
有 5,000円/月 |
総戸数 |
74戸 |
| 駐輪場 |
- |
バイク置き場 |
- |
| ペット |
-
|
|
|
| 土地権利 |
所有権 |
敷地面積 |
- |
| 管理形態/管理員の勤務形態 |
全部委託/日勤 |
国土法届出 |
- |
| アピールポイント |
【物件概要】
■交通:小田急線「玉川学園前」駅まで徒歩7分
■専有面積:85.34㎡
■ルーフバルコニー面積:31.41㎡
■間取り:3LDK
■対象不動産南西が駐車場の為、眺望良好です。
■6階部分、南西向きのため、陽当たり良好。
■ペット飼育可(但し、管理規約による制限あり。)
■室内大変丁寧にお使いです。
■共用部分には、宅配ボックスもございます。
■第一種低層住居専用地域の為、閑静な住宅地です。
■各居室に収納スペースあり。
■全室フローリング |
| 建物名・部屋番号 |
アデニウム玉川学園 |
| リフォーム履歴 |
- |
| リノベーション履歴 |
- |
| 瑕疵保証 |
- |
| 瑕疵保険 |
- |
| 評価・証明書 |
- |
| 備考 |
主要採光面:南西向き
施工会社:(株)ピーエス三菱
用途地域:1種低層
ペット飼育可(管理規約等による制限有)/駐車場空有(2025年7月13日現在)、駐輪場使用料100円~200円/月/☆都市計画道路が敷地にかかっています。
|
| エネルギー消費性能 |
- |
| 断熱性能 |
- |
| 目安光熱費 |
- |
| バス・トイレ |
浴室乾燥機、追焚機能、温水洗浄便座 |
| キッチン |
- |
| 設備・サービス |
モニター付オートロック、全居室収納、ウォークインクローゼット、床暖房、オートロック、モニター付インターホン、給湯、全居室フローリング、都市ガス、ルーフバルコニー |
| その他 |
宅配BOX、エレベーター |
| 条件等 |
- |
現況 |
所有者居住中 |
| 引渡可能時期 |
相談 |
物件番号 |
1015024987 |
| 情報公開日 |
2026年1月18日 |
次回更新予定日 |
2026年2月15日 |
| ケータイ用バーコード |
- スマートフォンでこの物件を見る
- スマートフォンからもこの物件をご覧になれます。
|
※「-」と表示されている項目については、情報提供会社にご確認ください。
| 周辺施設 |
小田急線「玉川学園前」駅 |
| 距離 |
520m |
写真を見る |
ここから簡単にお問い合わせをすることができます。
(SSLでの暗号化での送信を希望されるお客さまは
こちら
よりお問い合わせください)
お問い合わせを行う前に
「個人情報の取り扱いについて」を必ずお読みください。
「個人情報の取り扱いについて」に同意いただいた場合は「上記にご同意の上 確認画面へ進む」のボタンをクリックしてください。
個人情報の取り扱いについて
皆さまが送付された個人情報はアットホーム(株)のサーバを経由し、お問い合わせ先の不動産会社にメールまたはFAXにて転送されるためアットホーム(株)にも保管されます。アットホーム(株)で保管された個人情報の取り扱いについては、【こちら】をご覧ください。
また、本画面でご記入いただいた個人情報は、お問い合わせ先の不動産会社でも保管します。 お問い合わせ先の不動産会社が保管する個人情報の取り扱いについては、不動産会社に直接お問い合わせください。
国土交通大臣免許(13)第2077号 |
|---|
- 交通:
- 小田急小田原線/町田駅 徒歩1分
- 東京都町田市原町田6丁目3-8 三井住友銀行町田駅前ビル4F
- TEL:
- 0120-331-038
- FAX:
- 042-728-8943
- 所属団体:
- (一社)不動産流通経営協会会員(公社)首都圏不動産公正取引協議会加盟
取引態様:専属専任媒介  - 00783242
|
- スマートフォンで
この不動産会社を見る

|
- 提携サイト等より掲載されている物件情報につきましては、不動産会社詳細情報にリンクされていないものがあります。
- 物件に関するお問合せは、物件詳細ページの「情報提供会社」に表示されている不動産会社へ直接お願いいたします。
- 間取図は、現況を優先させていただきます。
- 映像は物件の一部を撮影したものです。物件の契約にあたっての最終判断はご自身の判断に基づいて行ってください。
- 仲介手数料について

アットホームは物件情報の適正化に努めております。
内容に誤りがある場合にはこちらへご連絡ください。