兵庫県西宮市満池谷町(苦楽園口駅)の中古マンション・新築マンション・分譲マンション:物件詳細
交通 所在地 |
駅徒歩 |
価格 |
構造 階建/階 |
間取り 専有面積 |
物件種目 築年月 |
|
阪急甲陽線/苦楽園口
兵庫県西宮市満池谷町
|
9分
|
2,700万円
|
RC
8階建 / 2階
|
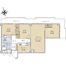
3LDK
89.60m²
|
中古マンション
1977年5月(築48年8ヶ月)
|
|
角部屋、2面採光、閑静な住宅街、管理人日勤
|
|
間取図
|
キッチン
リフォーム済みのキッチン
|
<
その他の画像
>
|
| 交通 | 阪急甲陽線 苦楽園口駅 徒歩9分 |
|---|
| その他の交通 | 阪急神戸線 夙川駅 徒歩13分 JR東海道本線 さくら夙川駅 徒歩16分 |
| 所在地 |
兵庫県西宮市満池谷町
|
| 物件種目 |
中古マンション |
| 価格 |
2,700万円 |
平米単価 |
30.14万円 |
| 管理費等 |
14,340円 |
修繕積立金 |
20,610円 |
| 借地期間・地代(月額) |
- |
権利金 |
- |
| 敷金または保証金 |
- / - |
維持費等 |
- |
| その他一時金 |
- |
|
|
| 間取り |
3LDK |
専有面積 |
89.60m²(壁芯) |
| 階建 / 階 |
8階建 / 2階 |
バルコニー |
26.64m² |
| 築年月 |
1977年5月(築48年8ヶ月)
|
建物構造 |
RC |
| 駐車場 |
有 10,000円/月 |
総戸数 |
44戸 |
| 駐輪場 |
- |
バイク置き場 |
- |
| ペット |
-
|
|
|
| 土地権利 |
所有権 |
敷地面積 |
- |
| 管理形態/管理員の勤務形態 |
全部委託/日勤 |
国土法届出 |
- |
| アピールポイント |
●阪急甲陽園線「苦楽園口」徒歩9分
●阪急神戸線「夙川」徒歩13分
●JR東海道本線「さくら夙川」徒歩16分
◇2024年9月リフォーム
◇北東角部屋
◇専有面積:89.60㎡
◇全居室約6.0帖以上あり
◇室内丁寧にお使いです
■リフォーム内容
・キッチン・トイレ交換
・シューズBOX交換
・玄関、西側洋室、廊下クロス張り替え
・玄関床タイル張り替え
・給湯器交換
◆買替希望の方は、ご自宅売却のお手伝いも致します!お気軽にご相談くださいませ♪
|
| 建物名・部屋番号 |
夙川アーバンライフ |
| リフォーム履歴 |
- |
| リノベーション履歴 |
- |
| 瑕疵保証 |
- |
| 瑕疵保険 |
- |
| 評価・証明書 |
- |
| 備考 |
主要採光面:北向き
施工会社:竹中工務店
用途地域:2種中高
駐車場:車種による
|
| エネルギー消費性能 |
- |
| 断熱性能 |
- |
| 目安光熱費 |
- |
| バス・トイレ |
追焚機能、シャワー付洗面化粧台、温水洗浄便座 |
| キッチン |
システムキッチン、食器洗浄乾燥機、3口以上コンロ |
| 設備・サービス |
モニター付オートロック、エアコン2台以上、クローゼット、防犯カメラ、給湯、全居室フローリング、都市ガス、二面バルコニー |
| その他 |
エレベーター |
| 条件等 |
- |
現況 |
所有者居住中 |
| 引渡可能時期 |
相談 |
物件番号 |
1015858487 |
| 情報公開日 |
2025年10月7日 |
次回更新予定日 |
2025年12月19日 |
| ケータイ用バーコード |
- スマートフォンでこの物件を見る
- スマートフォンからもこの物件をご覧になれます。
|
※「-」と表示されている項目については、情報提供会社にご確認ください。
| 周辺施設 |
西宮市立大社小学校 |
| 距離 |
490m |
写真を見る |
ここから簡単にお問い合わせをすることができます。
(SSLでの暗号化での送信を希望されるお客さまは
こちら
よりお問い合わせください)
お問い合わせを行う前に
「個人情報の取り扱いについて」を必ずお読みください。
「個人情報の取り扱いについて」に同意いただいた場合は「上記にご同意の上 確認画面へ進む」のボタンをクリックしてください。
個人情報の取り扱いについて
皆さまが送付された個人情報はアットホーム(株)のサーバを経由し、お問い合わせ先の不動産会社にメールまたはFAXにて転送されるためアットホーム(株)にも保管されます。アットホーム(株)で保管された個人情報の取り扱いについては、【こちら】をご覧ください。
また、本画面でご記入いただいた個人情報は、お問い合わせ先の不動産会社でも保管します。 お問い合わせ先の不動産会社が保管する個人情報の取り扱いについては、不動産会社に直接お問い合わせください。
住友不動産ステップ(株) 西宮営業センター国土交通大臣免許(13)第2077号 |
|---|
- 交通:
- 阪急神戸線/西宮北口駅 徒歩6分
- 兵庫県西宮市深津町2-32 フレンシア西宮北口 1階
- TEL:
- 0120-533-163
- FAX:
- 0798-65-1976
- 所属団体:
- (一社)不動産流通経営協会会員(公社)首都圏不動産公正取引協議会加盟
取引態様:一般媒介 |
- 提携サイト等より掲載されている物件情報につきましては、不動産会社詳細情報にリンクされていないものがあります。
- 物件に関するお問合せは、物件詳細ページの「情報提供会社」に表示されている不動産会社へ直接お願いいたします。
- 間取図は、現況を優先させていただきます。
- 映像は物件の一部を撮影したものです。物件の契約にあたっての最終判断はご自身の判断に基づいて行ってください。
- 仲介手数料について

アットホームは物件情報の適正化に努めております。
内容に誤りがある場合にはこちらへご連絡ください。