広島県広島市東区牛田早稲田4丁目の中古マンション・新築マンション・分譲マンション:物件詳細
交通 所在地 |
駅徒歩 |
価格 |
構造 階建/階 |
間取り 専有面積 |
物件種目 築年月 |
|
【バス】牛田早稲田団地3丁目 停歩2分
広島県広島市東区牛田早稲田4丁目
|
-
|
2,780万円
|
RC
8階建 / 5階
|
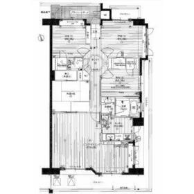
4LDK
105.00m²
|
中古マンション
2005年7月(築20年9ヶ月)
|
|
ペット相談、角部屋、バス1坪以上、管理人日勤
|
|
間取図
|
外観
|
<
その他の画像
>
|
| 交通 | 【バス】 牛田早稲田団地3丁目 停歩2分 |
|---|
| その他の交通 | 広島高速交通アストラムライン 牛田駅 徒歩29分 広島高速交通アストラムライン 白島駅 徒歩32分 |
| 所在地 |
広島県広島市東区牛田早稲田4丁目
|
| 物件種目 |
中古マンション |
| 価格 |
2,780万円 |
平米単価 |
26.48万円 |
| 管理費等 |
14,700円 |
修繕積立金 |
14,490円 |
| 借地期間・地代(月額) |
- |
権利金 |
- |
| 敷金または保証金 |
- / - |
維持費等 |
- |
| その他一時金 |
なし |
|
|
| 間取り |
4LDK(LDK22.8、和6、洋8、6、5.5) |
専有面積 |
105.00m²(壁芯) |
| 階建 / 階 |
8階建 / 5階 |
バルコニー |
29.12m² |
| 築年月 |
2005年7月(築20年9ヶ月)
|
建物構造 |
RC |
| 駐車場 |
- |
総戸数 |
35戸 |
| 駐輪場 |
- |
バイク置き場 |
- |
| ペット |
相談 |
|
|
| 土地権利 |
所有権 |
敷地面積 |
- |
| 管理形態/管理員の勤務形態 |
全部委託/日勤 |
国土法届出 |
- |
| アピールポイント |
●角部屋
●眺望良
●浴室1620サイズ
●ペット可(制限有)
●早稲田小学校約250m
●早稲田中学校約350m
●一部図面と違うオプション工事があります
●現況優先
●駐車場1台分は管理費に含む(駐車位置は継承不可、抽選により決定)
●プライベートポーチ:8.3㎡(2.51坪) |
| 建物名・部屋番号 |
フローレンス牛田早稲田グランドアーク |
| リフォーム履歴 |
- |
| リノベーション履歴 |
- |
| 瑕疵保証 |
- |
| 瑕疵保険 |
- |
| 評価・証明書 |
- |
| 備考 |
主要採光面:南東向き
用途地域:1種中高
|
| エネルギー消費性能 |
- |
| 断熱性能 |
- |
| 目安光熱費 |
- |
| バス・トイレ |
- |
| キッチン |
システムキッチン |
| 設備・サービス |
全居室収納、ウォークインクローゼット、収納スペース、都市ガス |
| その他 |
- |
| 条件等 |
- |
現況 |
空家 |
| 引渡可能時期 |
相談 |
物件番号 |
1022464492 |
| 情報公開日 |
2025年12月2日 |
次回更新予定日 |
2026年4月8日 |
| ケータイ用バーコード |
- スマートフォンでこの物件を見る
- スマートフォンからもこの物件をご覧になれます。
|
※「-」と表示されている項目については、情報提供会社にご確認ください。
| 周辺施設 |
早稲田小学校 |
| 距離 |
265m |
写真を見る |
| 周辺施設 |
早稲田中学校 |
| 距離 |
450m |
写真を見る |
| 周辺施設 |
セブンイレブン 広島牛田東店 |
| 距離 |
1152m |
写真を見る |
| 周辺施設 |
SHOJI(ショージ) 牛田店 |
| 距離 |
1197m |
写真を見る |
| 周辺施設 |
広島牛田早稲田団地郵便局 |
| 距離 |
436m |
写真を見る |
| 周辺施設 |
サンベルモ |
| 距離 |
1177m |
写真を見る |
| 周辺施設 |
Maxvalu(マックスバリュ) 牛田店 |
| 距離 |
1186m |
写真を見る |
| 周辺施設 |
広島牛田早稲田郵便局 |
| 距離 |
1121m |
写真を見る |
ここから簡単にお問い合わせをすることができます。
(SSLでの暗号化での送信を希望されるお客さまは
こちら
よりお問い合わせください)
お問い合わせを行う前に
「個人情報の取り扱いについて」を必ずお読みください。
「個人情報の取り扱いについて」に同意いただいた場合は「上記にご同意の上 確認画面へ進む」のボタンをクリックしてください。
個人情報の取り扱いについて
皆さまが送付された個人情報はアットホーム(株)のサーバを経由し、お問い合わせ先の不動産会社にメールまたはFAXにて転送されるためアットホーム(株)にも保管されます。アットホーム(株)で保管された個人情報の取り扱いについては、【こちら】をご覧ください。
また、本画面でご記入いただいた個人情報は、お問い合わせ先の不動産会社でも保管します。 お問い合わせ先の不動産会社が保管する個人情報の取り扱いについては、不動産会社に直接お問い合わせください。
国土交通大臣免許(8)第4315号 |
|---|
- 交通:
- 広島電鉄宇品線/鷹野橋駅 徒歩1分
- 広島県広島市中区国泰寺町2丁目4-7
- TEL:
- 0120-333-222
- FAX:
- 082-240-1610
- 所属団体:
- (公社)広島県宅地建物取引業協会会員中国地区不動産公正取引協議会加盟
取引態様:一般媒介  - 50103381
|
- スマートフォンで
この不動産会社を見る

|
- 提携サイト等より掲載されている物件情報につきましては、不動産会社詳細情報にリンクされていないものがあります。
- 物件に関するお問合せは、物件詳細ページの「情報提供会社」に表示されている不動産会社へ直接お願いいたします。
- 間取図は、現況を優先させていただきます。
- 映像は物件の一部を撮影したものです。物件の契約にあたっての最終判断はご自身の判断に基づいて行ってください。
- 仲介手数料について

アットホームは物件情報の適正化に努めております。
内容に誤りがある場合にはこちらへご連絡ください。