埼玉県川口市並木1丁目(西川口駅)の中古マンション・新築マンション・分譲マンション:物件詳細
交通 所在地 |
駅徒歩 |
価格 |
構造 階建/階 |
間取り 専有面積 |
物件種目 築年月 |
|
JR京浜東北線/西川口
埼玉県川口市並木1丁目
|
12分
|
2,598万円
|
RC
9階建 / 5階
|
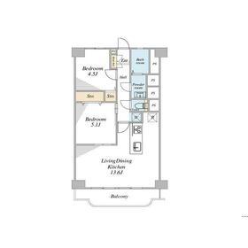
2LDK
55.00m²
|
中古マンション
1975年9月(築50年7ヶ月)
|
|
ペット相談、南向き、管理人日勤
|
|
間取図
間取
|
|
その他の画像
|
| 交通 | JR京浜東北線 西川口駅 徒歩12分 |
|---|
| その他の交通 | JR京浜東北線 川口駅 徒歩17分 埼玉高速鉄道 川口元郷駅 徒歩32分 |
| 所在地 |
埼玉県川口市並木1丁目
|
| 物件種目 |
中古マンション |
| 価格 |
2,598万円 |
平米単価 |
47.24万円 |
| 管理費等 |
9,170円 |
修繕積立金 |
13,200円 |
| 借地期間・地代(月額) |
- |
権利金 |
- |
| 敷金または保証金 |
- / - |
維持費等 |
- |
| その他一時金 |
- |
|
|
| 間取り |
2LDK |
専有面積 |
55.00m²(壁芯) |
| 階建 / 階 |
9階建 / 5階 |
バルコニー |
6.73m² |
| 築年月 |
1975年9月(築50年7ヶ月)
|
建物構造 |
RC |
| 駐車場 |
- |
総戸数 |
180戸 |
| 駐輪場 |
- |
バイク置き場 |
- |
| ペット |
相談 |
|
|
| 土地権利 |
所有権 |
敷地面積 |
- |
| 管理形態/管理員の勤務形態 |
全部委託/日勤 |
国土法届出 |
- |
| アピールポイント |
◆3つの安心サポート
①営業車にて安全にご案内。お住まい探しに集中して頂けます②マイホーム購入の資金計画・購入から老後までの人生設計を実施することで暮らしに安心を提案します③どんなに信用のある建築会社でもご自分の目で確認することは重要ですよね。弊社は特殊機材を使用して物件状態を調査致します
◆ご来店特典
①ご見学、ご来店後にアンケート記入で、もれなく3,000円のQUOカードプレゼント(1組様1回限り後日郵送)②未公開の物件情報をご紹介します③不動産ご購入、ご売却、太陽光発電システムご検討中のお客様、ご紹介でもれなくQUOカード3,000円分プレゼント。更にご紹介のお客様が弊社仲介にてご契約頂くと、1万円から最大10万円のご紹介料をお支払いさせて頂きます!詳しくはスタッフ迄
◆県内有数の大型店舗
①店舗敷地内に大型駐車場完備、マイカーでも安心!②チャイルドスペース、授乳室、ベビーベッド完備
③他にもファミリーに優しい『あったら良いな』がここにある!ミルク用浄水サーバー、紙おむつ、アメニティ、大型個室2部屋、各ブースモニター、プラズマクラスター等 |
| 建物名・部屋番号 |
川口サマリヤマンション |
| リフォーム履歴 |
■水回り:2025年11月 キッチン、浴室、トイレ、洗面所、給湯器 ■内装:2025年11月 床(フローリング等)、壁・天井(クロス・塗装等)、建具(室内ドア等) 分電盤・スイッチ・コンセントカバー交換 等 ※実施年月は最も古い履歴を表示 |
| リノベーション履歴 |
- |
| 瑕疵保証 |
- |
| 瑕疵保険 |
- |
| 評価・証明書 |
- |
| 備考 |
主要採光面:南向き
用途地域:準工業
ペット1匹飼育可
|
| エネルギー消費性能 |
- |
| 断熱性能 |
- |
| 目安光熱費 |
- |
| バス・トイレ |
- |
| キッチン |
- |
| 設備・サービス |
全居室収納、収納スペース、全居室フローリング、都市ガス |
| その他 |
- |
| 条件等 |
- |
現況 |
空家 |
| 引渡可能時期 |
相談 |
物件番号 |
1022713166 |
| 情報公開日 |
2026年3月12日 |
次回更新予定日 |
2026年3月26日 |
| ケータイ用バーコード |
- スマートフォンでこの物件を見る
- スマートフォンからもこの物件をご覧になれます。
|
※「-」と表示されている項目については、情報提供会社にご確認ください。
| 周辺施設 |
京浜東北線西川口駅 |
| 距離 |
960m |
写真を見る |
| 周辺施設 |
川口市立並木小学校 |
| 距離 |
160m |
写真を見る |
| 周辺施設 |
川口市立幸並中学校 |
| 距離 |
1000m |
写真を見る |
| 周辺施設 |
並木南保育所 |
| 距離 |
100m |
写真を見る |
| 周辺施設 |
埼玉県済生会川口総合病院 |
| 距離 |
1000m |
写真を見る |
ここから簡単にお問い合わせをすることができます。
(SSLでの暗号化での送信を希望されるお客さまは
こちら
よりお問い合わせください)
お問い合わせを行う前に
「個人情報の取り扱いについて」を必ずお読みください。
「個人情報の取り扱いについて」に同意いただいた場合は「上記にご同意の上 確認画面へ進む」のボタンをクリックしてください。
個人情報の取り扱いについて
皆さまが送付された個人情報はアットホーム(株)のサーバを経由し、お問い合わせ先の不動産会社にメールまたはFAXにて転送されるためアットホーム(株)にも保管されます。アットホーム(株)で保管された個人情報の取り扱いについては、【こちら】をご覧ください。
また、本画面でご記入いただいた個人情報は、お問い合わせ先の不動産会社でも保管します。 お問い合わせ先の不動産会社が保管する個人情報の取り扱いについては、不動産会社に直接お問い合わせください。
埼玉県知事免許(4)第21116号 |
|---|
- 交通:
- JR京浜東北線/南浦和駅 徒歩15分
- 埼玉県さいたま市浦和区神明2丁目12-10
- TEL:
- 048-799-2991
- FAX:
- 048-799-2990
- 所属団体:
- (公社)埼玉県宅地建物取引業協会会員(公社)首都圏不動産公正取引協議会加盟
取引態様:媒介  - 00018034
|
- スマートフォンで
この不動産会社を見る

|
- 提携サイト等より掲載されている物件情報につきましては、不動産会社詳細情報にリンクされていないものがあります。
- 物件に関するお問合せは、物件詳細ページの「情報提供会社」に表示されている不動産会社へ直接お願いいたします。
- 間取図は、現況を優先させていただきます。
- 映像は物件の一部を撮影したものです。物件の契約にあたっての最終判断はご自身の判断に基づいて行ってください。
- 仲介手数料について

アットホームは物件情報の適正化に努めております。
内容に誤りがある場合にはこちらへご連絡ください。