大阪府東大阪市高井田中1丁目(河内永和駅)の中古マンション・新築マンション・分譲マンション:物件詳細
交通 所在地 |
駅徒歩 |
価格 |
構造 階建/階 |
間取り 専有面積 |
物件種目 築年月 |
|
近鉄奈良線/河内永和
大阪府東大阪市高井田中1丁目
|
8分
|
1,498万円
|
RC
11階建 / 8階
|
3LDK
76.87m²
|
中古マンション
1974年11月(築51年)
|
|
南向き、閑静な住宅街、管理人日勤
|
|
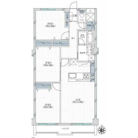
間取図
●ご内覧日程は柔軟に対応させていただきます、お気軽にお問い合わせください♪●マイホームは欲しいけど…
|
室内
洋室約6帖:バルコニーに面した明るい洋室!お掃除もラクチンなフローリングのお部屋です♪
|
<
その他の画像
>
|
| 交通 | 近鉄奈良線 河内永和駅 徒歩8分 |
|---|
| その他の交通 | JRおおさか東線 JR河内永和駅 徒歩8分 |
| 所在地 |
大阪府東大阪市高井田中1丁目
|
| 物件種目 |
中古マンション |
| 価格 |
1,498万円 |
平米単価 |
19.49万円 |
| 管理費等 |
9,330円 |
修繕積立金 |
13,530円 |
| 借地期間・地代(月額) |
- |
権利金 |
- |
| 敷金または保証金 |
- / - |
維持費等 |
- |
| その他一時金 |
なし |
|
|
| 間取り |
3LDK(LDK14.5帖 洋室6.2帖 洋室6.0帖 洋室5.6帖) |
専有面積 |
76.87m²(壁芯) |
| 階建 / 階 |
11階建 / 8階 |
バルコニー |
- |
| 築年月 |
1974年11月(築51年)
|
建物構造 |
RC |
| 駐車場 |
無 |
総戸数 |
125戸 |
| 駐輪場 |
有 1,000円/月 |
バイク置き場 |
有 2,000円/年 |
| ペット |
-
|
|
|
| 土地権利 |
所有権 |
敷地面積 |
- |
| 管理形態/管理員の勤務形態 |
全部委託/日勤 |
国土法届出 |
- |
| アピールポイント |
●フルリノベーション物件♪
●嬉しいエアコン2台付き! |
| 建物名・部屋番号 |
高井田中1丁目アクロシャトー永和河内永和駅 |
| リフォーム履歴 |
■水回り:2024年12月 キッチン、浴室、洗面所、給湯器 ■内装:2024年12月 全室クロス張替え、建具(室内ドア等) ※実施年月は最も古い履歴を表示 |
| リノベーション履歴 |
- |
| 瑕疵保証 |
- |
| 瑕疵保険 |
- |
| 評価・証明書 |
- |
| 備考 |
主要採光面:南向き
用途地域:工業地域
延べ面積:76.87m²
【会社の特徴】
■弊社は全国700店舗展開中の「ハウスドゥ」でございます!
■お子様連れのお客様でも安心してお部屋探しができるよう、店内にキッズスペースをご用意しております!
【立地】
●近鉄難波・奈良線/河内永和駅から徒歩約8分♪
【物件のポイント】
●24年12月リフォーム済み!
●南向きバルコニーで陽当たり/通風良好!
●コンビニ・スーパーなどが徒歩圏内ですので周辺施設充実!
●周辺環境充実で生活環境良好♪
●現在は空室のため、平日・休日を問わずいつでも見学が可能です♪
|
| エネルギー消費性能 |
- |
| 断熱性能 |
- |
| 目安光熱費 |
- |
| バス・トイレ |
浴室乾燥機、オートバス、追焚機能、シャワー付洗面化粧台、温水洗浄便座 |
| キッチン |
オープンキッチン、システムキッチン、食器洗浄乾燥機、グリル |
| 設備・サービス |
バイク置き場、収納スペース、室内洗濯機置場、クローゼット、モニター付インターホン、給湯、全居室フローリング、駐輪場、衣類乾燥機 |
| その他 |
- |
| 条件等 |
- |
現況 |
空家 |
| 引渡可能時期 |
即時 |
物件番号 |
1029668493 |
| 情報公開日 |
2025年9月16日 |
次回更新予定日 |
2025年10月31日 |
| ケータイ用バーコード |
- スマートフォンでこの物件を見る
- スマートフォンからもこの物件をご覧になれます。
|
※「-」と表示されている項目については、情報提供会社にご確認ください。
| 周辺施設 |
いわさきクリニック |
| 距離 |
1850m |
写真を見る |
| 周辺施設 |
ジャパン 東大阪御厨店 |
| 距離 |
1560m |
写真を見る |
| 周辺施設 |
八戸ノ里駅_近鉄奈良線 |
| 距離 |
2080m |
写真を見る |
| 周辺施設 |
東大阪生協病院 |
| 距離 |
2240m |
写真を見る |
| 周辺施設 |
東大阪意岐部郵便局 |
| 距離 |
2320m |
写真を見る |
| 周辺施設 |
長田駅_地下鉄中央線 |
| 距離 |
2680m |
写真を見る |
| 周辺施設 |
ココカラファイン_長瀬駅前店 |
| 距離 |
2360m |
写真を見る |
| 周辺施設 |
長瀬駅_近鉄大阪線 |
| 距離 |
2400m |
写真を見る |
ここから簡単にお問い合わせをすることができます。
(SSLでの暗号化での送信を希望されるお客さまは
こちら
よりお問い合わせください)
お問い合わせを行う前に
「個人情報の取り扱いについて」を必ずお読みください。
「個人情報の取り扱いについて」に同意いただいた場合は「上記にご同意の上 確認画面へ進む」のボタンをクリックしてください。
個人情報の取り扱いについて
皆さまが送付された個人情報はアットホーム(株)のサーバを経由し、お問い合わせ先の不動産会社にメールまたはFAXにて転送されるためアットホーム(株)にも保管されます。アットホーム(株)で保管された個人情報の取り扱いについては、【こちら】をご覧ください。
また、本画面でご記入いただいた個人情報は、お問い合わせ先の不動産会社でも保管します。 お問い合わせ先の不動産会社が保管する個人情報の取り扱いについては、不動産会社に直接お問い合わせください。
大阪府知事免許(1)第65201号 |
|---|
- 交通:
- 近鉄けいはんな線/新石切駅 徒歩18分 【バス】6分 南日下 停歩2分
- 大阪府東大阪市日下町4丁目1-42 マンハイムグラン石切138号
- TEL:
- 072-983-5716
- FAX:
- 072-983-5936
- 所属団体:
- (一社)大阪府宅地建物取引業協会会員(公社)近畿地区不動産公正取引協議会加盟
取引態様:媒介  - 50109866
|
- スマートフォンで
この不動産会社を見る

|
- 提携サイト等より掲載されている物件情報につきましては、不動産会社詳細情報にリンクされていないものがあります。
- 物件に関するお問合せは、物件詳細ページの「情報提供会社」に表示されている不動産会社へ直接お願いいたします。
- 間取図は、現況を優先させていただきます。
- 映像は物件の一部を撮影したものです。物件の契約にあたっての最終判断はご自身の判断に基づいて行ってください。
- 仲介手数料について

アットホームは物件情報の適正化に努めております。
内容に誤りがある場合にはこちらへご連絡ください。