愛知県瀬戸市東横山町(新瀬戸駅)の中古マンション・新築マンション・分譲マンション:物件詳細
交通 所在地 |
駅徒歩 |
価格 |
構造 階建/階 |
間取り 専有面積 |
物件種目 築年月 |
|
名鉄瀬戸線/新瀬戸
愛知県瀬戸市東横山町
|
2分
|
3,490万円
|
RC
10階建 / 8階
|
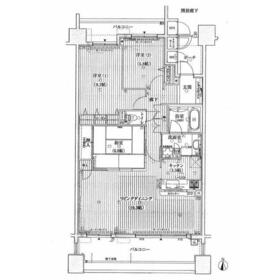
3LDK
96.11m²
|
中古マンション
2004年12月(築21年1ヶ月)
|
|
ペット相談、南向き、閑静な住宅街、管理人日勤
|
|
≪オープンルーム/モデルルーム≫【開催期間】~2025年12月6日 【時間】10:00~16:00 開催日:25年12月6日 事前に必ずお問合せください
|
|
間取図
|
外観
|
<
その他の画像
>
|
| 交通 | 名鉄瀬戸線 新瀬戸駅 徒歩2分 |
|---|
| その他の交通 | 愛知環状鉄道 瀬戸市駅 徒歩3分 名鉄瀬戸線 水野駅 徒歩9分 |
| 所在地 |
愛知県瀬戸市東横山町
|
| 物件種目 |
中古マンション |
| 価格 |
3,490万円 |
平米単価 |
36.32万円 |
| 管理費等 |
11,200円 |
修繕積立金 |
16,800円 |
| 借地期間・地代(月額) |
- |
権利金 |
- |
| 敷金または保証金 |
- / - |
維持費等 |
CATV(定額料金):330円/月 |
| その他一時金 |
なし |
|
|
| 間取り |
3LDK |
専有面積 |
96.11m² |
| 階建 / 階 |
10階建 / 8階 |
バルコニー |
25.17m² |
| 築年月 |
2004年12月(築21年1ヶ月)
|
建物構造 |
RC |
| 駐車場 |
有 3,000円/月 |
総戸数 |
115戸 |
| 駐輪場 |
有 |
バイク置き場 |
有 |
| ペット |
小型犬可・ 猫可 |
|
|
| 土地権利 |
所有権 |
敷地面積 |
- |
| 管理形態/管理員の勤務形態 |
全部委託/日勤 |
国土法届出 |
- |
| アピールポイント |
◆おすすめポイント◆
・ペット飼育可能(細則あり)
・主寝室約9.2帖
・玄関ポーチ付き
・浴室1620サイズ
・LDK22.8帖と6帖和室の続き間
◆周辺環境◆
・名鉄瀬戸線『新瀬戸』駅まで徒歩2分(約120m)
・愛知環状鉄道『瀬戸市』駅まで徒歩3分(約210m)
・バロー新瀬戸店まで徒歩3分(約220m)
・公立陶生病院まで徒歩8分(約600m)
・水南小学校まで徒歩14分(約1060m)
・南山中学校まで徒歩18分(約1370m)
「実際に物件を見たい!」「一度話を聞いてみたい!」と思ったら、
【来店して相談する】をクリック♪
★ハウスドゥ瀬戸中央は、瀬戸市・尾張旭市・春日井市・多治見市・守山区を中心に、
400件以上の物件を取り扱っております!
その他上記以外のエリアでお探しの方も、対応可能です!
★お子様連れでも安心!
ベビーベッド、キッズスペース完備!
★利用されたお客様からも高評価!
Google口コミ200件以上!評価4.9を獲得!
口コミの内容も、ぜひ一度ご覧ください♪ |
| 建物名・部屋番号 |
エムズシティ新瀬戸 |
| リフォーム履歴 |
- |
| リノベーション履歴 |
- |
| 瑕疵保証 |
- |
| 瑕疵保険 |
- |
| 評価・証明書 |
- |
| 備考 |
主要採光面:南向き
法令等制限:景観法・準防火地域
施工会社:戸田建設株式会社
用途地域:商業地域
延べ面積:96.11m²
現地へのご案内・ご相談は、お気軽にハウスドゥ瀬戸中央までお問い合わせ下さい。
★資金のご相談もおまかせ!
・自分はいくら位の住宅が買えるの?
・将来も安心して暮らせるローンの組み方は?
・今すぐ?貯金してから?損しない家の買い方やタイミングは?
住宅購入に関する資金相談もお任せください!
お客様一人ひとりに合った買い方をご提案いたします!
★【ハウスドゥ全国大会入賞の実績!】
店舗総合ランキング全国第10位!(約700店舗中)
店長・高木 個人仲介契約件数&売上高全国第9位!
個人仲介売上高東海エリア第1位!(約1000人中)
多くの方から選ばれているお店です!
★はじめての方も経験者も、なんでも聞いてください!!
「住宅購入の流れを、まずは教えてほしい!」
そのような小さな“わからない”でも、相談してください◎
“物件が同じなら、どの会社から買っても同じ。”
そんなことはありません!
一緒に納得のいくマイホーム探しをしませんか?
まずは資料請求から、お気軽にどうぞ!
|
| エネルギー消費性能 |
- |
| 断熱性能 |
- |
| 目安光熱費 |
- |
| バス・トイレ |
浴室乾燥機 |
| キッチン |
カウンターキッチン、システムキッチン、グリル |
| 設備・サービス |
全居室収納、床暖房、バイク置き場、収納スペース、室内洗濯機置場、トランクルーム、クローゼット、オートロック、ディンプルキー、給湯、都市ガス、ワイドバルコニー、駐輪場、CATVインターネット、ケーブルTV |
| その他 |
宅配BOX、エレベーター |
| 条件等 |
- |
現況 |
空家 |
| 引渡可能時期 |
相談 |
物件番号 |
1030037893 |
| 情報公開日 |
2025年7月11日 |
次回更新予定日 |
2025年12月14日 |
| ケータイ用バーコード |
- スマートフォンでこの物件を見る
- スマートフォンからもこの物件をご覧になれます。
|
※「-」と表示されている項目については、情報提供会社にご確認ください。
| 周辺施設 |
名鉄瀬戸線『新瀬戸』駅 |
| 距離 |
120m |
写真を見る |
| 周辺施設 |
愛知環状鉄道『瀬戸市』駅 |
| 距離 |
210m |
写真を見る |
| 周辺施設 |
バロー新瀬戸店 |
| 距離 |
220m |
写真を見る |
| 周辺施設 |
クスリのアオキ瀬戸北山店 |
| 距離 |
410m |
写真を見る |
| 周辺施設 |
瀬戸信用金庫 本店 |
| 距離 |
380m |
写真を見る |
| 周辺施設 |
ファミリーマート瀬戸北山店 |
| 距離 |
460m |
写真を見る |
| 周辺施設 |
スギドラッグ汗干店 |
| 距離 |
580m |
写真を見る |
| 周辺施設 |
公立陶生病院 |
| 距離 |
600m |
写真を見る |
ここから簡単にお問い合わせをすることができます。
(SSLでの暗号化での送信を希望されるお客さまは
こちら
よりお問い合わせください)
お問い合わせを行う前に
「個人情報の取り扱いについて」を必ずお読みください。
「個人情報の取り扱いについて」に同意いただいた場合は「上記にご同意の上 確認画面へ進む」のボタンをクリックしてください。
個人情報の取り扱いについて
皆さまが送付された個人情報はアットホーム(株)のサーバを経由し、お問い合わせ先の不動産会社にメールまたはFAXにて転送されるためアットホーム(株)にも保管されます。アットホーム(株)で保管された個人情報の取り扱いについては、【こちら】をご覧ください。
また、本画面でご記入いただいた個人情報は、お問い合わせ先の不動産会社でも保管します。 お問い合わせ先の不動産会社が保管する個人情報の取り扱いについては、不動産会社に直接お問い合わせください。
愛知県知事免許(4)第21544号 |
|---|
- 交通:
- 名鉄瀬戸線/新瀬戸駅 徒歩3分
- 愛知県瀬戸市水南町55 プリシード1階
- TEL:
- 0120-21-2297
- FAX:
- 0561-21-2298
- 所属団体:
- (公社)愛知県宅地建物取引業協会会員東海不動産公正取引協議会加盟
取引態様:専属専任媒介  - 40404546
|
- スマートフォンで
この不動産会社を見る

|
- 提携サイト等より掲載されている物件情報につきましては、不動産会社詳細情報にリンクされていないものがあります。
- 物件に関するお問合せは、物件詳細ページの「情報提供会社」に表示されている不動産会社へ直接お願いいたします。
- 間取図は、現況を優先させていただきます。
- 映像は物件の一部を撮影したものです。物件の契約にあたっての最終判断はご自身の判断に基づいて行ってください。
- 仲介手数料について

アットホームは物件情報の適正化に努めております。
内容に誤りがある場合にはこちらへご連絡ください。