北海道札幌市白石区北郷八条3丁目(白石駅)の中古マンション・新築マンション・分譲マンション:物件詳細
交通 所在地 |
駅徒歩 |
価格 |
構造 階建/階 |
間取り 専有面積 |
物件種目 築年月 |
|
JR千歳線/白石
北海道札幌市白石区北郷八条3丁目
|
22分
|
1,000万円
|
RC
8階建 / 8階
|
3LDK
67.86m²
|
中古マンション
1992年7月(築33年6ヶ月)
|
|
最上階、南向き、管理人日勤
|
|
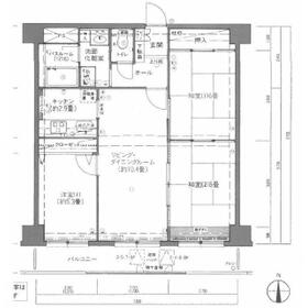
間取図
|
外観
|
<
その他の画像
>
|
| 交通 | JR千歳線 白石駅 徒歩22分 |
|---|
| その他の交通 | JR函館本線 白石駅 【バス】 7分 北白石中学校 停歩4分 |
| 所在地 |
北海道札幌市白石区北郷八条3丁目
|
| 物件種目 |
中古マンション |
| 価格 |
1,000万円 |
平米単価 |
14.74万円 |
| 管理費等 |
5,972円 |
修繕積立金 |
16,694円 |
| 借地期間・地代(月額) |
- |
権利金 |
- |
| 敷金または保証金 |
- / - |
維持費等 |
- |
| その他一時金 |
なし |
|
|
| 間取り |
3LDK(LDK10.4帖 和室6.0帖 和室6.0帖 洋室5.3帖) |
専有面積 |
67.86m²(壁芯) |
| 階建 / 階 |
8階建 / 8階 |
バルコニー |
9.36m² |
| 築年月 |
1992年7月(築33年6ヶ月)
|
建物構造 |
RC |
| 駐車場 |
- |
総戸数 |
- |
| 駐輪場 |
- |
バイク置き場 |
- |
| ペット |
-
|
|
|
| 土地権利 |
所有権 |
敷地面積 |
- |
| 管理形態/管理員の勤務形態 |
全部委託/日勤 |
国土法届出 |
- |
| アピールポイント |
■小学校・中学校まで徒歩10分圏内!お子様の通学も安心♪
■リフォーム素材に最適!
■近隣に公園が複数あり!子育て世代にもおすすめ!
■敷地内駐車場空きあり! |
| 建物名・部屋番号 |
グランデュア北郷 |
| リフォーム履歴 |
- |
| リノベーション履歴 |
- |
| 瑕疵保証 |
- |
| 瑕疵保険 |
- |
| 評価・証明書 |
- |
| 備考 |
主要採光面:南向き
延べ面積:67.86m²
|
| エネルギー消費性能 |
- |
| 断熱性能 |
- |
| 目安光熱費 |
- |
| バス・トイレ |
- |
| キッチン |
- |
| 設備・サービス |
室内洗濯機置場、給湯、FF暖房、暖房、灯油、照明器具 |
| その他 |
- |
| 条件等 |
- |
現況 |
空家 |
| 引渡可能時期 |
即時 |
物件番号 |
1032704993 |
| 情報公開日 |
2025年12月5日 |
次回更新予定日 |
2025年12月22日 |
| ケータイ用バーコード |
- スマートフォンでこの物件を見る
- スマートフォンからもこの物件をご覧になれます。
|
※「-」と表示されている項目については、情報提供会社にご確認ください。
| 周辺施設 |
産直生鮮市場 北郷店 |
| 距離 |
980m |
写真を見る |
| 周辺施設 |
セブン-イレブン 札幌北郷6条店 |
| 距離 |
380m |
写真を見る |
| 周辺施設 |
ツルハドラッグ 北郷店 |
| 距離 |
1510m |
写真を見る |
| 周辺施設 |
札幌市立北白石小学校 |
| 距離 |
550m |
写真を見る |
| 周辺施設 |
白石北郷郵便局 |
| 距離 |
880m |
写真を見る |
| 周辺施設 |
医療法人社団 ふるげん内科循環器クリニック |
| 距離 |
1010m |
写真を見る |
| 周辺施設 |
JR千歳線/函館本線「白石」駅 |
| 距離 |
1970m |
写真を見る |
| 周辺施設 |
都市型保育園ポポラー 札幌北郷園 |
| 距離 |
1220m |
写真を見る |
ここから簡単にお問い合わせをすることができます。
(SSLでの暗号化での送信を希望されるお客さまは
こちら
よりお問い合わせください)
お問い合わせを行う前に
「個人情報の取り扱いについて」を必ずお読みください。
「個人情報の取り扱いについて」に同意いただいた場合は「上記にご同意の上 確認画面へ進む」のボタンをクリックしてください。
個人情報の取り扱いについて
皆さまが送付された個人情報はアットホーム(株)のサーバを経由し、お問い合わせ先の不動産会社にメールまたはFAXにて転送されるためアットホーム(株)にも保管されます。アットホーム(株)で保管された個人情報の取り扱いについては、【こちら】をご覧ください。
また、本画面でご記入いただいた個人情報は、お問い合わせ先の不動産会社でも保管します。 お問い合わせ先の不動産会社が保管する個人情報の取り扱いについては、不動産会社に直接お問い合わせください。
北海道知事免許 上川(4)第1083号 |
|---|
- 交通:
- 札幌市東豊線/環状通東駅 徒歩30分 【バス】9分 本町1条10丁目 停歩3分
- 北海道札幌市東区本町一条9丁目1-40
- TEL:
- 011-299-3880
- FAX:
- 011-769-9102
- 所属団体:
- (公社)北海道宅地建物取引業協会会員(一社)北海道不動産公正取引協議会加盟
取引態様:媒介  - 10006524
|
- スマートフォンで
この不動産会社を見る

|
- 提携サイト等より掲載されている物件情報につきましては、不動産会社詳細情報にリンクされていないものがあります。
- 物件に関するお問合せは、物件詳細ページの「情報提供会社」に表示されている不動産会社へ直接お願いいたします。
- 間取図は、現況を優先させていただきます。
- 映像は物件の一部を撮影したものです。物件の契約にあたっての最終判断はご自身の判断に基づいて行ってください。
- 仲介手数料について

アットホームは物件情報の適正化に努めております。
内容に誤りがある場合にはこちらへご連絡ください。