神奈川県横浜市鶴見区本町通2丁目(鶴見駅)の中古マンション・新築マンション・分譲マンション:物件詳細
交通 所在地 |
駅徒歩 |
価格 |
構造 階建/階 |
間取り 専有面積 |
物件種目 築年月 |
|
JR京浜東北線/鶴見
神奈川県横浜市鶴見区本町通2丁目
|
12分
|
3,750万円
|
RC
8階建 / 5階
|
ワンルーム
30.06m²
|
中古マンション
2025年6月(築1年未満)
|
|
管理人巡回
|
|
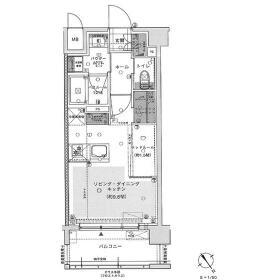
間取図
間取図
|
キッチン
キッチン
|
その他の画像
|
| 交通 | JR京浜東北線 鶴見駅 徒歩12分 |
|---|
| その他の交通 | 京急本線 京急鶴見駅 徒歩10分 JR鶴見線 鶴見小野駅 徒歩9分 |
| 所在地 |
神奈川県横浜市鶴見区本町通2丁目
|
| 物件種目 |
中古マンション |
| 価格 |
3,750万円 |
平米単価 |
124.76万円 |
| 管理費等 |
12,500円 |
修繕積立金 |
3,010円 |
| 借地期間・地代(月額) |
- |
権利金 |
- |
| 敷金または保証金 |
- / - |
維持費等 |
インターネット使用料:803円/月 |
| その他一時金 |
- |
|
|
| 間取り |
ワンルーム(洋室11.1) |
専有面積 |
30.06m²(壁芯) |
| 階建 / 階 |
8階建 / 5階 |
バルコニー |
6.08m² |
| 築年月 |
2025年6月(築1年未満)
|
建物構造 |
RC |
| 駐車場 |
無 |
総戸数 |
28戸 |
| 駐輪場 |
無 |
バイク置き場 |
無 |
| ペット |
-
|
|
|
| 土地権利 |
所有権 |
敷地面積 |
- |
| 管理形態/管理員の勤務形態 |
全部委託/巡回 |
国土法届出 |
- |
| 建物名・部屋番号 |
グラサージュ横濱鶴見グレイスコート |
| リフォーム履歴 |
- |
| リノベーション履歴 |
- |
| 瑕疵保証 |
- |
| 瑕疵保険 |
- |
| 評価・証明書 |
- |
| 備考 |
主要採光面:北東向き
法令等制限:防火地域 準防火地域内
用途地域:商業地域
2025年6月築 1R
■SIC・WICあり■ミストサウナ・浴室乾燥機・食洗機・床暖房等あり 室内設備充実
|
| エネルギー消費性能 |
- |
| 断熱性能 |
- |
| 目安光熱費 |
- |
| バス・トイレ |
浴室乾燥機、追焚機能、シャワー付洗面化粧台、温水洗浄便座 |
| キッチン |
カウンターキッチン、システムキッチン |
| 設備・サービス |
ウォークインクローゼット、床暖房、オートロック、モニター付インターホン |
| その他 |
宅配BOX、エレベーター |
| 条件等 |
- |
現況 |
所有者居住中 |
| 引渡可能時期 |
相談 |
物件番号 |
1052135747 |
| 情報公開日 |
2026年1月23日 |
次回更新予定日 |
2026年2月6日 |
| ケータイ用バーコード |
- スマートフォンでこの物件を見る
- スマートフォンからもこの物件をご覧になれます。
|
※「-」と表示されている項目については、情報提供会社にご確認ください。
ここから簡単にお問い合わせをすることができます。
(SSLでの暗号化での送信を希望されるお客さまは
こちら
よりお問い合わせください)
お問い合わせを行う前に
「個人情報の取り扱いについて」を必ずお読みください。
「個人情報の取り扱いについて」に同意いただいた場合は「上記にご同意の上 確認画面へ進む」のボタンをクリックしてください。
個人情報の取り扱いについて
皆さまが送付された個人情報はアットホーム(株)のサーバを経由し、お問い合わせ先の不動産会社にメールまたはFAXにて転送されるためアットホーム(株)にも保管されます。アットホーム(株)で保管された個人情報の取り扱いについては、【こちら】をご覧ください。
また、本画面でご記入いただいた個人情報は、お問い合わせ先の不動産会社でも保管します。 お問い合わせ先の不動産会社が保管する個人情報の取り扱いについては、不動産会社に直接お問い合わせください。
国土交通大臣免許(3)第8738号 |
|---|
- 交通:
- 新交通ゆりかもめ/汐留駅 徒歩1分
- 東京都港区東新橋1丁目9-2 汐留住友ビル16階
- TEL:
- 050-3091-7771
- 所属団体:
- (公社)全日本不動産協会会員(公社)首都圏不動産公正取引協議会加盟
取引態様:専任媒介  - 00274595
|
- スマートフォンで
この不動産会社を見る

|
- 提携サイト等より掲載されている物件情報につきましては、不動産会社詳細情報にリンクされていないものがあります。
- 物件に関するお問合せは、物件詳細ページの「情報提供会社」に表示されている不動産会社へ直接お願いいたします。
- 間取図は、現況を優先させていただきます。
- 映像は物件の一部を撮影したものです。物件の契約にあたっての最終判断はご自身の判断に基づいて行ってください。
- 仲介手数料について

アットホームは物件情報の適正化に努めております。
内容に誤りがある場合にはこちらへご連絡ください。