神奈川県厚木市恩名5丁目(本厚木駅)の中古マンション・新築マンション・分譲マンション:物件詳細
交通 所在地 |
駅徒歩 |
価格 |
構造 階建/階 |
間取り 専有面積 |
物件種目 築年月 |
|
小田急小田原線/本厚木 【バス】8分 アンリツ前 停歩6分
神奈川県厚木市恩名5丁目
|
-
|
2,180万円
|
RC
11階建 / 4階
|
3SLDK
77.88m²
|
中古マンション
1998年3月(築27年8ヶ月)
|
|
南向き、外観タイル張り、管理人日勤、高台
|
|
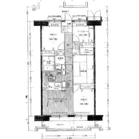
間取図
|
外観
|
<
その他の画像
>
|
| 交通 | 小田急小田原線 本厚木駅 【バス】 8分 アンリツ前 停歩6分 |
|---|
| その他の交通 | 小田急小田原線 愛甲石田駅 徒歩53分 相鉄本線 海老名駅 徒歩69分 |
| 所在地 |
神奈川県厚木市恩名5丁目
|
| 物件種目 |
中古マンション |
| 価格 |
2,180万円 |
平米単価 |
28万円 |
| 管理費等 |
10,900円 |
修繕積立金 |
11,370円 |
| 借地期間・地代(月額) |
- |
権利金 |
- |
| 敷金または保証金 |
- / - |
維持費等 |
- |
| その他一時金 |
- |
|
|
| 間取り |
3SLDK(LDK13.2 和6 洋6 洋6.3 S4.5) |
専有面積 |
77.88m²(壁芯) |
| 階建 / 階 |
11階建 / 4階 |
バルコニー |
11.54m² |
| 築年月 |
1998年3月(築27年8ヶ月)
|
建物構造 |
RC |
| 駐車場 |
空無 |
総戸数 |
150戸 |
| 駐輪場 |
有 |
バイク置き場 |
有 |
| ペット |
-
|
|
|
| 土地権利 |
所有権 |
敷地面積 |
- |
| 管理形態/管理員の勤務形態 |
全部委託/日勤 |
国土法届出 |
- |
| 建物名・部屋番号 |
ネオステージ本厚木 |
| リフォーム履歴 |
- |
| リノベーション履歴 |
- |
| 瑕疵保証 |
- |
| 瑕疵保険 |
- |
| 評価・証明書 |
- |
| 備考 |
主要採光面:南向き
法令等制限:景観法 文化財保護法
用途地域:工業地域
■南向きバルコニー■カウンターキッチン
システムキッチン カウンターキッチン グリル シャワー 洗髪洗面化粧台 洗浄便座 洗濯機置場 バストイレ別 追焚き給湯 和室 フローリング クッションフロア 浴室乾燥機 収納 各室収納スペース バルコニー オートロック TVインターホン エレベーター 宅配ボックス 駐輪場 外観タイル張り 陽当り良好 バイク置場 管理人日勤 高台
|
| エネルギー消費性能 |
- |
| 断熱性能 |
- |
| 目安光熱費 |
- |
| バス・トイレ |
浴室乾燥機、追焚機能、温水洗浄便座 |
| キッチン |
カウンターキッチン、システムキッチン、グリル |
| 設備・サービス |
バイク置き場、収納スペース、オートロック、モニター付インターホン、洗濯機置場、クッションフロア、都市ガス、駐輪場 |
| その他 |
宅配BOX、エレベーター |
| 条件等 |
- |
現況 |
所有者居住中 |
| 引渡可能時期 |
相談 |
物件番号 |
1064352198 |
| 情報公開日 |
2025年10月27日 |
次回更新予定日 |
2025年11月10日 |
| ケータイ用バーコード |
- スマートフォンでこの物件を見る
- スマートフォンからもこの物件をご覧になれます。
|
※「-」と表示されている項目については、情報提供会社にご確認ください。
ここから簡単にお問い合わせをすることができます。
(SSLでの暗号化での送信を希望されるお客さまは
こちら
よりお問い合わせください)
お問い合わせを行う前に
「個人情報の取り扱いについて」を必ずお読みください。
「個人情報の取り扱いについて」に同意いただいた場合は「上記にご同意の上 確認画面へ進む」のボタンをクリックしてください。
個人情報の取り扱いについて
皆さまが送付された個人情報はアットホーム(株)のサーバを経由し、お問い合わせ先の不動産会社にメールまたはFAXにて転送されるためアットホーム(株)にも保管されます。アットホーム(株)で保管された個人情報の取り扱いについては、【こちら】をご覧ください。
また、本画面でご記入いただいた個人情報は、お問い合わせ先の不動産会社でも保管します。 お問い合わせ先の不動産会社が保管する個人情報の取り扱いについては、不動産会社に直接お問い合わせください。
国土交通大臣免許(9)第3744号 |
|---|
- 交通:
- 小田急小田原線/海老名駅 徒歩3分
- 神奈川県海老名市中央3丁目1-5
- TEL:
- 0120-50-9213
- FAX:
- 046-234-9217
- 所属団体:
- (公社)神奈川県宅地建物取引業協会会員(公社)首都圏不動産公正取引協議会加盟
取引態様:専任媒介  - 00781618
|
- スマートフォンで
この不動産会社を見る

|
- 提携サイト等より掲載されている物件情報につきましては、不動産会社詳細情報にリンクされていないものがあります。
- 物件に関するお問合せは、物件詳細ページの「情報提供会社」に表示されている不動産会社へ直接お願いいたします。
- 間取図は、現況を優先させていただきます。
- 映像は物件の一部を撮影したものです。物件の契約にあたっての最終判断はご自身の判断に基づいて行ってください。
- 仲介手数料について

アットホームは物件情報の適正化に努めております。
内容に誤りがある場合にはこちらへご連絡ください。