熊本県熊本市中央区新町3丁目(蔚山町駅)の中古マンション・新築マンション・分譲マンション:物件詳細
交通 所在地 |
駅徒歩 |
価格 |
構造 階建/階 |
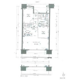
間取り 専有面積 |
物件種目 築年月 |
|
熊本市電上熊本線/蔚山町
熊本県熊本市中央区新町3丁目
|
4分
|
3,380万円
|
RC
12階建 / 11階
|
2LDK
60.85m²
|
中古マンション
2022年1月(築3年10ヶ月)
|
|
ペット相談、南向き、バス1坪以上、管理人常駐
|
|
間取図
|
外観
|
その他の画像
|
| 交通 | 熊本市電上熊本線 蔚山町駅 徒歩4分 |
|---|
| その他の交通 | 熊本市電上熊本線 段山町駅 徒歩4分 熊本市電上熊本線 新町駅 徒歩9分 |
| 所在地 |
熊本県熊本市中央区新町3丁目
|
| 物件種目 |
中古マンション |
| 価格 |
3,380万円 |
平米単価 |
55.55万円 |
| 管理費等 |
10,300円 |
修繕積立金 |
4,260円 |
| 借地期間・地代(月額) |
- |
権利金 |
- |
| 敷金または保証金 |
- / - |
維持費等 |
- |
| その他一時金 |
- |
|
|
| 間取り |
2LDK(LDK13.6帖 洋室6.5帖 洋室5帖) |
専有面積 |
60.85m²(壁芯) |
| 階建 / 階 |
12階建 / 11階 |
バルコニー |
11.47m² |
| 築年月 |
2022年1月(築3年10ヶ月)
|
建物構造 |
RC |
| 駐車場 |
近有 15,400円/月 |
総戸数 |
44戸 |
| 駐輪場 |
有 300円/月 |
バイク置き場 |
有 3,000円/月 |
| ペット |
小型犬可 |
|
|
| 土地権利 |
所有権 |
敷地面積 |
- |
| 管理形態/管理員の勤務形態 |
全部委託/常駐 |
国土法届出 |
- |
| アピールポイント |
「【新町ライフを満喫!レーベン熊本新町EMBRACE】築浅2022年築!新生活を気持ちよくスタートできる、高グレードマンションが登場しました。全戸南向きで陽当たり良好、広々としたリビングには明るい光が降り注ぎます。浴室乾燥機や宅配ボックスなど、現代のライフスタイルに合わせた充実の設備が魅力。収納も豊富で、ご家族皆様の荷物もしっかり収まります。駅近で生活至便なロケーションで、快適な毎日を手に入れませんか? |
| 建物名・部屋番号 |
レーベン熊本新町EMBRACE |
| リフォーム履歴 |
- |
| リノベーション履歴 |
- |
| 瑕疵保証 |
- |
| 瑕疵保険 |
- |
| 評価・証明書 |
- |
| 備考 |
主要採光面:南向き
用途地域:商業地域
大切なペットと一緒に暮らせます!中央区新町というロケーションは、日常の買物や教育施設も近く利便性と住みやすさを両立しています。
|
| エネルギー消費性能 |
- |
| 断熱性能 |
- |
| 目安光熱費 |
- |
| バス・トイレ |
追焚機能、シャワー付洗面化粧台、温水洗浄便座 |
| キッチン |
カウンターキッチン、システムキッチン |
| 設備・サービス |
モニター付オートロック、バイク置き場、室内洗濯機置場、クローゼット、防犯カメラ、全居室フローリング、都市ガス、エアコン、駐輪場、照明器具、インターネット対応 |
| その他 |
宅配BOX、エレベーター2基以上、エレベーター |
| 条件等 |
- |
現況 |
空家 |
| 引渡可能時期 |
相談 |
物件番号 |
1068700098 |
| 情報公開日 |
2025年8月2日 |
次回更新予定日 |
2025年10月31日 |
| ケータイ用バーコード |
- スマートフォンでこの物件を見る
- スマートフォンからもこの物件をご覧になれます。
|
※「-」と表示されている項目については、情報提供会社にご確認ください。
| 周辺施設 |
くまもと森都心プラザ図書館 |
| 距離 |
1824m |
ここから簡単にお問い合わせをすることができます。
(SSLでの暗号化での送信を希望されるお客さまは
こちら
よりお問い合わせください)
お問い合わせを行う前に
「個人情報の取り扱いについて」を必ずお読みください。
「個人情報の取り扱いについて」に同意いただいた場合は「上記にご同意の上 確認画面へ進む」のボタンをクリックしてください。
個人情報の取り扱いについて
皆さまが送付された個人情報はアットホーム(株)のサーバを経由し、お問い合わせ先の不動産会社にメールまたはFAXにて転送されるためアットホーム(株)にも保管されます。アットホーム(株)で保管された個人情報の取り扱いについては、【こちら】をご覧ください。
また、本画面でご記入いただいた個人情報は、お問い合わせ先の不動産会社でも保管します。 お問い合わせ先の不動産会社が保管する個人情報の取り扱いについては、不動産会社に直接お問い合わせください。
国土交通大臣免許(1)第10207号 |
|---|
- 交通:
- 熊本市電健軍線/水前寺公園駅 徒歩2分
- 熊本県熊本市中央区水前寺公園7-43
- TEL:
- 096-385-6555
- FAX:
- 096-284-5544
- 所属団体:
- (公社)熊本県宅地建物取引業協会会員(一社)九州不動産公正取引協議会加盟
取引態様:専任媒介  - 80502188
|
- スマートフォンで
この不動産会社を見る

|
- 提携サイト等より掲載されている物件情報につきましては、不動産会社詳細情報にリンクされていないものがあります。
- 物件に関するお問合せは、物件詳細ページの「情報提供会社」に表示されている不動産会社へ直接お願いいたします。
- 間取図は、現況を優先させていただきます。
- 映像は物件の一部を撮影したものです。物件の契約にあたっての最終判断はご自身の判断に基づいて行ってください。
- 仲介手数料について

アットホームは物件情報の適正化に努めております。
内容に誤りがある場合にはこちらへご連絡ください。