神奈川県小田原市栄町2丁目(小田原駅)の中古マンション・新築マンション・分譲マンション:物件詳細
交通 所在地 |
駅徒歩 |
価格 |
構造 階建/階 |
間取り 専有面積 |
物件種目 築年月 |
|
JR東海道本線/小田原
神奈川県小田原市栄町2丁目
|
8分
|
3,850万円
|
SRC
12階建 / 4階
|
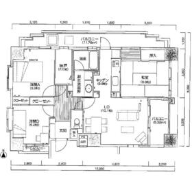
3LDK
72.59m²
|
中古マンション
2000年5月(築25年10ヶ月)
|
|
ペット相談、角部屋、3面採光、管理人日勤
|
|
間取図
|
外観
|
<
その他の画像
>
|
| 交通 | JR東海道本線 小田原駅 徒歩8分 |
|---|
| その他の交通 | 東海道新幹線 小田原駅 徒歩8分 小田急小田原線 小田原駅 徒歩8分 |
| 所在地 |
神奈川県小田原市栄町2丁目
|
| 物件種目 |
中古マンション |
| 価格 |
3,850万円 |
平米単価 |
53.04万円 |
| 管理費等 |
13,080円 |
修繕積立金 |
15,240円 |
| 借地期間・地代(月額) |
- |
権利金 |
- |
| 敷金または保証金 |
- / - |
維持費等 |
- |
| その他一時金 |
- |
|
|
| 間取り |
3LDK |
専有面積 |
72.59m²(壁芯) |
| 階建 / 階 |
12階建 / 4階 |
バルコニー |
11.76m² |
| 築年月 |
2000年5月(築25年10ヶ月)
|
建物構造 |
SRC |
| 駐車場 |
無 |
総戸数 |
30戸 |
| 駐輪場 |
有 200円/月 |
バイク置き場 |
- |
| ペット |
小型犬可・ 猫可 |
|
|
| 土地権利 |
所有権 |
敷地面積 |
- |
| 管理形態/管理員の勤務形態 |
全部委託/日勤 |
国土法届出 |
- |
| アピールポイント |
4面採光の明るい角部屋でペットと快適に暮らせます。南東向きバルコニーで日当たり・風通し良好。鉄骨鉄筋コンクリート造で安心の耐震性。詳細や見学をご希望の方はお気軽にお問い合わせください。最新の物件情報は当社HPへ! |
| 建物名・部屋番号 |
共立栄町マンション |
| リフォーム履歴 |
- |
| リノベーション履歴 |
- |
| 瑕疵保証 |
- |
| 瑕疵保険 |
- |
| 評価・証明書 |
- |
| 備考 |
主要採光面:南東向き
用途地域:商業地域
小田原駅徒歩約8分!鉄骨鉄筋コンクリート造、耐震性・耐久性に優れ安心4面採光の明るい角部屋、風通し良好で快適生活ペットと快適に暮らせます♪
|
| エネルギー消費性能 |
- |
| 断熱性能 |
- |
| 目安光熱費 |
- |
| バス・トイレ |
温水洗浄便座 |
| キッチン |
システムキッチン、3口以上コンロ |
| 設備・サービス |
全居室収納、三面バルコニー、クローゼット、都市ガス、駐輪場 |
| その他 |
宅配BOX、エレベーター |
| 条件等 |
- |
現況 |
空家 |
| 引渡可能時期 |
相談 |
物件番号 |
1069667798 |
| 情報公開日 |
2025年9月21日 |
次回更新予定日 |
2026年2月16日 |
| ケータイ用バーコード |
- スマートフォンでこの物件を見る
- スマートフォンからもこの物件をご覧になれます。
|
※「-」と表示されている項目については、情報提供会社にご確認ください。
| 周辺施設 |
小田原市立新玉小学校 |
| 距離 |
508m |
写真を見る |
| 周辺施設 |
小田原市立城山中学校 |
| 距離 |
1354m |
写真を見る |
| 周辺施設 |
小田原郵便局 |
| 距離 |
380m |
写真を見る |
| 周辺施設 |
小田原駅東口図書館 |
| 距離 |
564m |
写真を見る |
| 周辺施設 |
小田原城址公園 |
| 距離 |
976m |
写真を見る |
| 周辺施設 |
医療法人小林病院 |
| 距離 |
281m |
写真を見る |
ここから簡単にお問い合わせをすることができます。
(SSLでの暗号化での送信を希望されるお客さまは
こちら
よりお問い合わせください)
お問い合わせを行う前に
「個人情報の取り扱いについて」を必ずお読みください。
「個人情報の取り扱いについて」に同意いただいた場合は「上記にご同意の上 確認画面へ進む」のボタンをクリックしてください。
個人情報の取り扱いについて
皆さまが送付された個人情報はアットホーム(株)のサーバを経由し、お問い合わせ先の不動産会社にメールまたはFAXにて転送されるためアットホーム(株)にも保管されます。アットホーム(株)で保管された個人情報の取り扱いについては、【こちら】をご覧ください。
また、本画面でご記入いただいた個人情報は、お問い合わせ先の不動産会社でも保管します。 お問い合わせ先の不動産会社が保管する個人情報の取り扱いについては、不動産会社に直接お問い合わせください。
神奈川県知事免許(4)第27032号 |
|---|
- 交通:
- JR東海道本線/小田原駅 徒歩4分
- 神奈川県小田原市栄町1丁目14-12
- TEL:
- 0465-23-3939
- FAX:
- 0465-23-4949
- 所属団体:
- (公社)神奈川県宅地建物取引業協会会員(公社)首都圏不動産公正取引協議会加盟
取引態様:一般媒介  - 00100891
|
- スマートフォンで
この不動産会社を見る

|
- 提携サイト等より掲載されている物件情報につきましては、不動産会社詳細情報にリンクされていないものがあります。
- 物件に関するお問合せは、物件詳細ページの「情報提供会社」に表示されている不動産会社へ直接お願いいたします。
- 間取図は、現況を優先させていただきます。
- 映像は物件の一部を撮影したものです。物件の契約にあたっての最終判断はご自身の判断に基づいて行ってください。
- 仲介手数料について

アットホームは物件情報の適正化に努めております。
内容に誤りがある場合にはこちらへご連絡ください。