東京都渋谷区代々木5丁目(代々木八幡駅)の中古マンション・新築マンション・分譲マンション:物件詳細
交通 所在地 |
駅徒歩 |
価格 |
構造 階建/階 |
間取り 専有面積 |
物件種目 築年月 |
|
小田急小田原線/代々木八幡
東京都渋谷区代々木5丁目
|
7分
|
4,999万円
|
鉄骨造
5階建 / 4階
|
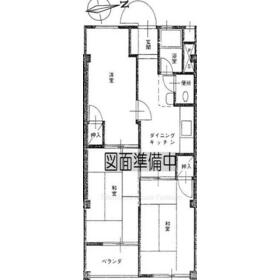
2LDK
50.22m²
|
中古マンション
1969年3月(築56年10ヶ月)
|
|
ペット相談、事務所使用可、閑静な住宅街
|
|
間取図
現在間取り作成中
|
外観
総戸数:39戸
|
その他の画像
|
| 交通 | 小田急小田原線 代々木八幡駅 徒歩7分 |
|---|
| その他の交通 | 東京メトロ千代田線 代々木公園駅 徒歩9分 京王線 初台駅 徒歩14分 |
| 所在地 |
東京都渋谷区代々木5丁目
|
| 物件種目 |
中古マンション |
| 価格 |
4,999万円 |
平米単価 |
99.55万円 |
| 管理費等 |
- |
修繕積立金 |
15,000円 |
| 借地期間・地代(月額) |
- |
権利金 |
- |
| 敷金または保証金 |
- / - |
維持費等 |
- |
| その他一時金 |
- |
|
|
| 間取り |
2LDK |
専有面積 |
50.22m²(壁芯) |
| 階建 / 階 |
5階建 / 4階 |
バルコニー |
11.38m² |
| 築年月 |
1969年3月(築56年10ヶ月)
|
建物構造 |
鉄骨造 |
| 駐車場 |
空無 |
総戸数 |
61戸 |
| 駐輪場 |
有 500円/月 |
バイク置き場 |
無 |
| ペット |
相談 |
|
|
| 土地権利 |
所有権 |
敷地面積 |
- |
| 管理形態/管理員の勤務形態 |
自主管理/不在 |
国土法届出 |
- |
| アピールポイント |
オススメポイント
〇閑静な住宅街
〇複数駅・複数路線利用可能
〇ペット飼育可能※細則有
〇事務所利用可能※理事長の承認が必要
〇日当たり良好
〇新規内装デザインリフォーム(2025年10月20日完了予定) |
| 建物名・部屋番号 |
代々木公園まで約8分代々木第二コーポラス |
| リフォーム履歴 |
■水回り:2025年10月 キッチン、浴室、トイレ、洗面所 ■内装:2025年10月 内装全面(床・壁・天井・建具) ※実施年月は最も古い履歴を表示 |
| リノベーション履歴 |
- |
| 瑕疵保証 |
- |
| 瑕疵保険 |
- |
| 評価・証明書 |
- |
| 備考 |
主要採光面:東向き
用途地域:2種低層、準住居
|
| エネルギー消費性能 |
- |
| 断熱性能 |
- |
| 目安光熱費 |
- |
| バス・トイレ |
TV付浴室、浴室乾燥機、追焚機能、温水洗浄便座 |
| キッチン |
システムキッチン、独立型キッチン、浄水器、3口以上コンロ |
| 設備・サービス |
全居室収納、収納スペース、モニター付インターホン、全居室フローリング、都市ガス、駐輪場、人感センサー付照明、火災警報器(報知機) |
| その他 |
- |
| 条件等 |
- |
現況 |
空家 |
| 引渡可能時期 |
相談 |
物件番号 |
1077809694 |
| 情報公開日 |
2025年12月5日 |
次回更新予定日 |
2025年12月19日 |
| ケータイ用バーコード |
- スマートフォンでこの物件を見る
- スマートフォンからもこの物件をご覧になれます。
|
※「-」と表示されている項目については、情報提供会社にご確認ください。
ここから簡単にお問い合わせをすることができます。
(SSLでの暗号化での送信を希望されるお客さまは
こちら
よりお問い合わせください)
お問い合わせを行う前に
「個人情報の取り扱いについて」を必ずお読みください。
「個人情報の取り扱いについて」に同意いただいた場合は「上記にご同意の上 確認画面へ進む」のボタンをクリックしてください。
個人情報の取り扱いについて
皆さまが送付された個人情報はアットホーム(株)のサーバを経由し、お問い合わせ先の不動産会社にメールまたはFAXにて転送されるためアットホーム(株)にも保管されます。アットホーム(株)で保管された個人情報の取り扱いについては、【こちら】をご覧ください。
また、本画面でご記入いただいた個人情報は、お問い合わせ先の不動産会社でも保管します。 お問い合わせ先の不動産会社が保管する個人情報の取り扱いについては、不動産会社に直接お問い合わせください。
国土交通大臣免許(4)第7450号 |
|---|
- 交通:
- 東急田園都市線/桜新町駅 徒歩1分
- 東京都世田谷区桜新町1丁目12-13
- TEL:
- 03-3420-3311
- FAX:
- 03-3420-9024
- 所属団体:
- (公社)東京都宅地建物取引業協会会員不動産公正取引協議会加盟
取引態様:媒介  - 00620271
|
- スマートフォンで
この不動産会社を見る

|
- 提携サイト等より掲載されている物件情報につきましては、不動産会社詳細情報にリンクされていないものがあります。
- 物件に関するお問合せは、物件詳細ページの「情報提供会社」に表示されている不動産会社へ直接お願いいたします。
- 間取図は、現況を優先させていただきます。
- 映像は物件の一部を撮影したものです。物件の契約にあたっての最終判断はご自身の判断に基づいて行ってください。
- 仲介手数料について

アットホームは物件情報の適正化に努めております。
内容に誤りがある場合にはこちらへご連絡ください。