神奈川県藤沢市辻堂新町1丁目(辻堂駅)の中古マンション・新築マンション・分譲マンション:物件詳細
交通 所在地 |
駅徒歩 |
価格 |
構造 階建/階 |
間取り 専有面積 |
物件種目 築年月 |
|
JR東海道本線/辻堂
神奈川県藤沢市辻堂新町1丁目
|
5分
|
5,480万円
|
RC
15階建 / 4階
|
2LDK
66.01m²
|
中古マンション
2020年9月(築5年3ヶ月)
|
|
ペット相談、常時ゴミ出し可能、角部屋、南向き、2面採光、管理人日勤
|
|
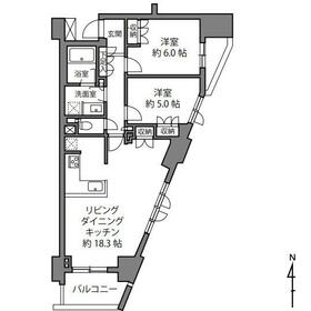
間取図
|
外観
外観が魅力の高層マンションです
|
<
その他の画像
>
|
| 交通 | JR東海道本線 辻堂駅 徒歩5分 |
|---|
| その他の交通 | 湘南新宿ライン(前橋〜小田原) 辻堂駅 徒歩5分 小田急江ノ島線 本鵠沼駅 徒歩39分 |
| 所在地 |
神奈川県藤沢市辻堂新町1丁目
|
| 物件種目 |
中古マンション |
| 価格 |
5,480万円 |
平米単価 |
83.02万円 |
| 管理費等 |
18,100円 |
修繕積立金 |
6,610円 |
| 借地期間・地代(月額) |
- |
権利金 |
- |
| 敷金または保証金 |
- / - |
維持費等 |
- |
| その他一時金 |
なし |
|
|
| 間取り |
2LDK(LDK18.3洋室6洋室5) |
専有面積 |
66.01m²(壁芯) |
| 階建 / 階 |
15階建 / 4階 |
バルコニー |
5.83m² |
| 築年月 |
2020年9月(築5年3ヶ月)
|
建物構造 |
RC |
| 駐車場 |
有 21,000円/月 |
総戸数 |
55戸 |
| 駐輪場 |
有 400円/月 |
バイク置き場 |
有 3,000円/月 |
| ペット |
相談 |
|
|
| 土地権利 |
所有権 |
敷地面積 |
- |
| 管理形態/管理員の勤務形態 |
全部委託/日勤 |
国土法届出 |
- |
| アピールポイント |
◆みどころ◆
当日は実際に物件をご覧いただきながら説明をさせていただきます。住環境をリアルにご体感いただけます♪
また、購入後の具体的なお支払いについてや、住宅ローンについてのご相談もお受けしておりますので、どうぞご相談ください!
その他気になる点などもこの機会にぜひ聞いていただければと思います♪
◆見学の所要時間について◆
じっくりとご見学されたい方、周辺の環境なども併せてご案内希望の方はもちろん、
お時間が無い方、まずは見てみたい…という方も大歓迎♪
間取りと設備の説明で30分ほどでご案内もできますので、お気軽にご連絡ください!
|
| 建物名・部屋番号 |
グレーシア湘南辻堂 |
| リフォーム履歴 |
- |
| リノベーション履歴 |
- |
| 瑕疵保証 |
- |
| 瑕疵保険 |
- |
| 評価・証明書 |
- |
| 備考 |
主要採光面:南向き
施工会社:株式会社川村工営
用途地域:準工業
情報と現況に相違がある場合は、現況を優先とさせていただきます。
|
| エネルギー消費性能 |
- |
| 断熱性能 |
- |
| 目安光熱費 |
- |
| バス・トイレ |
浴室乾燥機、追焚機能 |
| キッチン |
カウンターキッチン、システムキッチン、食器洗浄乾燥機、ディスポーザー、3口以上コンロ |
| 設備・サービス |
全居室収納、床暖房、バイク置き場、収納スペース、室内洗濯機置場、クローゼット、オートロック、モニター付インターホン、駐輪場 |
| その他 |
宅配BOX、エレベーター |
| 条件等 |
- |
現況 |
所有者居住中 |
| 引渡可能時期 |
相談 |
物件番号 |
1081068889 |
| 情報公開日 |
2025年8月4日 |
次回更新予定日 |
2025年11月16日 |
| ケータイ用バーコード |
- スマートフォンでこの物件を見る
- スマートフォンからもこの物件をご覧になれます。
|
※「-」と表示されている項目については、情報提供会社にご確認ください。
| 周辺施設 |
テラスモール湘南 |
| 距離 |
773m |
写真を見る |
| 周辺施設 |
ユーコープミアクチーナ |
| 距離 |
518m |
写真を見る |
| 周辺施設 |
オーケーストア辻堂羽鳥店 |
| 距離 |
879m |
写真を見る |
| 周辺施設 |
セブンイレブン藤沢辻堂北口大通り店 |
| 距離 |
559m |
写真を見る |
| 周辺施設 |
ハックドラッグ辻堂羽鳥店 |
| 距離 |
689m |
写真を見る |
| 周辺施設 |
医療法人徳洲会湘南藤沢徳洲会病院 |
| 距離 |
991m |
写真を見る |
| 周辺施設 |
神台公園(シークロス公園) |
| 距離 |
712m |
写真を見る |
ここから簡単にお問い合わせをすることができます。
(SSLでの暗号化での送信を希望されるお客さまは
こちら
よりお問い合わせください)
お問い合わせを行う前に
「個人情報の取り扱いについて」を必ずお読みください。
「個人情報の取り扱いについて」に同意いただいた場合は「上記にご同意の上 確認画面へ進む」のボタンをクリックしてください。
個人情報の取り扱いについて
皆さまが送付された個人情報はアットホーム(株)のサーバを経由し、お問い合わせ先の不動産会社にメールまたはFAXにて転送されるためアットホーム(株)にも保管されます。アットホーム(株)で保管された個人情報の取り扱いについては、【こちら】をご覧ください。
また、本画面でご記入いただいた個人情報は、お問い合わせ先の不動産会社でも保管します。 お問い合わせ先の不動産会社が保管する個人情報の取り扱いについては、不動産会社に直接お問い合わせください。
神奈川県知事免許(5)第25536号 |
|---|
- 交通:
- 小田急江ノ島線/湘南台駅
- 神奈川県藤沢市湘南台2丁目5-8 Nビル1F
- TEL:
- 0466-41-4411
- FAX:
- 0466-41-4433
- 所属団体:
- (公社)神奈川県宅地建物取引業協会会員(公社)首都圏不動産公正取引協議会加盟
取引態様:媒介  - 99000027
|
- スマートフォンで
この不動産会社を見る

|
- 提携サイト等より掲載されている物件情報につきましては、不動産会社詳細情報にリンクされていないものがあります。
- 物件に関するお問合せは、物件詳細ページの「情報提供会社」に表示されている不動産会社へ直接お願いいたします。
- 間取図は、現況を優先させていただきます。
- 映像は物件の一部を撮影したものです。物件の契約にあたっての最終判断はご自身の判断に基づいて行ってください。
- 仲介手数料について

アットホームは物件情報の適正化に努めております。
内容に誤りがある場合にはこちらへご連絡ください。