神奈川県藤沢市鵠沼海岸5丁目(鵠沼海岸駅)の中古マンション・新築マンション・分譲マンション:物件詳細
交通 所在地 |
駅徒歩 |
価格 |
構造 階建/階 |
間取り 専有面積 |
物件種目 築年月 |
|
小田急江ノ島線/鵠沼海岸
神奈川県藤沢市鵠沼海岸5丁目
|
12分
|
11,700万円
|
RC
8階建 / 6階
|
2LDK
81.01m²
|
中古マンション
2022年6月(築3年6ヶ月)
|
|
ペット相談、南向き、管理人日勤
|
|
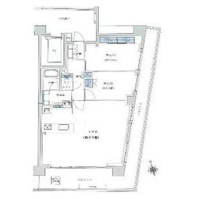
間取図
|
|
その他の画像
|
| 交通 | 小田急江ノ島線 鵠沼海岸駅 徒歩12分 |
| 所在地 |
神奈川県藤沢市鵠沼海岸5丁目
|
| 物件種目 |
中古マンション |
| 価格 |
11,700万円 |
平米単価 |
144.43万円 |
| 管理費等 |
19,300円 |
修繕積立金 |
6,800円 |
| 借地期間・地代(月額) |
- |
権利金 |
- |
| 敷金または保証金 |
- / - |
維持費等 |
- |
| その他一時金 |
なし |
|
|
| 間取り |
2LDK(LDK24洋室7洋室6) |
専有面積 |
81.01m²(壁芯) |
| 階建 / 階 |
8階建 / 6階 |
バルコニー |
30.62m² |
| 築年月 |
2022年6月(築3年6ヶ月)
|
建物構造 |
RC |
| 駐車場 |
空無 |
総戸数 |
51戸 |
| 駐輪場 |
- |
バイク置き場 |
- |
| ペット |
相談 |
|
|
| 土地権利 |
所有権 |
敷地面積 |
- |
| 管理形態/管理員の勤務形態 |
全部委託/日勤 |
国土法届出 |
国土法事前確認済 |
| アピールポイント |
商業施設等がたくさん点在するエリアです!海が身近な暮らしでリゾート気分!一部建築家”隈研吾”氏デザインの壁紙など、こだわりの室内です! |
| 建物名・部屋番号 |
レーベン鵠沼海岸BLUENOVA |
| リフォーム履歴 |
- |
| リノベーション履歴 |
- |
| 瑕疵保証 |
- |
| 瑕疵保険 |
- |
| 評価・証明書 |
- |
| 備考 |
主要採光面:南向き
施工会社:新日本建設株式会社
用途地域:2種中高、1種低層
ご満足・ご納得頂ける物件探しを、親身に精一杯お手伝いさせて頂きます。お気軽にお立ち寄りくださいませ。センチュリー21富士ハウジング藤沢店は藤沢駅北口徒歩3分、提携駐車場がございます。
|
| エネルギー消費性能 |
- |
| 断熱性能 |
- |
| 目安光熱費 |
- |
| バス・トイレ |
- |
| キッチン |
カウンターキッチン、ディスポーザー |
| 設備・サービス |
床暖房、収納スペース、クローゼット、都市ガス |
| その他 |
エレベーター |
| 条件等 |
- |
現況 |
所有者居住中 |
| 引渡可能時期 |
相談 |
物件番号 |
1082093889 |
| 情報公開日 |
2025年10月2日 |
次回更新予定日 |
2025年11月16日 |
| ケータイ用バーコード |
- スマートフォンでこの物件を見る
- スマートフォンからもこの物件をご覧になれます。
|
※「-」と表示されている項目については、情報提供会社にご確認ください。
| 周辺施設 |
小田急鵠沼海岸駅 |
| 距離 |
970m |
写真を見る |
| 周辺施設 |
藤沢市立鵠南小学校 |
| 距離 |
647m |
写真を見る |
| 周辺施設 |
藤沢市立湘洋中学校 |
| 距離 |
872m |
写真を見る |
| 周辺施設 |
藤沢市立浜見保育園 |
| 距離 |
722m |
写真を見る |
| 周辺施設 |
Fuji鵠沼店 |
| 距離 |
219m |
写真を見る |
| 周辺施設 |
セブンイレブン藤沢鵠沼海岸5丁目店 |
| 距離 |
264m |
写真を見る |
| 周辺施設 |
クリエイトエス・ディー辻堂東海岸店 |
| 距離 |
1015m |
写真を見る |
| 周辺施設 |
鵠沼海浜公園 |
| 距離 |
1073m |
写真を見る |
ここから簡単にお問い合わせをすることができます。
(SSLでの暗号化での送信を希望されるお客さまは
こちら
よりお問い合わせください)
お問い合わせを行う前に
「個人情報の取り扱いについて」を必ずお読みください。
「個人情報の取り扱いについて」に同意いただいた場合は「上記にご同意の上 確認画面へ進む」のボタンをクリックしてください。
個人情報の取り扱いについて
皆さまが送付された個人情報はアットホーム(株)のサーバを経由し、お問い合わせ先の不動産会社にメールまたはFAXにて転送されるためアットホーム(株)にも保管されます。アットホーム(株)で保管された個人情報の取り扱いについては、【こちら】をご覧ください。
また、本画面でご記入いただいた個人情報は、お問い合わせ先の不動産会社でも保管します。 お問い合わせ先の不動産会社が保管する個人情報の取り扱いについては、不動産会社に直接お問い合わせください。
神奈川県知事免許(2)第29477号 |
|---|
- 交通:
- JR東海道本線/藤沢駅
- 神奈川県藤沢市藤沢484-24
- TEL:
- 0466-50-1000
- FAX:
- 0466-50-1001
- 所属団体:
- (公社)神奈川県宅地建物取引業協会会員(公社)首都圏不動産公正取引協議会加盟
取引態様:媒介  - 99000791
|
- スマートフォンで
この不動産会社を見る

|
- 提携サイト等より掲載されている物件情報につきましては、不動産会社詳細情報にリンクされていないものがあります。
- 物件に関するお問合せは、物件詳細ページの「情報提供会社」に表示されている不動産会社へ直接お願いいたします。
- 間取図は、現況を優先させていただきます。
- 映像は物件の一部を撮影したものです。物件の契約にあたっての最終判断はご自身の判断に基づいて行ってください。
- 仲介手数料について

アットホームは物件情報の適正化に努めております。
内容に誤りがある場合にはこちらへご連絡ください。