神奈川県藤沢市鵠沼海岸5丁目(鵠沼海岸駅)の中古マンション・新築マンション・分譲マンション:物件詳細
交通 所在地 |
駅徒歩 |
価格 |
構造 階建/階 |
間取り 専有面積 |
物件種目 築年月 |
|
小田急江ノ島線/鵠沼海岸
神奈川県藤沢市鵠沼海岸5丁目
|
12分
|
11,700万円
|
RC
8階建 / 6階
|
2LDK
81.01m²
|
中古マンション
2022年6月(築3年6ヶ月)
|
|
ペット相談、常時ゴミ出し可能、角部屋、南向き、管理人日勤
|
|
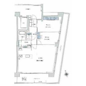
間取図
間取図
|
外観
淡麗な気品と洗練美を表現しながらも、端正なフォルムでスタイリッシュなデザイン。周りの地に溶け込みな…
|
<
その他の画像
>
|
| 交通 | 小田急江ノ島線 鵠沼海岸駅 徒歩12分 |
| 所在地 |
神奈川県藤沢市鵠沼海岸5丁目
|
| 物件種目 |
中古マンション |
| 価格 |
11,700万円 |
平米単価 |
144.43万円 |
| 管理費等 |
19,300円 |
修繕積立金 |
6,800円 |
| 借地期間・地代(月額) |
- |
権利金 |
- |
| 敷金または保証金 |
- / - |
維持費等 |
- |
| その他一時金 |
なし |
|
|
| 間取り |
2LDK(LDK25.0帖) |
専有面積 |
81.01m²(壁芯) |
| 階建 / 階 |
8階建 / 6階 |
バルコニー |
30.62m² |
| 築年月 |
2022年6月(築3年6ヶ月)
|
建物構造 |
RC |
| 駐車場 |
空無 |
総戸数 |
51戸 |
| 駐輪場 |
有 |
バイク置き場 |
有 |
| ペット |
相談 |
|
|
| 土地権利 |
所有権 |
敷地面積 |
- |
| 管理形態/管理員の勤務形態 |
全部委託/日勤 |
国土法届出 |
- |
| アピールポイント |
◇晴れた日にはバルコニーから富士山が望めます◇
◆LDK広々約25帖
◆2022年1月築の築浅×南向き住戸!
◆駅前の商店街など住環境も良好♪
◎生ごみ処理ができるディスポーザー
◎寒い冬に足元から温まる床暖房付き
◎ペットと一緒に暮らせます。(細則有)
◎家具は有償ですがお譲りが可能♪
◎壁紙の一部は建築家 隈研吾氏デザイン |
| 建物名・部屋番号 |
レーベン鵠沼海岸BLUENOVA |
| リフォーム履歴 |
- |
| リノベーション履歴 |
- |
| 瑕疵保証 |
- |
| 瑕疵保険 |
- |
| 評価・証明書 |
- |
| 備考 |
主要採光面:南向き
施工会社:新日本建設(株)
用途地域:2種中高
|
| エネルギー消費性能 |
- |
| 断熱性能 |
- |
| 目安光熱費 |
- |
| バス・トイレ |
オートバス |
| キッチン |
システムキッチン、ディスポーザー、3口以上コンロ、グリル |
| 設備・サービス |
床暖房、バイク置き場、収納スペース、室内洗濯機置場、クローゼット、オートロック、防犯カメラ、給湯、ワイドバルコニー、二面バルコニー、駐輪場、インターネット対応 |
| その他 |
宅配BOX、エレベーター |
| 条件等 |
- |
現況 |
所有者居住中 |
| 引渡可能時期 |
相談 |
物件番号 |
1085116197 |
| 情報公開日 |
2025年9月18日 |
次回更新予定日 |
2025年11月2日 |
| ケータイ用バーコード |
- スマートフォンでこの物件を見る
- スマートフォンからもこの物件をご覧になれます。
|
※「-」と表示されている項目については、情報提供会社にご確認ください。
| 周辺施設 |
Fuji鵠沼店 |
| 距離 |
170m |
写真を見る |
| 周辺施設 |
セブンイレブン藤沢鵠沼海岸5丁目店 |
| 距離 |
1m |
写真を見る |
| 周辺施設 |
クリエイトエス・ディー藤沢鵠沼海岸店 |
| 距離 |
50m |
写真を見る |
| 周辺施設 |
藤沢市立鵠南小学校 |
| 距離 |
360m |
写真を見る |
| 周辺施設 |
藤沢市立湘洋中学校 |
| 距離 |
730m |
写真を見る |
| 周辺施設 |
藤沢市立浜見保育園 |
| 距離 |
420m |
写真を見る |
| 周辺施設 |
医療法人社団正拓会湘南太平台病院 |
| 距離 |
1790m |
写真を見る |
| 周辺施設 |
鵠沼海浜公園スケートパーク |
| 距離 |
840m |
写真を見る |
ここから簡単にお問い合わせをすることができます。
(SSLでの暗号化での送信を希望されるお客さまは
こちら
よりお問い合わせください)
お問い合わせを行う前に
「個人情報の取り扱いについて」を必ずお読みください。
「個人情報の取り扱いについて」に同意いただいた場合は「上記にご同意の上 確認画面へ進む」のボタンをクリックしてください。
個人情報の取り扱いについて
皆さまが送付された個人情報はアットホーム(株)のサーバを経由し、お問い合わせ先の不動産会社にメールまたはFAXにて転送されるためアットホーム(株)にも保管されます。アットホーム(株)で保管された個人情報の取り扱いについては、【こちら】をご覧ください。
また、本画面でご記入いただいた個人情報は、お問い合わせ先の不動産会社でも保管します。 お問い合わせ先の不動産会社が保管する個人情報の取り扱いについては、不動産会社に直接お問い合わせください。
国土交通大臣免許(2)第8967号 |
|---|
- 交通:
- JR山手線/東京駅 徒歩4分
- 東京都中央区京橋1丁目1-5 セントラルビル7階
- TEL:
- 0120-973-995
- FAX:
- 03-6661-9220
- 所属団体:
- (公社)東京都宅地建物取引業協会会員(公社)埼玉県宅地建物取引業協会会員(一社)全国住宅産業協会会員(公社)首都圏不動産公正取引協議会加盟
取引態様:媒介  - 00161643
|
- スマートフォンで
この不動産会社を見る

|
- 提携サイト等より掲載されている物件情報につきましては、不動産会社詳細情報にリンクされていないものがあります。
- 物件に関するお問合せは、物件詳細ページの「情報提供会社」に表示されている不動産会社へ直接お願いいたします。
- 間取図は、現況を優先させていただきます。
- 映像は物件の一部を撮影したものです。物件の契約にあたっての最終判断はご自身の判断に基づいて行ってください。
- 仲介手数料について

アットホームは物件情報の適正化に努めております。
内容に誤りがある場合にはこちらへご連絡ください。