埼玉県川口市東川口6丁目(東川口駅)の中古マンション・新築マンション・分譲マンション:物件詳細
				
					
					
				
																
		
		
			
				| 交通 所在地
 | 駅徒歩 | 価格 | 構造 階建/階
 | 間取り 専有面積
 | 物件種目 築年月
 | 
		
		
			
				
				| JR武蔵野線/東川口
										 埼玉県川口市東川口6丁目 | 
					14分
 | 
					3,880万円
					 | RC 5階建 / 4階 | 4LDK 
				78.94m²
				 | 中古マンション 2010年1月(築15年10ヶ月)
																	 | 
						
				|  角部屋、南向き、管理人巡回
 | 
								
		
				
			
		
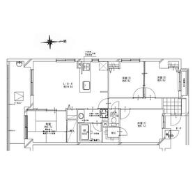
					| 間取図 | 外観 | 
		
		| 
				
										<
										
						>
							 その他の画像 | 
				
		
	 
					
		
			
			
	          | 交通 | JR武蔵野線 東川口駅 徒歩14分 | 
|---|
| その他の交通 | 埼玉高速鉄道 東川口駅 徒歩14分 | 
|---|
		
			| 所在地 | 埼玉県川口市東川口6丁目 | 
		
		
			
				| 物件種目 | 中古マンション | 
			
				| 価格 | 3,880万円 | 平米単価 | 49.16万円 | 
			
				| 管理費等 | 12,600円 | 修繕積立金 | 20,530円 | 
			
				| 借地期間・地代(月額) | - | 権利金 | - | 
			
				| 敷金または保証金 | - / - | 維持費等 | - | 
			
				| その他一時金 | - |  |  | 
					
		
			
				| 間取り | 4LDK | 専有面積 | 78.94m²(壁芯) | 
			
				| 階建 / 階 | 5階建 / 4階 | バルコニー | 11.30m² | 
			
				| 築年月 | 2010年1月(築15年10ヶ月) | 建物構造 | RC | 
			
				| 駐車場 | - | 総戸数 | 29戸 | 
			
				| 駐輪場 | - | バイク置き場 | - | 
			
				| ペット | - |  |  | 
			
				| 土地権利 | 所有権 | 敷地面積 | - | 
			
				| 管理形態/管理員の勤務形態 | 全部委託/巡回 | 国土法届出 | - | 
			
	| アピールポイント | ◆◆◆物件の魅力◆◆◆ 
 ★令和7年7月リフォーム完了
 ■交換:ガスコンロ・レンジフード・水栓、浴室(浴室乾燥機付)、洗面台水栓、トイレ、洗濯パン、給湯器
 ■貼替:クロス、フロアタイル上張(トイレ・洗面)、畳表
 ■他:ハウスクリーニング等
 
 ◇周辺:戸塚東小学校1130m、戸塚小学校1670m、ミニコープ540m、ドラッグセイムス210m、東川口病院900m、公園570m...etc。
 | 
			
				| 建物名・部屋番号 | ルネサンス東川口プレリア | 
			
				| リフォーム履歴 | - | 
			
				| リノベーション履歴 | - | 
			
				| 瑕疵保証 | - | 
			
				| 瑕疵保険 | - | 
			
				| 評価・証明書 | - | 
			
				| 備考 | 
																	主要採光面:南向き
											用途地域:2種中高
 ■駐車場:月額3000円~。駐輪場:月額100円。バイク置場:月額1000円。■司法書士は売主指定。
 | 
		
				
		
		| エネルギー消費性能 | - | 
	
		| 断熱性能 | - | 
	
		| 目安光熱費 | - | 
	
		
									
				| バス・トイレ | 浴室乾燥機 | 
						
				| キッチン | カウンターキッチン、システムキッチン | 
						
				| 設備・サービス | 全居室収納、ウォークインクローゼット | 
						
				| その他 | - | 
					
		
			
				| 条件等 | - | 現況 | 空家 | 
			
				| 引渡可能時期 | 相談 | 物件番号 | 1096771697 | 
						
				| 情報公開日 | 2025年6月3日 | 次回更新予定日 | 2025年11月7日 | 
						
				| ケータイ用バーコード | 
				
				
				
					スマートフォンでこの物件を見るスマートフォンからもこの物件をご覧になれます。 | 
					
		 
	 									※「-」と表示されている項目については、情報提供会社にご確認ください。
									
												
					
					  ここから簡単にお問い合わせをすることができます。
(SSLでの暗号化での送信を希望されるお客さまは
													こちら
												よりお問い合わせください)
					
					
						
						
					
					お問い合わせを行う前に
「個人情報の取り扱いについて」を必ずお読みください。
「個人情報の取り扱いについて」に同意いただいた場合は「上記にご同意の上 確認画面へ進む」のボタンをクリックしてください。 
						個人情報の取り扱いについて
						皆さまが送付された個人情報はアットホーム(株)のサーバを経由し、お問い合わせ先の不動産会社にメールまたはFAXにて転送されるためアットホーム(株)にも保管されます。アットホーム(株)で保管された個人情報の取り扱いについては、【こちら】をご覧ください。
						また、本画面でご記入いただいた個人情報は、お問い合わせ先の不動産会社でも保管します。 お問い合わせ先の不動産会社が保管する個人情報の取り扱いについては、不動産会社に直接お問い合わせください。
					 
					 
					
														
				  
				  
					| 埼玉県知事免許(6)第18501号 | 
|---|
| 交通:JR京浜東北線/川口駅 徒歩6分埼玉県川口市飯塚2丁目4-37 1F TEL:048-233-9300FAX:048-256-5588所属団体:(公社)全日本不動産協会会員(公社)首都圏不動産公正取引協議会加盟
 取引態様:媒介 00611687
 | 
							  
								スマートフォンでこの不動産会社を見る
 | 
					  
					 
				 
							
						
												
			
					
- 提携サイト等より掲載されている物件情報につきましては、不動産会社詳細情報にリンクされていないものがあります。
- 物件に関するお問合せは、物件詳細ページの「情報提供会社」に表示されている不動産会社へ直接お願いいたします。
- 間取図は、現況を優先させていただきます。
- 映像は物件の一部を撮影したものです。物件の契約にあたっての最終判断はご自身の判断に基づいて行ってください。
- 仲介手数料について 
アットホームは物件情報の適正化に努めております。
内容に誤りがある場合にはこちらへご連絡ください。