東京都葛飾区亀有2丁目(亀有駅)の中古マンション・新築マンション・分譲マンション:物件詳細
交通 所在地 |
駅徒歩 |
価格 |
構造 階建/階 |
間取り 専有面積 |
物件種目 築年月 |
|
JR千代田・常磐緩行線/亀有
東京都葛飾区亀有2丁目
|
10分
|
3,680万円
|
SRC
10階建 / 5階
|
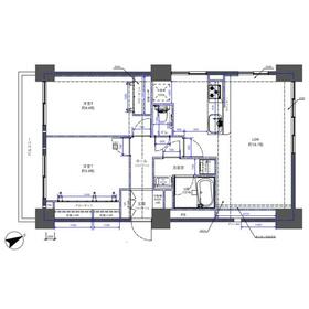
2LDK
61.57m²
|
中古マンション
1977年11月(築48年5ヶ月)
|
|
角部屋、管理人巡回
|
|
間取図
|
外観
|
その他の画像
|
| 交通 | JR千代田・常磐緩行線 亀有駅 徒歩10分 |
| 所在地 |
東京都葛飾区亀有2丁目
|
| 物件種目 |
中古マンション |
| 価格 |
3,680万円 |
平米単価 |
59.77万円 |
| 管理費等 |
7,000円 |
修繕積立金 |
16,000円 |
| 借地期間・地代(月額) |
- |
権利金 |
- |
| 敷金または保証金 |
- / - |
維持費等 |
- |
| その他一時金 |
なし |
|
|
| 間取り |
2LDK |
専有面積 |
61.57m²(壁芯) |
| 階建 / 階 |
10階建 / 5階 |
バルコニー |
- |
| 築年月 |
1977年11月(築48年5ヶ月)
|
建物構造 |
SRC |
| 駐車場 |
空無 |
総戸数 |
37戸 |
| 駐輪場 |
- |
バイク置き場 |
- |
| ペット |
-
|
|
|
| 土地権利 |
所有権 |
敷地面積 |
- |
| 管理形態/管理員の勤務形態 |
一部委託/巡回 |
国土法届出 |
- |
| アピールポイント |
亀有駅徒歩10分、アリオ亀有徒歩0分の好立地マンション
5階部分・南西向きバルコニー付き。
南西・北西の角部屋につき、採光・通風に優れた開放感のある住戸です。
新規内装リノベーション済で、気持ちよく新生活をスタートできます。
エレベーター完備。
小学校・スーパー・コンビニが徒歩10分圏内に揃い、生活利便性も良好です。
◎ 現地集合・現地解散OK・お忙しい方もお気軽にご見学いただけます。
◎ 購入で失敗しないためのポイントは、
YouTubeチャンネル[スガ社長の不動産取引成功の極意]で解説中(※売却価格・将来性を重視した解説が好評です)
|
| 建物名・部屋番号 |
ニューハイツ中川 |
| リフォーム履歴 |
■その他:2025年12月 キッチン、浴室、トイレ、クロス張替え、床、洗面所、建具 ※実施年月は最も古い履歴を表示 |
| リノベーション履歴 |
2025年12月 キッチン、バス、トイレ、洗面台、クロス、床、他 ※実施年月は最も古い履歴を表示 |
| 瑕疵保証 |
- |
| 瑕疵保険 |
- |
| 評価・証明書 |
- |
| 備考 |
主要採光面:南西向き
■亀有駅徒歩10分
■5階部分・南西向きバルコニー
■角部屋
■新規内装
■EV
◎ 現地集合・現地解散OK・お忙しい方もお気軽にご見学いただけます。
◎ 購入で失敗しないためのポイントは、
YouTubeチャンネル[スガ社長の不動産取引成功の極意]で解説中(※売却価格・将来性を重視した解説が好評です)
|
| エネルギー消費性能 |
- |
| 断熱性能 |
- |
| 目安光熱費 |
- |
| バス・トイレ |
- |
| キッチン |
カウンターキッチン、システムキッチン |
| 設備・サービス |
室内洗濯機置場、クローゼット、給湯、全居室フローリング、ダウンライト |
| その他 |
エレベーター |
| 条件等 |
- |
現況 |
空家 |
| 引渡可能時期 |
相談 |
物件番号 |
1100119814 |
| 情報公開日 |
2025年12月22日 |
次回更新予定日 |
2026年3月10日 |
| ケータイ用バーコード |
- スマートフォンでこの物件を見る
- スマートフォンからもこの物件をご覧になれます。
|
※「-」と表示されている項目については、情報提供会社にご確認ください。
ここから簡単にお問い合わせをすることができます。
(SSLでの暗号化での送信を希望されるお客さまは
こちら
よりお問い合わせください)
お問い合わせを行う前に
「個人情報の取り扱いについて」を必ずお読みください。
「個人情報の取り扱いについて」に同意いただいた場合は「上記にご同意の上 確認画面へ進む」のボタンをクリックしてください。
個人情報の取り扱いについて
皆さまが送付された個人情報はアットホーム(株)のサーバを経由し、お問い合わせ先の不動産会社にメールまたはFAXにて転送されるためアットホーム(株)にも保管されます。アットホーム(株)で保管された個人情報の取り扱いについては、【こちら】をご覧ください。
また、本画面でご記入いただいた個人情報は、お問い合わせ先の不動産会社でも保管します。 お問い合わせ先の不動産会社が保管する個人情報の取り扱いについては、不動産会社に直接お問い合わせください。
東京都知事免許(8)第63809号 |
|---|
- 交通:
- JR山手線/日暮里駅
- 東京都荒川区西日暮里2丁目39-7 GSハイム日暮里101
- TEL:
- 03-3803-5377
- FAX:
- 03-3803-5088
- 所属団体:
- (公社)東京都宅地建物取引業協会会員(公社)首都圏不動産公正取引協議会加盟
取引態様:一般媒介  - 99000391
|
- スマートフォンで
この不動産会社を見る

|
- 提携サイト等より掲載されている物件情報につきましては、不動産会社詳細情報にリンクされていないものがあります。
- 物件に関するお問合せは、物件詳細ページの「情報提供会社」に表示されている不動産会社へ直接お願いいたします。
- 間取図は、現況を優先させていただきます。
- 映像は物件の一部を撮影したものです。物件の契約にあたっての最終判断はご自身の判断に基づいて行ってください。
- 仲介手数料について

アットホームは物件情報の適正化に努めております。
内容に誤りがある場合にはこちらへご連絡ください。